NOORDBEEMSTER
€ 1.050.000
Purmerenderweg 1
9 Kamers
1 Badkamers
6 Slaapkamers
229 m²
B
Onbekend
Bezichtiging aanvragen
Beschrijving
In 1933 is er een vergunning afgegeven voor het vernieuwen van een woning aan de Purmerenderweg 1, tussen Beets en Oosthuizen. Het huidige woonhuis uit 1934 staat op een fantastisch perceel van 4970 m2, met een grote schuur voor de hobbyist en een weiland voor het houden van dieren. Bijzonder is de indeling van de woning met twee woongedeeltes, waardoor het mogelijk is om onder één dak te wonen met ouders of andere familieleden.
Dit droomhuis staat aan het begin van de Purmerenderweg, vlak bij de Beemsterringvaart. Voor dagelijkse voorzieningen als een basisschool, supermarkt en sportfaciliteiten kun je terecht in het nabijgelegen Oosthuizen. Dit is een fantastische plek om te wonen, in het prachtige buitengebied omringd door groen en natuur.
Indeling:
Begane grond:
Via de oprijlaan met dubbele poort betreed je het fantastische perceel. Je ziet diverse bijgebouwen, de royale tuin aan het water en het vrijstaande woonhuis uit 1934. Aan de linkerzijde is de overdekte entree, waar je heerlijk buiten kunt zitten.
In de hal, aan de rechterzijde, is de meterkast en aan de linkerzijde een toiletruimte met fonteintje. Tweede, grootste deel van de hal biedt ruimte aan de eerste trap naar de eerste verdieping.
Aan de voorzijde is het eerste woongedeelte met een zithoek, eettafel en een ruime keukenopstelling met kookeiland. De keuken biedt, net als de woonkamer, mooi uitzicht naar de tuin. Alle benodigde apparatuur is aanwezig, inclusief een vaatwasser en een grote koel-/vriescombinatie.
In het midden van de begane grond is een werkkamer, die nu te bereiken is vanuit het tweede woongedeelte. Er is een mogelijkheid om een entree bij het eerste woongedeelte te realiseren. De werkkamer biedt fraai uitzicht naar de tuin en heet een buitendeur richting het nabijgelegen overdekte terras.
Het tweede woongedeelte heeft een eigen entree aan de achterzijde. Hier zijn een bergkast/garderobe en de hal met tweede trapopgang. Verder grenzen er een toiletruimte en badkamer aan deze hal. De moderne badkamer is ingedeeld met een douche, wastafelmeubel en de wasmachineaansluiting.
De woonkamer met open keuken van het tweede woongedeelte heeft een ruime opzet, met ramen aan drie zijden en een schuifpui aan de achterzijde. Sfeermakers zijn de eikenhouten vloer, marmeren vloer en de zeer ruime keukenopstelling met zwart granieten blad. Ook deze keuken is voorzien van diverse inbouwapparatuur, waaronder een zwart inductiefornuis met dubbele oven.
Eerste verdieping:
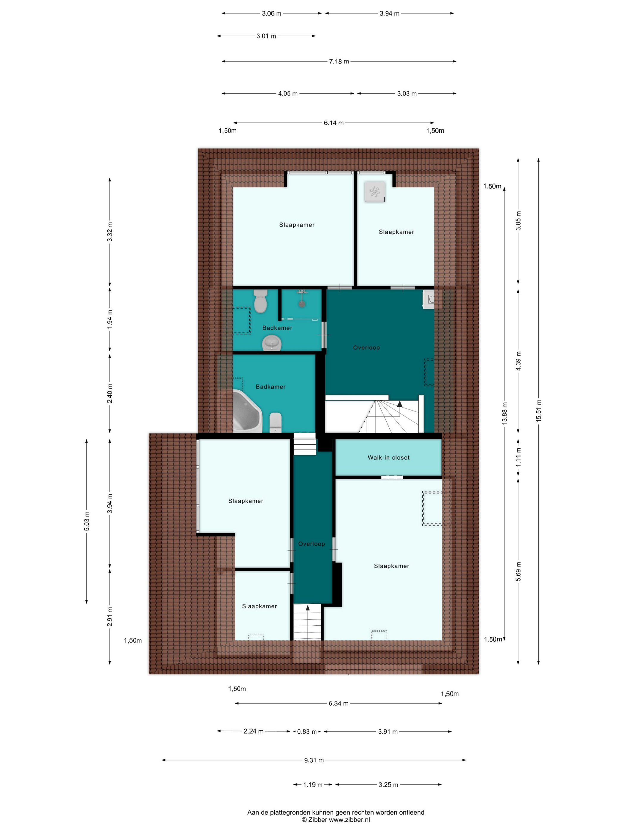
Het voorste woongedeelte is ingedeeld met een ruime overloop, twee slaapkamers en een badkamer. Beide slaapkamers zijn aan de voorzijde, met een gezamenlijke dakkapel
In de hal van het tweede woongedeelte is de tweede trap naar de eerste verdieping. Vanaf de lange overloop zijn twee slaapkamers en een badkamer te bereiken. Er ligt, net als op de begane grond, een eikenhouten vloer en vanuit de grootste slaapkamer is een inloopkast te bereiken. De tweede slaapkamer, met een dakkapel, bevindt zich tussen een kleedruimte en een badkamer. Deze badkamer, met een groot dakraam, is ingedeeld met een hoekbad, toilet en een handdoekenradiator.
Tweede verdieping:
In het voorste woongedeelte is een vaste trap naar de tweede verdieping. Aan de voorzijde is een slaapkamer, met een vliering aan twee kanten.
Bijgebouwen:
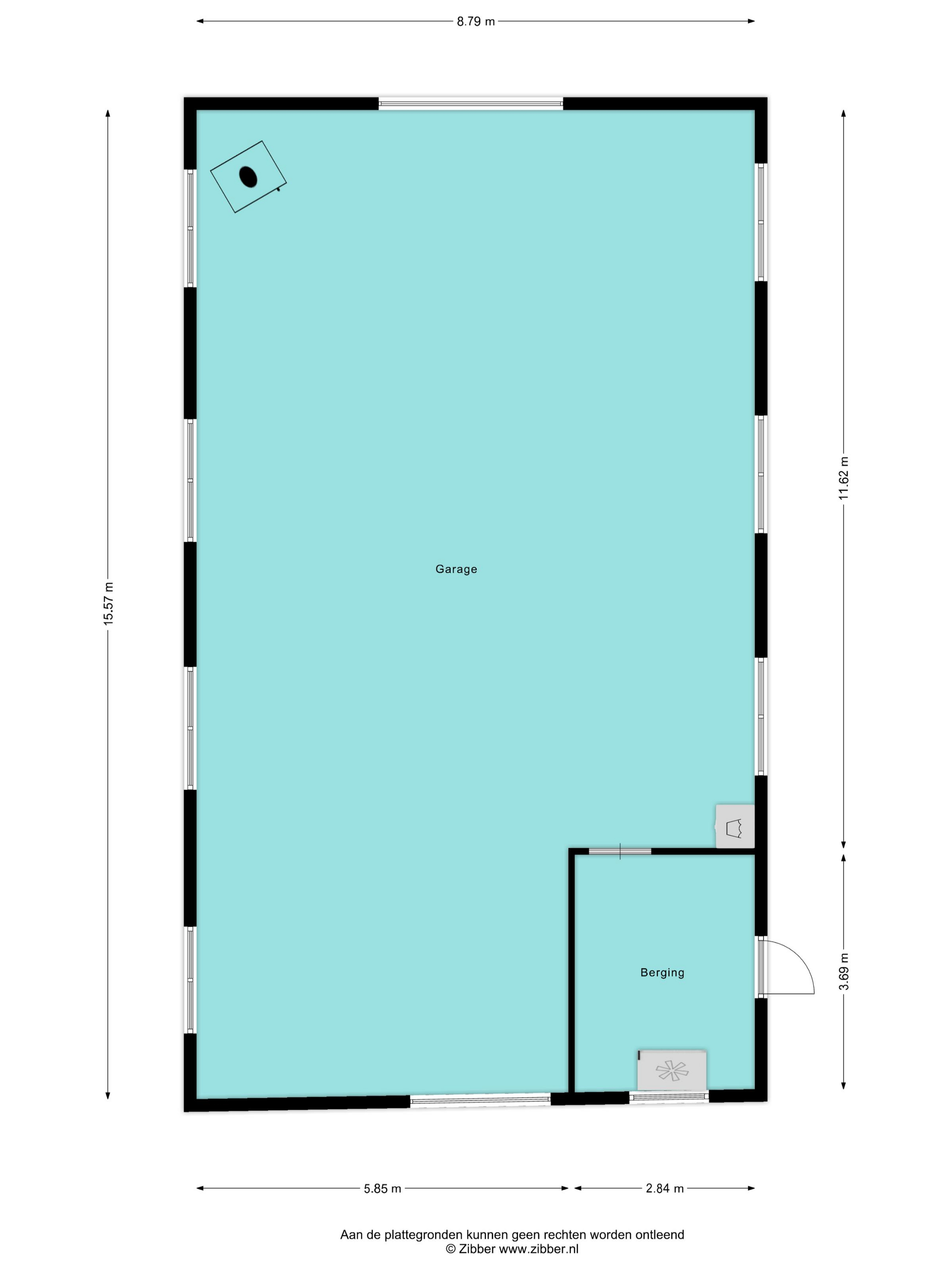
Op het perceel staan een grote schuur van ca. 136 m2 en een kas van ca. 37 m2. De schuur met dubbele toegangspoort (staat er maar 1 op de plattegrond) is de perfecte plek voor de hobbyist en de auto-/motorliefhebber. Niet alleen elektra, maarook water, afvoer en een kachel zijn aanwezig. De kas, met een gemetselde plint, is een groot pluspunt voor de tuinliefhebber.
Buiten:
Met een perceel van 4970 m2 heeft deze woning een zeer ruime tuin, met de mogelijkheid om dieren te houden. De tuin omringt het woonhuis aan drie kanten en het overdekte terras met buitenkeuken biedt optimale privacy. Het weiland aan de noordkant van het perceel, richting de Beemsterringvaart, maakt het plaatje meer dan compleet.
Omgeving:
Oosthuizen, op nog geen 5 autominuten, biedt alle dagelijkse voorzieningen. Volg de Purmerenderweg in zuidelijke richting, richting de A7 (Amsterdam-Den Oever) en na circa 10 minuten bereik je Purmerend. Hoorn is ongeveer een kwartier rijden en Alkmaar bevindt zich op circa 20 minuten afstand. En de Ring A10 bij Amsterdam? Slechts 22 kilometer rijden vanaf huis!
Parkeren:
Er is ruime parkeergelegenheid op eigen terrein, zowel buiten als in de grote schuur.
Bijzonderheden:
- Woonoppervlakte ca. 230 m² (woonhuis)
- Huidige indeling met twee woongedeeltes (1 huisnummer)
- Bijgebouwen van totaal ca. 187 m2
- Weiland voor het houden van dieren
- Prachtige, landelijke ligging tussen Hoorn, Oosthuizen, Purmerend en Alkmaar
- Energielabel B , geldig tot 03-02-2033
De op deze website getoonde vrijblijvende informatie is door ons (met zorg) samengesteld op basis van gegevens van de verkoper (en/of derden). Wij staan niet in voor de juistheid of volledigheid daarvan. Wij adviseren je om contact met ons op te nemen bij interesse in een van onze woningen of je door een eigen NVM-makelaar te laten bijstaan.
Wij zijn niet verantwoordelijk voor de inhoud van de websites waarnaar verwezen wordt.
Dit droomhuis staat aan het begin van de Purmerenderweg, vlak bij de Beemsterringvaart. Voor dagelijkse voorzieningen als een basisschool, supermarkt en sportfaciliteiten kun je terecht in het nabijgelegen Oosthuizen. Dit is een fantastische plek om te wonen, in het prachtige buitengebied omringd door groen en natuur.
Indeling:
Begane grond:
Via de oprijlaan met dubbele poort betreed je het fantastische perceel. Je ziet diverse bijgebouwen, de royale tuin aan het water en het vrijstaande woonhuis uit 1934. Aan de linkerzijde is de overdekte entree, waar je heerlijk buiten kunt zitten.
In de hal, aan de rechterzijde, is de meterkast en aan de linkerzijde een toiletruimte met fonteintje. Tweede, grootste deel van de hal biedt ruimte aan de eerste trap naar de eerste verdieping.
Aan de voorzijde is het eerste woongedeelte met een zithoek, eettafel en een ruime keukenopstelling met kookeiland. De keuken biedt, net als de woonkamer, mooi uitzicht naar de tuin. Alle benodigde apparatuur is aanwezig, inclusief een vaatwasser en een grote koel-/vriescombinatie.
In het midden van de begane grond is een werkkamer, die nu te bereiken is vanuit het tweede woongedeelte. Er is een mogelijkheid om een entree bij het eerste woongedeelte te realiseren. De werkkamer biedt fraai uitzicht naar de tuin en heet een buitendeur richting het nabijgelegen overdekte terras.
Het tweede woongedeelte heeft een eigen entree aan de achterzijde. Hier zijn een bergkast/garderobe en de hal met tweede trapopgang. Verder grenzen er een toiletruimte en badkamer aan deze hal. De moderne badkamer is ingedeeld met een douche, wastafelmeubel en de wasmachineaansluiting.
De woonkamer met open keuken van het tweede woongedeelte heeft een ruime opzet, met ramen aan drie zijden en een schuifpui aan de achterzijde. Sfeermakers zijn de eikenhouten vloer, marmeren vloer en de zeer ruime keukenopstelling met zwart granieten blad. Ook deze keuken is voorzien van diverse inbouwapparatuur, waaronder een zwart inductiefornuis met dubbele oven.
Eerste verdieping:
Het voorste woongedeelte is ingedeeld met een ruime overloop, twee slaapkamers en een badkamer. Beide slaapkamers zijn aan de voorzijde, met een gezamenlijke dakkapel
In de hal van het tweede woongedeelte is de tweede trap naar de eerste verdieping. Vanaf de lange overloop zijn twee slaapkamers en een badkamer te bereiken. Er ligt, net als op de begane grond, een eikenhouten vloer en vanuit de grootste slaapkamer is een inloopkast te bereiken. De tweede slaapkamer, met een dakkapel, bevindt zich tussen een kleedruimte en een badkamer. Deze badkamer, met een groot dakraam, is ingedeeld met een hoekbad, toilet en een handdoekenradiator.
Tweede verdieping:
In het voorste woongedeelte is een vaste trap naar de tweede verdieping. Aan de voorzijde is een slaapkamer, met een vliering aan twee kanten.
Bijgebouwen:
Op het perceel staan een grote schuur van ca. 136 m2 en een kas van ca. 37 m2. De schuur met dubbele toegangspoort (staat er maar 1 op de plattegrond) is de perfecte plek voor de hobbyist en de auto-/motorliefhebber. Niet alleen elektra, maarook water, afvoer en een kachel zijn aanwezig. De kas, met een gemetselde plint, is een groot pluspunt voor de tuinliefhebber.
Buiten:
Met een perceel van 4970 m2 heeft deze woning een zeer ruime tuin, met de mogelijkheid om dieren te houden. De tuin omringt het woonhuis aan drie kanten en het overdekte terras met buitenkeuken biedt optimale privacy. Het weiland aan de noordkant van het perceel, richting de Beemsterringvaart, maakt het plaatje meer dan compleet.
Omgeving:
Oosthuizen, op nog geen 5 autominuten, biedt alle dagelijkse voorzieningen. Volg de Purmerenderweg in zuidelijke richting, richting de A7 (Amsterdam-Den Oever) en na circa 10 minuten bereik je Purmerend. Hoorn is ongeveer een kwartier rijden en Alkmaar bevindt zich op circa 20 minuten afstand. En de Ring A10 bij Amsterdam? Slechts 22 kilometer rijden vanaf huis!
Parkeren:
Er is ruime parkeergelegenheid op eigen terrein, zowel buiten als in de grote schuur.
Bijzonderheden:
- Woonoppervlakte ca. 230 m² (woonhuis)
- Huidige indeling met twee woongedeeltes (1 huisnummer)
- Bijgebouwen van totaal ca. 187 m2
- Weiland voor het houden van dieren
- Prachtige, landelijke ligging tussen Hoorn, Oosthuizen, Purmerend en Alkmaar
- Energielabel B , geldig tot 03-02-2033
De op deze website getoonde vrijblijvende informatie is door ons (met zorg) samengesteld op basis van gegevens van de verkoper (en/of derden). Wij staan niet in voor de juistheid of volledigheid daarvan. Wij adviseren je om contact met ons op te nemen bij interesse in een van onze woningen of je door een eigen NVM-makelaar te laten bijstaan.
Wij zijn niet verantwoordelijk voor de inhoud van de websites waarnaar verwezen wordt.
Beschrijving
In 1933 is er een vergunning afgegeven voor het vernieuwen van een woning aan de Purmerenderweg 1, tussen Beets en Oosthuizen. Het huidige woonhuis uit 1934 staat op een fantastisch perceel van 4970 m2, met een grote schuur voor de hobbyist en een weiland voor het houden van dieren. Bijzonder is de indeling van de woning met twee woongedeeltes, waardoor het mogelijk is om onder één dak te wonen met ouders of andere familieleden.
Dit droomhuis staat aan het begin van de Purmerenderweg, vlak bij de Beemsterringvaart. Voor dagelijkse voorzieningen als een basisschool, supermarkt en sportfaciliteiten kun je terecht in het nabijgelegen Oosthuizen. Dit is een fantastische plek om te wonen, in het prachtige buitengebied omringd door groen en natuur.
Indeling:
Begane grond:
Via de oprijlaan met dubbele poort betreed je het fantastische perceel. Je ziet diverse bijgebouwen, de royale tuin aan het water en het vrijstaande woonhuis uit 1934. Aan de linkerzijde is de overdekte entree, waar je heerlijk buiten kunt zitten.
In de hal, aan de rechterzijde, is de meterkast en aan de linkerzijde een toiletruimte met fonteintje. Tweede, grootste deel van de hal biedt ruimte aan de eerste trap naar de eerste verdieping.
Aan de voorzijde is het eerste woongedeelte met een zithoek, eettafel en een ruime keukenopstelling met kookeiland. De keuken biedt, net als de woonkamer, mooi uitzicht naar de tuin. Alle benodigde apparatuur is aanwezig, inclusief een vaatwasser en een grote koel-/vriescombinatie.
In het midden van de begane grond is een werkkamer, die nu te bereiken is vanuit het tweede woongedeelte. Er is een mogelijkheid om een entree bij het eerste woongedeelte te realiseren. De werkkamer biedt fraai uitzicht naar de tuin en heet een buitendeur richting het nabijgelegen overdekte terras.
Het tweede woongedeelte heeft een eigen entree aan de achterzijde. Hier zijn een bergkast/garderobe en de hal met tweede trapopgang. Verder grenzen er een toiletruimte en badkamer aan deze hal. De moderne badkamer is ingedeeld met een douche, wastafelmeubel en de wasmachineaansluiting.
De woonkamer met open keuken van het tweede woongedeelte heeft een ruime opzet, met ramen aan drie zijden en een schuifpui aan de achterzijde. Sfeermakers zijn de eikenhouten vloer, marmeren vloer en de zeer ruime keukenopstelling met zwart granieten blad. Ook deze keuken is voorzien van diverse inbouwapparatuur, waaronder een zwart inductiefornuis met dubbele oven.
Eerste verdieping:
Het voorste woongedeelte is ingedeeld met een ruime overloop, twee slaapkamers en een badkamer. Beide slaapkamers zijn aan de voorzijde, met een gezamenlijke dakkapel
In de hal van het tweede woongedeelte is de tweede trap naar de eerste verdieping. Vanaf de lange overloop zijn twee slaapkamers en een badkamer te bereiken. Er ligt, net als op de begane grond, een eikenhouten vloer en vanuit de grootste slaapkamer is een inloopkast te bereiken. De tweede slaapkamer, met een dakkapel, bevindt zich tussen een kleedruimte en een badkamer. Deze badkamer, met een groot dakraam, is ingedeeld met een hoekbad, toilet en een handdoekenradiator.
Tweede verdieping:
In het voorste woongedeelte is een vaste trap naar de tweede verdieping. Aan de voorzijde is een slaapkamer, met een vliering aan twee kanten.
Bijgebouwen:
Op het perceel staan een grote schuur van ca. 136 m2 en een kas van ca. 37 m2. De schuur met dubbele toegangspoort (staat er maar 1 op de plattegrond) is de perfecte plek voor de hobbyist en de auto-/motorliefhebber. Niet alleen elektra, maarook water, afvoer en een kachel zijn aanwezig. De kas, met een gemetselde plint, is een groot pluspunt voor de tuinliefhebber.
Buiten:
Met een perceel van 4970 m2 heeft deze woning een zeer ruime tuin, met de mogelijkheid om dieren te houden. De tuin omringt het woonhuis aan drie kanten en het overdekte terras met buitenkeuken biedt optimale privacy. Het weiland aan de noordkant van het perceel, richting de Beemsterringvaart, maakt het plaatje meer dan compleet.
Omgeving:
Oosthuizen, op nog geen 5 autominuten, biedt alle dagelijkse voorzieningen. Volg de Purmerenderweg in zuidelijke richting, richting de A7 (Amsterdam-Den Oever) en na circa 10 minuten bereik je Purmerend. Hoorn is ongeveer een kwartier rijden en Alkmaar bevindt zich op circa 20 minuten afstand. En de Ring A10 bij Amsterdam? Slechts 22 kilometer rijden vanaf huis!
Parkeren:
Er is ruime parkeergelegenheid op eigen terrein, zowel buiten als in de grote schuur.
Bijzonderheden:
- Woonoppervlakte ca. 230 m² (woonhuis)
- Huidige indeling met twee woongedeeltes (1 huisnummer)
- Bijgebouwen van totaal ca. 187 m2
- Weiland voor het houden van dieren
- Prachtige, landelijke ligging tussen Hoorn, Oosthuizen, Purmerend en Alkmaar
- Energielabel B , geldig tot 03-02-2033
De op deze website getoonde vrijblijvende informatie is door ons (met zorg) samengesteld op basis van gegevens van de verkoper (en/of derden). Wij staan niet in voor de juistheid of volledigheid daarvan. Wij adviseren je om contact met ons op te nemen bij interesse in een van onze woningen of je door een eigen NVM-makelaar te laten bijstaan.
Wij zijn niet verantwoordelijk voor de inhoud van de websites waarnaar verwezen wordt.
Dit droomhuis staat aan het begin van de Purmerenderweg, vlak bij de Beemsterringvaart. Voor dagelijkse voorzieningen als een basisschool, supermarkt en sportfaciliteiten kun je terecht in het nabijgelegen Oosthuizen. Dit is een fantastische plek om te wonen, in het prachtige buitengebied omringd door groen en natuur.
Indeling:
Begane grond:
Via de oprijlaan met dubbele poort betreed je het fantastische perceel. Je ziet diverse bijgebouwen, de royale tuin aan het water en het vrijstaande woonhuis uit 1934. Aan de linkerzijde is de overdekte entree, waar je heerlijk buiten kunt zitten.
In de hal, aan de rechterzijde, is de meterkast en aan de linkerzijde een toiletruimte met fonteintje. Tweede, grootste deel van de hal biedt ruimte aan de eerste trap naar de eerste verdieping.
Aan de voorzijde is het eerste woongedeelte met een zithoek, eettafel en een ruime keukenopstelling met kookeiland. De keuken biedt, net als de woonkamer, mooi uitzicht naar de tuin. Alle benodigde apparatuur is aanwezig, inclusief een vaatwasser en een grote koel-/vriescombinatie.
In het midden van de begane grond is een werkkamer, die nu te bereiken is vanuit het tweede woongedeelte. Er is een mogelijkheid om een entree bij het eerste woongedeelte te realiseren. De werkkamer biedt fraai uitzicht naar de tuin en heet een buitendeur richting het nabijgelegen overdekte terras.
Het tweede woongedeelte heeft een eigen entree aan de achterzijde. Hier zijn een bergkast/garderobe en de hal met tweede trapopgang. Verder grenzen er een toiletruimte en badkamer aan deze hal. De moderne badkamer is ingedeeld met een douche, wastafelmeubel en de wasmachineaansluiting.
De woonkamer met open keuken van het tweede woongedeelte heeft een ruime opzet, met ramen aan drie zijden en een schuifpui aan de achterzijde. Sfeermakers zijn de eikenhouten vloer, marmeren vloer en de zeer ruime keukenopstelling met zwart granieten blad. Ook deze keuken is voorzien van diverse inbouwapparatuur, waaronder een zwart inductiefornuis met dubbele oven.
Eerste verdieping:
Het voorste woongedeelte is ingedeeld met een ruime overloop, twee slaapkamers en een badkamer. Beide slaapkamers zijn aan de voorzijde, met een gezamenlijke dakkapel
In de hal van het tweede woongedeelte is de tweede trap naar de eerste verdieping. Vanaf de lange overloop zijn twee slaapkamers en een badkamer te bereiken. Er ligt, net als op de begane grond, een eikenhouten vloer en vanuit de grootste slaapkamer is een inloopkast te bereiken. De tweede slaapkamer, met een dakkapel, bevindt zich tussen een kleedruimte en een badkamer. Deze badkamer, met een groot dakraam, is ingedeeld met een hoekbad, toilet en een handdoekenradiator.
Tweede verdieping:
In het voorste woongedeelte is een vaste trap naar de tweede verdieping. Aan de voorzijde is een slaapkamer, met een vliering aan twee kanten.
Bijgebouwen:
Op het perceel staan een grote schuur van ca. 136 m2 en een kas van ca. 37 m2. De schuur met dubbele toegangspoort (staat er maar 1 op de plattegrond) is de perfecte plek voor de hobbyist en de auto-/motorliefhebber. Niet alleen elektra, maarook water, afvoer en een kachel zijn aanwezig. De kas, met een gemetselde plint, is een groot pluspunt voor de tuinliefhebber.
Buiten:
Met een perceel van 4970 m2 heeft deze woning een zeer ruime tuin, met de mogelijkheid om dieren te houden. De tuin omringt het woonhuis aan drie kanten en het overdekte terras met buitenkeuken biedt optimale privacy. Het weiland aan de noordkant van het perceel, richting de Beemsterringvaart, maakt het plaatje meer dan compleet.
Omgeving:
Oosthuizen, op nog geen 5 autominuten, biedt alle dagelijkse voorzieningen. Volg de Purmerenderweg in zuidelijke richting, richting de A7 (Amsterdam-Den Oever) en na circa 10 minuten bereik je Purmerend. Hoorn is ongeveer een kwartier rijden en Alkmaar bevindt zich op circa 20 minuten afstand. En de Ring A10 bij Amsterdam? Slechts 22 kilometer rijden vanaf huis!
Parkeren:
Er is ruime parkeergelegenheid op eigen terrein, zowel buiten als in de grote schuur.
Bijzonderheden:
- Woonoppervlakte ca. 230 m² (woonhuis)
- Huidige indeling met twee woongedeeltes (1 huisnummer)
- Bijgebouwen van totaal ca. 187 m2
- Weiland voor het houden van dieren
- Prachtige, landelijke ligging tussen Hoorn, Oosthuizen, Purmerend en Alkmaar
- Energielabel B , geldig tot 03-02-2033
De op deze website getoonde vrijblijvende informatie is door ons (met zorg) samengesteld op basis van gegevens van de verkoper (en/of derden). Wij staan niet in voor de juistheid of volledigheid daarvan. Wij adviseren je om contact met ons op te nemen bij interesse in een van onze woningen of je door een eigen NVM-makelaar te laten bijstaan.
Wij zijn niet verantwoordelijk voor de inhoud van de websites waarnaar verwezen wordt.
powered by Friva | Lees ons Privacybeleid
















































