KROMMENIE
€ 595.000
Heiligeweg 40
3 Kamers
1 Badkamers
2 Slaapkamers
113 m²
A+
Onbekend
Bezichtiging aanvragen
Beschrijving
Gelijkvloers en ruim wonen op een centrale plek in Krommenie, met de supermarkt en andere voorzieningen binnen handbereik. Dit hoekappartement op de eerste verdieping heeft een totale oppervlakte van maar liefst 113 m2, met grote ramen aan drie zijden en een balkon op het westen. Dankzij de lift in het gebouw hoef je geen trappen te lopen en er is een gezamenlijke binnentuin, op dezelfde verdieping als het appartement. De mooie vloer, keuken, badkamer en separate toiletruimte zorgen ervoor dat je al snel kan beginnen met verhuizen en inrichten!
Op de begane grond van het naastgelegen gebouw is een grote Deka supermarkt. Er zijn nog meer winkels in de buurt, en aan de Eikelaan stopt de bus richting Zaandam en het treinstation. Zo kunnen de auto en fiets blijven staan, want alles wat je nodig hebt is op loopafstand.
Indeling:
Appartementengebouw:
Het gebouw, genaamd ‘Het Icoon’, vormt samen met het naastgelegen gebouw ‘De Feniks’ een fraai geheel met in totaal 54 appartementen, een supermarkt, enkele winkelunits en een parkeergarage.
Aan de kant van de Heiligeweg is de entree van het stijlvolle appartementengebouw, met de brievenbussen en het bellentableau met video-intercom aan de buitenzijde. Eenmaal binnen ga je met de trap of lift naar de eerste verdieping, richting de gezamenlijke binnentuin. Bij het appartement hoort een eigen (fietsen)berging, gesitueerd op de begane grond..
Appartement:
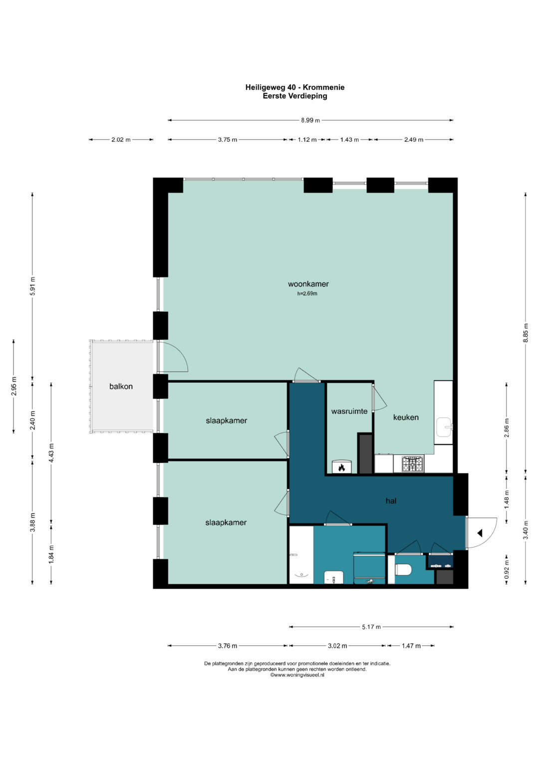
Niet alleen de binnentuin, maar ook het appartement is op de eerste verdieping. Achter de voordeur van nummer 40 is de ruime hal waar, net als in bijna het hele appartement, een pvc-vloer met vloerverwarming ligt. Links in de hal, naast de meterkast, is de toiletruimte met een wandcloset.
Aan het einde van de hal loop je de ruime woonkamer in, met grote ramen aan twee zijden. Er is een deur naar het balkon, op het westen, en de ramen tot vloerhoogte zorgen ervoor dat er levendig uitzicht is naar het dorpsleven. Met een oppervlakte van circa 53 m2 is de woonkamer heerlijk ruim, met genoeg plek voor een grote hoekbank en een lange eettafel.
In de hoek van de woonkamer is een doorgang naar de keuken, waar een lichte hoekopstelling met een antracietkleurig aanrechtblad staat. De 5-pits gaskookplaat, afzuigkap, vaatwasser, koelkast en combi-oven zijn ingebouwd. Naast de keuken is een berging/wasruimte, met de opstelling van de HR-ketel en het WTW-systeem.
Dit goed ingedeelde appartement heeft twee slaapkamers, aan de kant van de Eikelaan. Er is geen galerij en beide kamers grenzen niet aan de binnentuin, waardoor het heel rustig slapen is. De badkamer is ingedeeld met een ligbad, aparte douche en een wastafel.
Buiten:
In de hoek van de woonkamer is een deur naar het balkon, gesitueerd op het westen. Vanaf hier kijk je naar de Eikelaan, Heiligeweg en de Weverstraat. Hier woon je heel centraal, en is er altijd wat te zien als je op het balkon zit.
Omgeving:
Krommenie heeft niet alleen goede voorzieningen, maar ook een gunstige ligging ten opzichte van de rest van de Zaanstreek en de regio Alkmaar/Beverwijk. Met de fiets ben je zo in Assendelft en aan de noordkant ligt prachtige natuur, met een prachtig poldergebied en het Uitgeestermeer. Het centrum van Zaandam bevindt zich op circa 9 kilometer afstand, en de ring A10 Amsterdam is nog geen 15 kilometer rijden.
Parkeren:
In de directe omgeving is voldoende openbare parkeergelegenheid.
Bijzonderheden:
- Woonoppervlakte ca. 113.2 m²
- Pvc-vloer met vloerverwarming in bijna het hele appartement
- Zeer ruime woonkamer met uitzicht naar het Durghorstplantsoen
- Twee slaapkamers
- Balkon op het westen
- Verwarming via een HR-ketel (Remeha Calenta) en een WTW-systeem
- Gemeenschappelijke binnentuin
- Gelijkvloers wonen dankzij de lift in het gebouw
- VvE bijdrage € 189,81,-
- Parkeerplaats te huur voor € 80,- per maand
- Energielabel A+
- Projectnotaris Hartman LMH
De op deze website getoonde vrijblijvende informatie is door ons (met zorg) samengesteld op basis van gegevens van de verkoper (en/of derden). Wij staan niet in voor de juistheid of volledigheid daarvan. Wij adviseren je om contact met ons op te nemen bij interesse in een van onze woningen of je door een eigen deskundige te laten bijstaan.
Wij zijn niet verantwoordelijk voor de inhoud van de websites waarnaar wordt verwezen.
Op de begane grond van het naastgelegen gebouw is een grote Deka supermarkt. Er zijn nog meer winkels in de buurt, en aan de Eikelaan stopt de bus richting Zaandam en het treinstation. Zo kunnen de auto en fiets blijven staan, want alles wat je nodig hebt is op loopafstand.
Indeling:
Appartementengebouw:
Het gebouw, genaamd ‘Het Icoon’, vormt samen met het naastgelegen gebouw ‘De Feniks’ een fraai geheel met in totaal 54 appartementen, een supermarkt, enkele winkelunits en een parkeergarage.
Aan de kant van de Heiligeweg is de entree van het stijlvolle appartementengebouw, met de brievenbussen en het bellentableau met video-intercom aan de buitenzijde. Eenmaal binnen ga je met de trap of lift naar de eerste verdieping, richting de gezamenlijke binnentuin. Bij het appartement hoort een eigen (fietsen)berging, gesitueerd op de begane grond..
Appartement:
Niet alleen de binnentuin, maar ook het appartement is op de eerste verdieping. Achter de voordeur van nummer 40 is de ruime hal waar, net als in bijna het hele appartement, een pvc-vloer met vloerverwarming ligt. Links in de hal, naast de meterkast, is de toiletruimte met een wandcloset.
Aan het einde van de hal loop je de ruime woonkamer in, met grote ramen aan twee zijden. Er is een deur naar het balkon, op het westen, en de ramen tot vloerhoogte zorgen ervoor dat er levendig uitzicht is naar het dorpsleven. Met een oppervlakte van circa 53 m2 is de woonkamer heerlijk ruim, met genoeg plek voor een grote hoekbank en een lange eettafel.
In de hoek van de woonkamer is een doorgang naar de keuken, waar een lichte hoekopstelling met een antracietkleurig aanrechtblad staat. De 5-pits gaskookplaat, afzuigkap, vaatwasser, koelkast en combi-oven zijn ingebouwd. Naast de keuken is een berging/wasruimte, met de opstelling van de HR-ketel en het WTW-systeem.
Dit goed ingedeelde appartement heeft twee slaapkamers, aan de kant van de Eikelaan. Er is geen galerij en beide kamers grenzen niet aan de binnentuin, waardoor het heel rustig slapen is. De badkamer is ingedeeld met een ligbad, aparte douche en een wastafel.
Buiten:
In de hoek van de woonkamer is een deur naar het balkon, gesitueerd op het westen. Vanaf hier kijk je naar de Eikelaan, Heiligeweg en de Weverstraat. Hier woon je heel centraal, en is er altijd wat te zien als je op het balkon zit.
Omgeving:
Krommenie heeft niet alleen goede voorzieningen, maar ook een gunstige ligging ten opzichte van de rest van de Zaanstreek en de regio Alkmaar/Beverwijk. Met de fiets ben je zo in Assendelft en aan de noordkant ligt prachtige natuur, met een prachtig poldergebied en het Uitgeestermeer. Het centrum van Zaandam bevindt zich op circa 9 kilometer afstand, en de ring A10 Amsterdam is nog geen 15 kilometer rijden.
Parkeren:
In de directe omgeving is voldoende openbare parkeergelegenheid.
Bijzonderheden:
- Woonoppervlakte ca. 113.2 m²
- Pvc-vloer met vloerverwarming in bijna het hele appartement
- Zeer ruime woonkamer met uitzicht naar het Durghorstplantsoen
- Twee slaapkamers
- Balkon op het westen
- Verwarming via een HR-ketel (Remeha Calenta) en een WTW-systeem
- Gemeenschappelijke binnentuin
- Gelijkvloers wonen dankzij de lift in het gebouw
- VvE bijdrage € 189,81,-
- Parkeerplaats te huur voor € 80,- per maand
- Energielabel A+
- Projectnotaris Hartman LMH
De op deze website getoonde vrijblijvende informatie is door ons (met zorg) samengesteld op basis van gegevens van de verkoper (en/of derden). Wij staan niet in voor de juistheid of volledigheid daarvan. Wij adviseren je om contact met ons op te nemen bij interesse in een van onze woningen of je door een eigen deskundige te laten bijstaan.
Wij zijn niet verantwoordelijk voor de inhoud van de websites waarnaar wordt verwezen.
Beschrijving
Gelijkvloers en ruim wonen op een centrale plek in Krommenie, met de supermarkt en andere voorzieningen binnen handbereik. Dit hoekappartement op de eerste verdieping heeft een totale oppervlakte van maar liefst 113 m2, met grote ramen aan drie zijden en een balkon op het westen. Dankzij de lift in het gebouw hoef je geen trappen te lopen en er is een gezamenlijke binnentuin, op dezelfde verdieping als het appartement. De mooie vloer, keuken, badkamer en separate toiletruimte zorgen ervoor dat je al snel kan beginnen met verhuizen en inrichten!
Op de begane grond van het naastgelegen gebouw is een grote Deka supermarkt. Er zijn nog meer winkels in de buurt, en aan de Eikelaan stopt de bus richting Zaandam en het treinstation. Zo kunnen de auto en fiets blijven staan, want alles wat je nodig hebt is op loopafstand.
Indeling:
Appartementengebouw:
Het gebouw, genaamd ‘Het Icoon’, vormt samen met het naastgelegen gebouw ‘De Feniks’ een fraai geheel met in totaal 54 appartementen, een supermarkt, enkele winkelunits en een parkeergarage.
Aan de kant van de Heiligeweg is de entree van het stijlvolle appartementengebouw, met de brievenbussen en het bellentableau met video-intercom aan de buitenzijde. Eenmaal binnen ga je met de trap of lift naar de eerste verdieping, richting de gezamenlijke binnentuin. Bij het appartement hoort een eigen (fietsen)berging, gesitueerd op de begane grond..
Appartement:
Niet alleen de binnentuin, maar ook het appartement is op de eerste verdieping. Achter de voordeur van nummer 40 is de ruime hal waar, net als in bijna het hele appartement, een pvc-vloer met vloerverwarming ligt. Links in de hal, naast de meterkast, is de toiletruimte met een wandcloset.
Aan het einde van de hal loop je de ruime woonkamer in, met grote ramen aan twee zijden. Er is een deur naar het balkon, op het westen, en de ramen tot vloerhoogte zorgen ervoor dat er levendig uitzicht is naar het dorpsleven. Met een oppervlakte van circa 53 m2 is de woonkamer heerlijk ruim, met genoeg plek voor een grote hoekbank en een lange eettafel.
In de hoek van de woonkamer is een doorgang naar de keuken, waar een lichte hoekopstelling met een antracietkleurig aanrechtblad staat. De 5-pits gaskookplaat, afzuigkap, vaatwasser, koelkast en combi-oven zijn ingebouwd. Naast de keuken is een berging/wasruimte, met de opstelling van de HR-ketel en het WTW-systeem.
Dit goed ingedeelde appartement heeft twee slaapkamers, aan de kant van de Eikelaan. Er is geen galerij en beide kamers grenzen niet aan de binnentuin, waardoor het heel rustig slapen is. De badkamer is ingedeeld met een ligbad, aparte douche en een wastafel.
Buiten:
In de hoek van de woonkamer is een deur naar het balkon, gesitueerd op het westen. Vanaf hier kijk je naar de Eikelaan, Heiligeweg en de Weverstraat. Hier woon je heel centraal, en is er altijd wat te zien als je op het balkon zit.
Omgeving:
Krommenie heeft niet alleen goede voorzieningen, maar ook een gunstige ligging ten opzichte van de rest van de Zaanstreek en de regio Alkmaar/Beverwijk. Met de fiets ben je zo in Assendelft en aan de noordkant ligt prachtige natuur, met een prachtig poldergebied en het Uitgeestermeer. Het centrum van Zaandam bevindt zich op circa 9 kilometer afstand, en de ring A10 Amsterdam is nog geen 15 kilometer rijden.
Parkeren:
In de directe omgeving is voldoende openbare parkeergelegenheid.
Bijzonderheden:
- Woonoppervlakte ca. 113.2 m²
- Pvc-vloer met vloerverwarming in bijna het hele appartement
- Zeer ruime woonkamer met uitzicht naar het Durghorstplantsoen
- Twee slaapkamers
- Balkon op het westen
- Verwarming via een HR-ketel (Remeha Calenta) en een WTW-systeem
- Gemeenschappelijke binnentuin
- Gelijkvloers wonen dankzij de lift in het gebouw
- VvE bijdrage € 189,81,-
- Parkeerplaats te huur voor € 80,- per maand
- Energielabel A+
- Projectnotaris Hartman LMH
De op deze website getoonde vrijblijvende informatie is door ons (met zorg) samengesteld op basis van gegevens van de verkoper (en/of derden). Wij staan niet in voor de juistheid of volledigheid daarvan. Wij adviseren je om contact met ons op te nemen bij interesse in een van onze woningen of je door een eigen deskundige te laten bijstaan.
Wij zijn niet verantwoordelijk voor de inhoud van de websites waarnaar wordt verwezen.
Op de begane grond van het naastgelegen gebouw is een grote Deka supermarkt. Er zijn nog meer winkels in de buurt, en aan de Eikelaan stopt de bus richting Zaandam en het treinstation. Zo kunnen de auto en fiets blijven staan, want alles wat je nodig hebt is op loopafstand.
Indeling:
Appartementengebouw:
Het gebouw, genaamd ‘Het Icoon’, vormt samen met het naastgelegen gebouw ‘De Feniks’ een fraai geheel met in totaal 54 appartementen, een supermarkt, enkele winkelunits en een parkeergarage.
Aan de kant van de Heiligeweg is de entree van het stijlvolle appartementengebouw, met de brievenbussen en het bellentableau met video-intercom aan de buitenzijde. Eenmaal binnen ga je met de trap of lift naar de eerste verdieping, richting de gezamenlijke binnentuin. Bij het appartement hoort een eigen (fietsen)berging, gesitueerd op de begane grond..
Appartement:
Niet alleen de binnentuin, maar ook het appartement is op de eerste verdieping. Achter de voordeur van nummer 40 is de ruime hal waar, net als in bijna het hele appartement, een pvc-vloer met vloerverwarming ligt. Links in de hal, naast de meterkast, is de toiletruimte met een wandcloset.
Aan het einde van de hal loop je de ruime woonkamer in, met grote ramen aan twee zijden. Er is een deur naar het balkon, op het westen, en de ramen tot vloerhoogte zorgen ervoor dat er levendig uitzicht is naar het dorpsleven. Met een oppervlakte van circa 53 m2 is de woonkamer heerlijk ruim, met genoeg plek voor een grote hoekbank en een lange eettafel.
In de hoek van de woonkamer is een doorgang naar de keuken, waar een lichte hoekopstelling met een antracietkleurig aanrechtblad staat. De 5-pits gaskookplaat, afzuigkap, vaatwasser, koelkast en combi-oven zijn ingebouwd. Naast de keuken is een berging/wasruimte, met de opstelling van de HR-ketel en het WTW-systeem.
Dit goed ingedeelde appartement heeft twee slaapkamers, aan de kant van de Eikelaan. Er is geen galerij en beide kamers grenzen niet aan de binnentuin, waardoor het heel rustig slapen is. De badkamer is ingedeeld met een ligbad, aparte douche en een wastafel.
Buiten:
In de hoek van de woonkamer is een deur naar het balkon, gesitueerd op het westen. Vanaf hier kijk je naar de Eikelaan, Heiligeweg en de Weverstraat. Hier woon je heel centraal, en is er altijd wat te zien als je op het balkon zit.
Omgeving:
Krommenie heeft niet alleen goede voorzieningen, maar ook een gunstige ligging ten opzichte van de rest van de Zaanstreek en de regio Alkmaar/Beverwijk. Met de fiets ben je zo in Assendelft en aan de noordkant ligt prachtige natuur, met een prachtig poldergebied en het Uitgeestermeer. Het centrum van Zaandam bevindt zich op circa 9 kilometer afstand, en de ring A10 Amsterdam is nog geen 15 kilometer rijden.
Parkeren:
In de directe omgeving is voldoende openbare parkeergelegenheid.
Bijzonderheden:
- Woonoppervlakte ca. 113.2 m²
- Pvc-vloer met vloerverwarming in bijna het hele appartement
- Zeer ruime woonkamer met uitzicht naar het Durghorstplantsoen
- Twee slaapkamers
- Balkon op het westen
- Verwarming via een HR-ketel (Remeha Calenta) en een WTW-systeem
- Gemeenschappelijke binnentuin
- Gelijkvloers wonen dankzij de lift in het gebouw
- VvE bijdrage € 189,81,-
- Parkeerplaats te huur voor € 80,- per maand
- Energielabel A+
- Projectnotaris Hartman LMH
De op deze website getoonde vrijblijvende informatie is door ons (met zorg) samengesteld op basis van gegevens van de verkoper (en/of derden). Wij staan niet in voor de juistheid of volledigheid daarvan. Wij adviseren je om contact met ons op te nemen bij interesse in een van onze woningen of je door een eigen deskundige te laten bijstaan.
Wij zijn niet verantwoordelijk voor de inhoud van de websites waarnaar wordt verwezen.
powered by Friva | Lees ons Privacybeleid










































