AMSTERDAM
€ 2.100.000
Dorpsweg Ransdorp 67-A,B,C,D
15 Kamers
1 Badkamers
9 Slaapkamers
462 m²
B
TUIN_RONDOM
Bezichtiging aanvragen
Beschrijving
Uniek is een veelgebruikt woord, maar hier zeker van toepassing. Aan de rand van Ransdorp (Gemeente Amsterdam), krijg je de kans om dit unieke geheel met 6 wooneenheden (5 huisnummers) en diverse bijgebouwen te bewonen. Rust, natuur en water zijn de elementen die je de kans geven om te onthaasten, om (deels) te verhuren en waar je kunt samenwonen met familie of vrienden. Je kunt alles op de huidige wijze behouden en/ of er zelf een invulling aan geven.
De grond met opstallen, prachtig gelegen aan de Weersloot, wordt omringd door een beschermd weidevogelgebied. Vanaf een van de steigers op eigen terrein kun je gaan varen, suppen of de omgeving met een kano verkennen. Het uitzicht is van ongekende schoonheid, weg van de dagelijkse hectiek. In Ransdorp zijn enkele voorzieningen zoals een openbare basisschool, hotel-café en een bushalte. De smalle straatjes, de prachtige kerk en de ophaalbruggetjes zorgen voor een dorp met uitstraling.
Alle woningen zijn voorzien van een nette eigen keuken (6x) en badkamer (6x). Om een duidelijke voorstelling te maken van het geheel, is ervoor gekozen om geen foto's van binnen te plaatsen. Wel hebben wij een 3 tal foto's (collage) toegevoegd om een indruk te schetsen van de afwerking binnen.
Indeling:
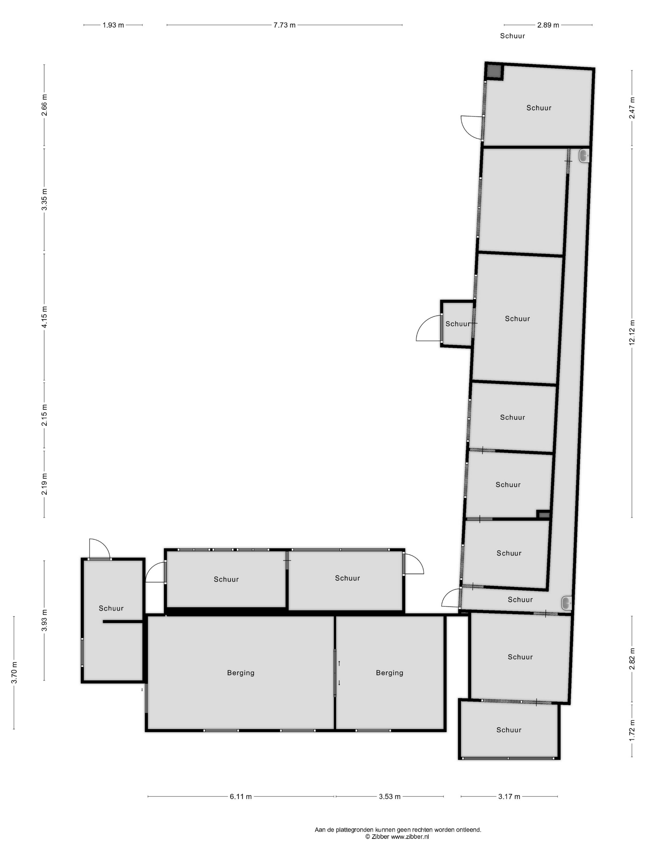
Parkeer je auto op het parkeerterrein bij de kerk en loop of fiets vervolgens via het pad langs het Raadhuis uit 1652 naar het 'landgoed'. Aan het einde van het pad loop je de percelen op, waar je eerst een aantal bijgebouwen ziet die als schuur en duiventil in gebruik zijn. Verder zie je het water, tuin en het omringende weidevogelgebied dat een beschermde status heeft. Op het perceel zijn een zwembad en diverse steigers voor ongekend veel waterpret.
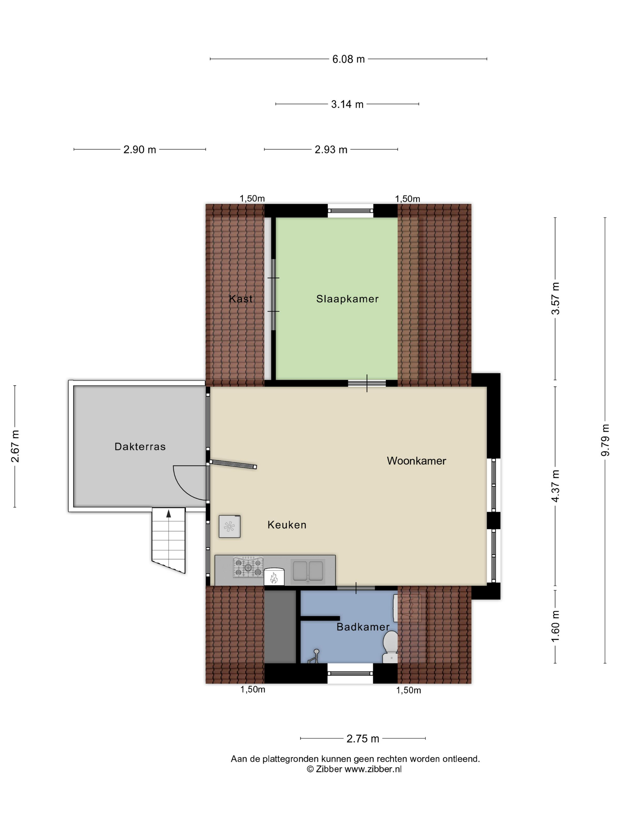
Hoofdwoning (huisnummer 67):
Het originele huis is verdeeld in twee zelfstandige woonruimtes, gesplitst over de begane grond en eerste verdieping. De benedenwoning van ca. 90 m² is ingedeeld met een hal, woonkamer, open keuken, slaapkamer, toiletruimte en een badkamer. Geheel gelijkvloers! De bovenwoning (ca. 45 m²) heeft een eigen entree via een buitentrap die leidt naar het terras (ca. 8 m²). Vanuit de hal loop je naar de woonkamer met open keuken. Verder zijn er een badkamer en een slaapkamer.
Samenvattend:
- Gelijkvloerse benedenwoning van ca. 93 m² met tuin
- Bovenwoning (ca. 41 m²) met eigen entree en terras (8 m²)
Woonobject waterkant (huisnummers 67A en 67B):
Aan de achterzijde van het perceel staan twee woonobjecten, waarbij het linker object aan de waterkant staat. Deze heeft een totale oppervlakte van ca. 165 m², gesplitst in twee wooneenheden van ca. 75 en 90 m². De eerste eenheid is ingedeeld met een hal, woonkamer, open keuken, badkamer en twee slaapkamers. In de tweede, tevens grootste eenheid is de indeling als volgt: hal, woonkamer, open keuken, drie slaapkamers en een badkamer.
Samenvattend:
- Wooneenheid 1 (67 A) van ca. 76 m² met twee slaapkamers
- Wooneenheid 2 (67 B) van ca. 93 m² met drie slaapkamers
Woonobject noordzijde (huisnummers 67C en 67D):
Het rechter woonobject heeft een totale oppervlakte van ca. 160 m², gesplitst in twee wooneenheden van ca. 100 en 60 m². De eerste eenheid (voorzijde) is ingedeeld met een hal, woonkamer, open keuken, badkamer en een slaapkamer. In de tweede, tevens grootste eenheid is de indeling als volgt: woonkamer, open keuken, serre, slaapkamer, badkamer en wasruimte. Bij deze eenheid horen een tuin en volière.
Samenvattend:
- Wooneenheid 1 (67 C) van ca. 58 m² met een slaapkamer
- Wooneenheid 2 (67 D) van ca. 102 m² met een slaapkamer
Omgeving:
Ransdorp heeft een mooie ligging aan de rand van Amsterdam. Verken de prachtige omgeving met prachtige natuur, water en charmante dorpjes waar bewoners met veel plezier wonen. De Ring A10 is goed bereikbaar, net als de vele voorzieningen in Amsterdam Noord.
Parkeren:
Het terrein is niet bereikbaar met de auto. Bij de kerk is een parkeerterrein, waarna je lopend naar het complex kunt lopen. Voor wie zelfvoorzienend en in een woongroep wil wonen, is een auto op het erf wellicht geen wenselijk idee en een elektrische deelauto op het parkeerterrein misschien een betere optie.
Kadaster:
In verband met recente afsplitsing is nog niet alles correct in het Kadaster verwerkt. Totaal betreft het ca. 2.210 m2 aan eigen grond. Andere Kadastrale verdelingen zijn zeer goed mogelijk. Hiervoor is geen vergunning vereist. Er kunnen in de toekomst dus 5 (misschien zelfs 6) zelfstandige woningen met een eigen perceel grond gerealiseerd worden. Wel dient er rekening gehouden te worden met de kosten voor de Kadastrale splitsing (en uitmeting) en het vestigingen van erfdienstbaarheden zoals een recht van overpad om te komen en gaan van en naar de openbare weg. Als het geheel in eigendom blijft van een persoon, is dit natuurlijk niet nodig.
Bijzonderheden:
- Vraagprijs € 2.225.000,-- K.K.
- Woonoppervlakte totaal ca. 465 m²
- Meerdere kadastrale percelen met een gezamenlijke oppervlakte van 2.210 m²
- Verwarming en warm water via een HR-ketel
- Unieke mogelijkheid om (deels) te verhuren of om samen te wonen met familie, vrienden en gelijkgestemden (woongroep)
- Prachtige locatie aan de rand van Ransdorp, aan het water en omringd door natuur
- Het perceel is niet met de auto bereikbaar
- Energielabels 1x B en 4x C
De op deze website getoonde vrijblijvende informatie is met zorg door ons samengesteld op basis van gegevens van de verkoper (en/of derden). Wij staan niet in voor de juistheid of volledigheid daarvan. Wij adviseren je om contact met ons op te nemen bij interesse in een van onze woningen of je door een eigen NVM makelaar te laten bijstaan.
Wij zijn niet verantwoordelijk voor de inhoud van de websites waarnaar verwezen wordt.
De grond met opstallen, prachtig gelegen aan de Weersloot, wordt omringd door een beschermd weidevogelgebied. Vanaf een van de steigers op eigen terrein kun je gaan varen, suppen of de omgeving met een kano verkennen. Het uitzicht is van ongekende schoonheid, weg van de dagelijkse hectiek. In Ransdorp zijn enkele voorzieningen zoals een openbare basisschool, hotel-café en een bushalte. De smalle straatjes, de prachtige kerk en de ophaalbruggetjes zorgen voor een dorp met uitstraling.
Alle woningen zijn voorzien van een nette eigen keuken (6x) en badkamer (6x). Om een duidelijke voorstelling te maken van het geheel, is ervoor gekozen om geen foto's van binnen te plaatsen. Wel hebben wij een 3 tal foto's (collage) toegevoegd om een indruk te schetsen van de afwerking binnen.
Indeling:
Parkeer je auto op het parkeerterrein bij de kerk en loop of fiets vervolgens via het pad langs het Raadhuis uit 1652 naar het 'landgoed'. Aan het einde van het pad loop je de percelen op, waar je eerst een aantal bijgebouwen ziet die als schuur en duiventil in gebruik zijn. Verder zie je het water, tuin en het omringende weidevogelgebied dat een beschermde status heeft. Op het perceel zijn een zwembad en diverse steigers voor ongekend veel waterpret.
Hoofdwoning (huisnummer 67):
Het originele huis is verdeeld in twee zelfstandige woonruimtes, gesplitst over de begane grond en eerste verdieping. De benedenwoning van ca. 90 m² is ingedeeld met een hal, woonkamer, open keuken, slaapkamer, toiletruimte en een badkamer. Geheel gelijkvloers! De bovenwoning (ca. 45 m²) heeft een eigen entree via een buitentrap die leidt naar het terras (ca. 8 m²). Vanuit de hal loop je naar de woonkamer met open keuken. Verder zijn er een badkamer en een slaapkamer.
Samenvattend:
- Gelijkvloerse benedenwoning van ca. 93 m² met tuin
- Bovenwoning (ca. 41 m²) met eigen entree en terras (8 m²)
Woonobject waterkant (huisnummers 67A en 67B):
Aan de achterzijde van het perceel staan twee woonobjecten, waarbij het linker object aan de waterkant staat. Deze heeft een totale oppervlakte van ca. 165 m², gesplitst in twee wooneenheden van ca. 75 en 90 m². De eerste eenheid is ingedeeld met een hal, woonkamer, open keuken, badkamer en twee slaapkamers. In de tweede, tevens grootste eenheid is de indeling als volgt: hal, woonkamer, open keuken, drie slaapkamers en een badkamer.
Samenvattend:
- Wooneenheid 1 (67 A) van ca. 76 m² met twee slaapkamers
- Wooneenheid 2 (67 B) van ca. 93 m² met drie slaapkamers
Woonobject noordzijde (huisnummers 67C en 67D):
Het rechter woonobject heeft een totale oppervlakte van ca. 160 m², gesplitst in twee wooneenheden van ca. 100 en 60 m². De eerste eenheid (voorzijde) is ingedeeld met een hal, woonkamer, open keuken, badkamer en een slaapkamer. In de tweede, tevens grootste eenheid is de indeling als volgt: woonkamer, open keuken, serre, slaapkamer, badkamer en wasruimte. Bij deze eenheid horen een tuin en volière.
Samenvattend:
- Wooneenheid 1 (67 C) van ca. 58 m² met een slaapkamer
- Wooneenheid 2 (67 D) van ca. 102 m² met een slaapkamer
Omgeving:
Ransdorp heeft een mooie ligging aan de rand van Amsterdam. Verken de prachtige omgeving met prachtige natuur, water en charmante dorpjes waar bewoners met veel plezier wonen. De Ring A10 is goed bereikbaar, net als de vele voorzieningen in Amsterdam Noord.
Parkeren:
Het terrein is niet bereikbaar met de auto. Bij de kerk is een parkeerterrein, waarna je lopend naar het complex kunt lopen. Voor wie zelfvoorzienend en in een woongroep wil wonen, is een auto op het erf wellicht geen wenselijk idee en een elektrische deelauto op het parkeerterrein misschien een betere optie.
Kadaster:
In verband met recente afsplitsing is nog niet alles correct in het Kadaster verwerkt. Totaal betreft het ca. 2.210 m2 aan eigen grond. Andere Kadastrale verdelingen zijn zeer goed mogelijk. Hiervoor is geen vergunning vereist. Er kunnen in de toekomst dus 5 (misschien zelfs 6) zelfstandige woningen met een eigen perceel grond gerealiseerd worden. Wel dient er rekening gehouden te worden met de kosten voor de Kadastrale splitsing (en uitmeting) en het vestigingen van erfdienstbaarheden zoals een recht van overpad om te komen en gaan van en naar de openbare weg. Als het geheel in eigendom blijft van een persoon, is dit natuurlijk niet nodig.
Bijzonderheden:
- Vraagprijs € 2.225.000,-- K.K.
- Woonoppervlakte totaal ca. 465 m²
- Meerdere kadastrale percelen met een gezamenlijke oppervlakte van 2.210 m²
- Verwarming en warm water via een HR-ketel
- Unieke mogelijkheid om (deels) te verhuren of om samen te wonen met familie, vrienden en gelijkgestemden (woongroep)
- Prachtige locatie aan de rand van Ransdorp, aan het water en omringd door natuur
- Het perceel is niet met de auto bereikbaar
- Energielabels 1x B en 4x C
De op deze website getoonde vrijblijvende informatie is met zorg door ons samengesteld op basis van gegevens van de verkoper (en/of derden). Wij staan niet in voor de juistheid of volledigheid daarvan. Wij adviseren je om contact met ons op te nemen bij interesse in een van onze woningen of je door een eigen NVM makelaar te laten bijstaan.
Wij zijn niet verantwoordelijk voor de inhoud van de websites waarnaar verwezen wordt.
Beschrijving
Uniek is een veelgebruikt woord, maar hier zeker van toepassing. Aan de rand van Ransdorp (Gemeente Amsterdam), krijg je de kans om dit unieke geheel met 6 wooneenheden (5 huisnummers) en diverse bijgebouwen te bewonen. Rust, natuur en water zijn de elementen die je de kans geven om te onthaasten, om (deels) te verhuren en waar je kunt samenwonen met familie of vrienden. Je kunt alles op de huidige wijze behouden en/ of er zelf een invulling aan geven.
De grond met opstallen, prachtig gelegen aan de Weersloot, wordt omringd door een beschermd weidevogelgebied. Vanaf een van de steigers op eigen terrein kun je gaan varen, suppen of de omgeving met een kano verkennen. Het uitzicht is van ongekende schoonheid, weg van de dagelijkse hectiek. In Ransdorp zijn enkele voorzieningen zoals een openbare basisschool, hotel-café en een bushalte. De smalle straatjes, de prachtige kerk en de ophaalbruggetjes zorgen voor een dorp met uitstraling.
Alle woningen zijn voorzien van een nette eigen keuken (6x) en badkamer (6x). Om een duidelijke voorstelling te maken van het geheel, is ervoor gekozen om geen foto's van binnen te plaatsen. Wel hebben wij een 3 tal foto's (collage) toegevoegd om een indruk te schetsen van de afwerking binnen.
Indeling:
Parkeer je auto op het parkeerterrein bij de kerk en loop of fiets vervolgens via het pad langs het Raadhuis uit 1652 naar het 'landgoed'. Aan het einde van het pad loop je de percelen op, waar je eerst een aantal bijgebouwen ziet die als schuur en duiventil in gebruik zijn. Verder zie je het water, tuin en het omringende weidevogelgebied dat een beschermde status heeft. Op het perceel zijn een zwembad en diverse steigers voor ongekend veel waterpret.
Hoofdwoning (huisnummer 67):
Het originele huis is verdeeld in twee zelfstandige woonruimtes, gesplitst over de begane grond en eerste verdieping. De benedenwoning van ca. 90 m² is ingedeeld met een hal, woonkamer, open keuken, slaapkamer, toiletruimte en een badkamer. Geheel gelijkvloers! De bovenwoning (ca. 45 m²) heeft een eigen entree via een buitentrap die leidt naar het terras (ca. 8 m²). Vanuit de hal loop je naar de woonkamer met open keuken. Verder zijn er een badkamer en een slaapkamer.
Samenvattend:
- Gelijkvloerse benedenwoning van ca. 93 m² met tuin
- Bovenwoning (ca. 41 m²) met eigen entree en terras (8 m²)
Woonobject waterkant (huisnummers 67A en 67B):
Aan de achterzijde van het perceel staan twee woonobjecten, waarbij het linker object aan de waterkant staat. Deze heeft een totale oppervlakte van ca. 165 m², gesplitst in twee wooneenheden van ca. 75 en 90 m². De eerste eenheid is ingedeeld met een hal, woonkamer, open keuken, badkamer en twee slaapkamers. In de tweede, tevens grootste eenheid is de indeling als volgt: hal, woonkamer, open keuken, drie slaapkamers en een badkamer.
Samenvattend:
- Wooneenheid 1 (67 A) van ca. 76 m² met twee slaapkamers
- Wooneenheid 2 (67 B) van ca. 93 m² met drie slaapkamers
Woonobject noordzijde (huisnummers 67C en 67D):
Het rechter woonobject heeft een totale oppervlakte van ca. 160 m², gesplitst in twee wooneenheden van ca. 100 en 60 m². De eerste eenheid (voorzijde) is ingedeeld met een hal, woonkamer, open keuken, badkamer en een slaapkamer. In de tweede, tevens grootste eenheid is de indeling als volgt: woonkamer, open keuken, serre, slaapkamer, badkamer en wasruimte. Bij deze eenheid horen een tuin en volière.
Samenvattend:
- Wooneenheid 1 (67 C) van ca. 58 m² met een slaapkamer
- Wooneenheid 2 (67 D) van ca. 102 m² met een slaapkamer
Omgeving:
Ransdorp heeft een mooie ligging aan de rand van Amsterdam. Verken de prachtige omgeving met prachtige natuur, water en charmante dorpjes waar bewoners met veel plezier wonen. De Ring A10 is goed bereikbaar, net als de vele voorzieningen in Amsterdam Noord.
Parkeren:
Het terrein is niet bereikbaar met de auto. Bij de kerk is een parkeerterrein, waarna je lopend naar het complex kunt lopen. Voor wie zelfvoorzienend en in een woongroep wil wonen, is een auto op het erf wellicht geen wenselijk idee en een elektrische deelauto op het parkeerterrein misschien een betere optie.
Kadaster:
In verband met recente afsplitsing is nog niet alles correct in het Kadaster verwerkt. Totaal betreft het ca. 2.210 m2 aan eigen grond. Andere Kadastrale verdelingen zijn zeer goed mogelijk. Hiervoor is geen vergunning vereist. Er kunnen in de toekomst dus 5 (misschien zelfs 6) zelfstandige woningen met een eigen perceel grond gerealiseerd worden. Wel dient er rekening gehouden te worden met de kosten voor de Kadastrale splitsing (en uitmeting) en het vestigingen van erfdienstbaarheden zoals een recht van overpad om te komen en gaan van en naar de openbare weg. Als het geheel in eigendom blijft van een persoon, is dit natuurlijk niet nodig.
Bijzonderheden:
- Vraagprijs € 2.225.000,-- K.K.
- Woonoppervlakte totaal ca. 465 m²
- Meerdere kadastrale percelen met een gezamenlijke oppervlakte van 2.210 m²
- Verwarming en warm water via een HR-ketel
- Unieke mogelijkheid om (deels) te verhuren of om samen te wonen met familie, vrienden en gelijkgestemden (woongroep)
- Prachtige locatie aan de rand van Ransdorp, aan het water en omringd door natuur
- Het perceel is niet met de auto bereikbaar
- Energielabels 1x B en 4x C
De op deze website getoonde vrijblijvende informatie is met zorg door ons samengesteld op basis van gegevens van de verkoper (en/of derden). Wij staan niet in voor de juistheid of volledigheid daarvan. Wij adviseren je om contact met ons op te nemen bij interesse in een van onze woningen of je door een eigen NVM makelaar te laten bijstaan.
Wij zijn niet verantwoordelijk voor de inhoud van de websites waarnaar verwezen wordt.
De grond met opstallen, prachtig gelegen aan de Weersloot, wordt omringd door een beschermd weidevogelgebied. Vanaf een van de steigers op eigen terrein kun je gaan varen, suppen of de omgeving met een kano verkennen. Het uitzicht is van ongekende schoonheid, weg van de dagelijkse hectiek. In Ransdorp zijn enkele voorzieningen zoals een openbare basisschool, hotel-café en een bushalte. De smalle straatjes, de prachtige kerk en de ophaalbruggetjes zorgen voor een dorp met uitstraling.
Alle woningen zijn voorzien van een nette eigen keuken (6x) en badkamer (6x). Om een duidelijke voorstelling te maken van het geheel, is ervoor gekozen om geen foto's van binnen te plaatsen. Wel hebben wij een 3 tal foto's (collage) toegevoegd om een indruk te schetsen van de afwerking binnen.
Indeling:
Parkeer je auto op het parkeerterrein bij de kerk en loop of fiets vervolgens via het pad langs het Raadhuis uit 1652 naar het 'landgoed'. Aan het einde van het pad loop je de percelen op, waar je eerst een aantal bijgebouwen ziet die als schuur en duiventil in gebruik zijn. Verder zie je het water, tuin en het omringende weidevogelgebied dat een beschermde status heeft. Op het perceel zijn een zwembad en diverse steigers voor ongekend veel waterpret.
Hoofdwoning (huisnummer 67):
Het originele huis is verdeeld in twee zelfstandige woonruimtes, gesplitst over de begane grond en eerste verdieping. De benedenwoning van ca. 90 m² is ingedeeld met een hal, woonkamer, open keuken, slaapkamer, toiletruimte en een badkamer. Geheel gelijkvloers! De bovenwoning (ca. 45 m²) heeft een eigen entree via een buitentrap die leidt naar het terras (ca. 8 m²). Vanuit de hal loop je naar de woonkamer met open keuken. Verder zijn er een badkamer en een slaapkamer.
Samenvattend:
- Gelijkvloerse benedenwoning van ca. 93 m² met tuin
- Bovenwoning (ca. 41 m²) met eigen entree en terras (8 m²)
Woonobject waterkant (huisnummers 67A en 67B):
Aan de achterzijde van het perceel staan twee woonobjecten, waarbij het linker object aan de waterkant staat. Deze heeft een totale oppervlakte van ca. 165 m², gesplitst in twee wooneenheden van ca. 75 en 90 m². De eerste eenheid is ingedeeld met een hal, woonkamer, open keuken, badkamer en twee slaapkamers. In de tweede, tevens grootste eenheid is de indeling als volgt: hal, woonkamer, open keuken, drie slaapkamers en een badkamer.
Samenvattend:
- Wooneenheid 1 (67 A) van ca. 76 m² met twee slaapkamers
- Wooneenheid 2 (67 B) van ca. 93 m² met drie slaapkamers
Woonobject noordzijde (huisnummers 67C en 67D):
Het rechter woonobject heeft een totale oppervlakte van ca. 160 m², gesplitst in twee wooneenheden van ca. 100 en 60 m². De eerste eenheid (voorzijde) is ingedeeld met een hal, woonkamer, open keuken, badkamer en een slaapkamer. In de tweede, tevens grootste eenheid is de indeling als volgt: woonkamer, open keuken, serre, slaapkamer, badkamer en wasruimte. Bij deze eenheid horen een tuin en volière.
Samenvattend:
- Wooneenheid 1 (67 C) van ca. 58 m² met een slaapkamer
- Wooneenheid 2 (67 D) van ca. 102 m² met een slaapkamer
Omgeving:
Ransdorp heeft een mooie ligging aan de rand van Amsterdam. Verken de prachtige omgeving met prachtige natuur, water en charmante dorpjes waar bewoners met veel plezier wonen. De Ring A10 is goed bereikbaar, net als de vele voorzieningen in Amsterdam Noord.
Parkeren:
Het terrein is niet bereikbaar met de auto. Bij de kerk is een parkeerterrein, waarna je lopend naar het complex kunt lopen. Voor wie zelfvoorzienend en in een woongroep wil wonen, is een auto op het erf wellicht geen wenselijk idee en een elektrische deelauto op het parkeerterrein misschien een betere optie.
Kadaster:
In verband met recente afsplitsing is nog niet alles correct in het Kadaster verwerkt. Totaal betreft het ca. 2.210 m2 aan eigen grond. Andere Kadastrale verdelingen zijn zeer goed mogelijk. Hiervoor is geen vergunning vereist. Er kunnen in de toekomst dus 5 (misschien zelfs 6) zelfstandige woningen met een eigen perceel grond gerealiseerd worden. Wel dient er rekening gehouden te worden met de kosten voor de Kadastrale splitsing (en uitmeting) en het vestigingen van erfdienstbaarheden zoals een recht van overpad om te komen en gaan van en naar de openbare weg. Als het geheel in eigendom blijft van een persoon, is dit natuurlijk niet nodig.
Bijzonderheden:
- Vraagprijs € 2.225.000,-- K.K.
- Woonoppervlakte totaal ca. 465 m²
- Meerdere kadastrale percelen met een gezamenlijke oppervlakte van 2.210 m²
- Verwarming en warm water via een HR-ketel
- Unieke mogelijkheid om (deels) te verhuren of om samen te wonen met familie, vrienden en gelijkgestemden (woongroep)
- Prachtige locatie aan de rand van Ransdorp, aan het water en omringd door natuur
- Het perceel is niet met de auto bereikbaar
- Energielabels 1x B en 4x C
De op deze website getoonde vrijblijvende informatie is met zorg door ons samengesteld op basis van gegevens van de verkoper (en/of derden). Wij staan niet in voor de juistheid of volledigheid daarvan. Wij adviseren je om contact met ons op te nemen bij interesse in een van onze woningen of je door een eigen NVM makelaar te laten bijstaan.
Wij zijn niet verantwoordelijk voor de inhoud van de websites waarnaar verwezen wordt.
powered by Friva | Lees ons Privacybeleid


















































