OOSTZAAN
€ 1.399.000
De Haal 100
4 Kamers
1 Badkamers
3 Slaapkamers
130 m²
A
TUIN_RONDOM
Bezichtiging aanvragen
Beschrijving
Uniek! Natuur, rust en ruimte. Wonen op een prachtig eiland.
Vrijstaand wonen op je eigen eiland in Oostzaan, nabij natuur- en recreatiegebied het Twiske. Het perceel van maar liefst 3120 m2 wordt aan vier kanten omringd door water en grenst aan de Ringvaart waardoor je met een boot naar Het Twiske en Amsterdam kunt varen. De paddock, schuilstal en het grote bijgebouw met zadelkamer, paardenboxen en merrie-veulenbox maken De Haal 100 een droomplek voor de paardenliefhebber.
De locatie is uniek. Je wordt omringd door water, natuur en een uitgestrekt open landschap terwijl je toch op slechts 10 minuten van de A7 en 12 minuten van Amsterdam woont. Het Oer-Hollands decor van weilanden, akkers, boerderijen, vrijstaande woningen en slootjes wordt steeds zeldzamer in de Randstad. Dit is de perfecte plek voor mens en dier…
Indeling:
Begane grond:
Rij over het bruggetje naar de oprit, stap uit en bewonder deze fantastische plek. Aan de voorzijde van de villa is de stijlvolle entree. In de zeer ruime hal zie je paneeldeuren en de trap naar de eerste verdieping. Achter een van de deuren is de prachtige toiletruimte met wandcloset en fonteinkast gesitueerd.
De L-vormige woonkamer is een zeer lichte leefruimte met fantastisch uitzicht aan drie zijden. Openslaande deuren aan de zuidkant geven toegang tot de achtertuin en aan de linkerzijde zijn de woonkeuken en bijkeuken gesitueerd. De zeer ruime keuken heeft een wandopstelling met hexagon tegels op de wand en een deel van de apparatuur is ingebouwd: een gaskookplaat, afzuigkap, vaatwasser en een heteluchtoven. Vanuit de bijkeuken, waar ruimte is voor de wasapparatuur, zijn de tuin en garage te bereiken. Met een oppervlakte van 24,5m2 biedt de verwarmde garage genoeg ruimte voor een auto, de fietsen, scooter en/of een motor. Deze ruimte kan ook verbouwd worden tot slaap- en badkamer waardoor gelijkvloers wonen mogelijk is.
Eerste verdieping:
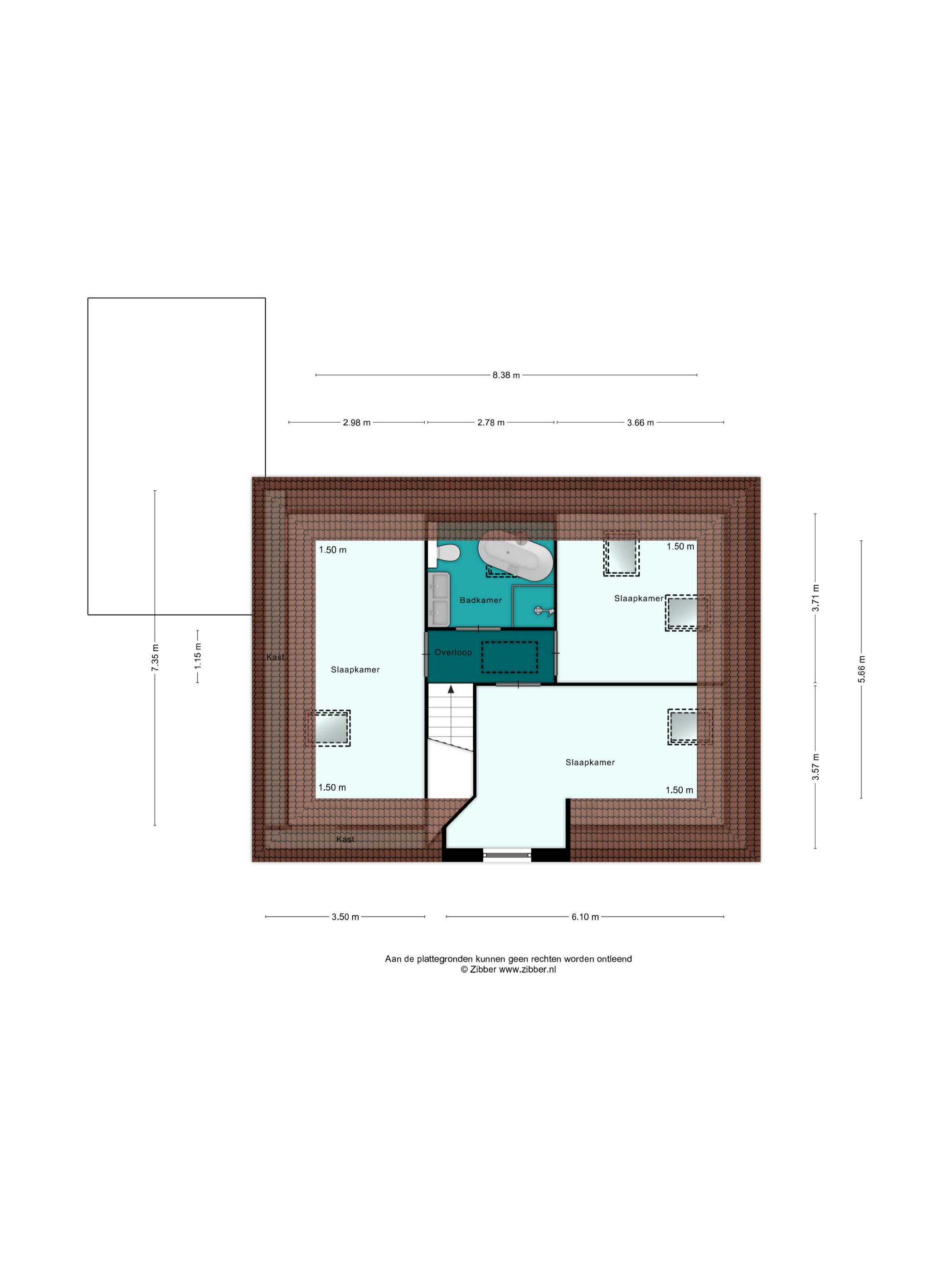
Op de eerste verdieping zijn drie ruime slaapkamers. De slaapkamer aan de voorzijde heeft een mooie dakkapel met prachtig uitzicht en dakramen zorgen in alle kamers voor veel lichtinval. Net als op de begane grond ligt er laminaat op de vloer.
De badkamer is in dezelfde stijl als de toiletruimte uitgevoerd; trendy, luxe en boordevol sfeer. Blikvanger is het grote, ovale bad met vrijstaande badkraan die onder het grote dakraam staat. Verder is de badkamer ingedeeld met een regendouche, tweede toilet en een dubbel wastafelmeubel. De vloerverwarming en industriële douchewand met deur maken deze badkamer meer dan af.
Zolder:
In de nok van de villa is een bergzolder, te bereiken via een vlizotrap.
Bijgebouwen:
Op het perceel staan drie bijgebouwen: de paardenstallen, een inloopstal en een berging met veranda. Het grote bijgebouw is verdeeld in een merriestal, vier ruime paardenboxen en een zadelkamer. In een van de boxen is een luik naar de (hooi)zolder. De paardenstal is vanuit de keuken te bewonderen en grenst aan het weiland en de paddock. De Paddock is altijd goed begaanbaar. Uitstekende buitenrit mogelijkheden in natuur- en recreatiegebied het Twiske met veel ruiterpaden en een verbinding met Purmer bos.
Tuin en weiland:
Het perceel van 3.120m2 is verdeeld in een oprit, siertuin, fruitbomen, paddock en een weiland.. Via de met grind bedekte oprit heb je een directe toegang tot de paddock aan de zuidkant van het perceel. De bomen, het wuivende riet en het terras aan de zuidkant dragen bij aan de fantastische sfeer die je hier ervaart.
Omgeving:
Voor de dagelijkse voorzieningen, waaronder winkels en scholen, kun je terecht in Oostzaan, Landsmeer en Purmerend. Het is iets meer dan 1 kilometer fietsen naar de bushalte, waar bus 125 voor een directe verbinding met Landsmeer en Purmerend zorgt. Landelijk wonen met paardenfaciliteiten op slechts 20 minuten van de Ring Amsterdam; het is een kans die je niet mag missen…
Parkeren:
Op eigen terrein is ruime parkeergelegenheid voor meerdere auto’s, een aanhanger en de paardentrailer.
Bijzonderheden:
- De woning heeft dak-, spouwmuur- en vloerisolatie met een aantoonbare RC-waarde van 3.0;
- Hardhouten kozijnen, voorzien van HR ++-glas;
- Boeidelen van Red Cedar, duurzame materialen
- Bij wijzing van het gebruik ook goede mogelijkheden voor een Bed & Breakfast
- Verwarming en warm water via een HR-ketel (Remeha);
- Unieke locatie op 20 minuten van Amsterdam;
- Wonen op een eigen schiereiland, aan vier zijden omringd door water;
- Uitstekende faciliteiten voor het houden van paarden;
- Groot bouwvlak van bijna 900 m2
- Energielabel A, geldig tot 16-11-2030
- Oplevering in overleg
Vrijstaand wonen op je eigen eiland in Oostzaan, nabij natuur- en recreatiegebied het Twiske. Het perceel van maar liefst 3120 m2 wordt aan vier kanten omringd door water en grenst aan de Ringvaart waardoor je met een boot naar Het Twiske en Amsterdam kunt varen. De paddock, schuilstal en het grote bijgebouw met zadelkamer, paardenboxen en merrie-veulenbox maken De Haal 100 een droomplek voor de paardenliefhebber.
De locatie is uniek. Je wordt omringd door water, natuur en een uitgestrekt open landschap terwijl je toch op slechts 10 minuten van de A7 en 12 minuten van Amsterdam woont. Het Oer-Hollands decor van weilanden, akkers, boerderijen, vrijstaande woningen en slootjes wordt steeds zeldzamer in de Randstad. Dit is de perfecte plek voor mens en dier…
Indeling:
Begane grond:
Rij over het bruggetje naar de oprit, stap uit en bewonder deze fantastische plek. Aan de voorzijde van de villa is de stijlvolle entree. In de zeer ruime hal zie je paneeldeuren en de trap naar de eerste verdieping. Achter een van de deuren is de prachtige toiletruimte met wandcloset en fonteinkast gesitueerd.
De L-vormige woonkamer is een zeer lichte leefruimte met fantastisch uitzicht aan drie zijden. Openslaande deuren aan de zuidkant geven toegang tot de achtertuin en aan de linkerzijde zijn de woonkeuken en bijkeuken gesitueerd. De zeer ruime keuken heeft een wandopstelling met hexagon tegels op de wand en een deel van de apparatuur is ingebouwd: een gaskookplaat, afzuigkap, vaatwasser en een heteluchtoven. Vanuit de bijkeuken, waar ruimte is voor de wasapparatuur, zijn de tuin en garage te bereiken. Met een oppervlakte van 24,5m2 biedt de verwarmde garage genoeg ruimte voor een auto, de fietsen, scooter en/of een motor. Deze ruimte kan ook verbouwd worden tot slaap- en badkamer waardoor gelijkvloers wonen mogelijk is.
Eerste verdieping:
Op de eerste verdieping zijn drie ruime slaapkamers. De slaapkamer aan de voorzijde heeft een mooie dakkapel met prachtig uitzicht en dakramen zorgen in alle kamers voor veel lichtinval. Net als op de begane grond ligt er laminaat op de vloer.
De badkamer is in dezelfde stijl als de toiletruimte uitgevoerd; trendy, luxe en boordevol sfeer. Blikvanger is het grote, ovale bad met vrijstaande badkraan die onder het grote dakraam staat. Verder is de badkamer ingedeeld met een regendouche, tweede toilet en een dubbel wastafelmeubel. De vloerverwarming en industriële douchewand met deur maken deze badkamer meer dan af.
Zolder:
In de nok van de villa is een bergzolder, te bereiken via een vlizotrap.
Bijgebouwen:
Op het perceel staan drie bijgebouwen: de paardenstallen, een inloopstal en een berging met veranda. Het grote bijgebouw is verdeeld in een merriestal, vier ruime paardenboxen en een zadelkamer. In een van de boxen is een luik naar de (hooi)zolder. De paardenstal is vanuit de keuken te bewonderen en grenst aan het weiland en de paddock. De Paddock is altijd goed begaanbaar. Uitstekende buitenrit mogelijkheden in natuur- en recreatiegebied het Twiske met veel ruiterpaden en een verbinding met Purmer bos.
Tuin en weiland:
Het perceel van 3.120m2 is verdeeld in een oprit, siertuin, fruitbomen, paddock en een weiland.. Via de met grind bedekte oprit heb je een directe toegang tot de paddock aan de zuidkant van het perceel. De bomen, het wuivende riet en het terras aan de zuidkant dragen bij aan de fantastische sfeer die je hier ervaart.
Omgeving:
Voor de dagelijkse voorzieningen, waaronder winkels en scholen, kun je terecht in Oostzaan, Landsmeer en Purmerend. Het is iets meer dan 1 kilometer fietsen naar de bushalte, waar bus 125 voor een directe verbinding met Landsmeer en Purmerend zorgt. Landelijk wonen met paardenfaciliteiten op slechts 20 minuten van de Ring Amsterdam; het is een kans die je niet mag missen…
Parkeren:
Op eigen terrein is ruime parkeergelegenheid voor meerdere auto’s, een aanhanger en de paardentrailer.
Bijzonderheden:
- De woning heeft dak-, spouwmuur- en vloerisolatie met een aantoonbare RC-waarde van 3.0;
- Hardhouten kozijnen, voorzien van HR ++-glas;
- Boeidelen van Red Cedar, duurzame materialen
- Bij wijzing van het gebruik ook goede mogelijkheden voor een Bed & Breakfast
- Verwarming en warm water via een HR-ketel (Remeha);
- Unieke locatie op 20 minuten van Amsterdam;
- Wonen op een eigen schiereiland, aan vier zijden omringd door water;
- Uitstekende faciliteiten voor het houden van paarden;
- Groot bouwvlak van bijna 900 m2
- Energielabel A, geldig tot 16-11-2030
- Oplevering in overleg
Beschrijving
Uniek! Natuur, rust en ruimte. Wonen op een prachtig eiland.
Vrijstaand wonen op je eigen eiland in Oostzaan, nabij natuur- en recreatiegebied het Twiske. Het perceel van maar liefst 3120 m2 wordt aan vier kanten omringd door water en grenst aan de Ringvaart waardoor je met een boot naar Het Twiske en Amsterdam kunt varen. De paddock, schuilstal en het grote bijgebouw met zadelkamer, paardenboxen en merrie-veulenbox maken De Haal 100 een droomplek voor de paardenliefhebber.
De locatie is uniek. Je wordt omringd door water, natuur en een uitgestrekt open landschap terwijl je toch op slechts 10 minuten van de A7 en 12 minuten van Amsterdam woont. Het Oer-Hollands decor van weilanden, akkers, boerderijen, vrijstaande woningen en slootjes wordt steeds zeldzamer in de Randstad. Dit is de perfecte plek voor mens en dier…
Indeling:
Begane grond:
Rij over het bruggetje naar de oprit, stap uit en bewonder deze fantastische plek. Aan de voorzijde van de villa is de stijlvolle entree. In de zeer ruime hal zie je paneeldeuren en de trap naar de eerste verdieping. Achter een van de deuren is de prachtige toiletruimte met wandcloset en fonteinkast gesitueerd.
De L-vormige woonkamer is een zeer lichte leefruimte met fantastisch uitzicht aan drie zijden. Openslaande deuren aan de zuidkant geven toegang tot de achtertuin en aan de linkerzijde zijn de woonkeuken en bijkeuken gesitueerd. De zeer ruime keuken heeft een wandopstelling met hexagon tegels op de wand en een deel van de apparatuur is ingebouwd: een gaskookplaat, afzuigkap, vaatwasser en een heteluchtoven. Vanuit de bijkeuken, waar ruimte is voor de wasapparatuur, zijn de tuin en garage te bereiken. Met een oppervlakte van 24,5m2 biedt de verwarmde garage genoeg ruimte voor een auto, de fietsen, scooter en/of een motor. Deze ruimte kan ook verbouwd worden tot slaap- en badkamer waardoor gelijkvloers wonen mogelijk is.
Eerste verdieping:
Op de eerste verdieping zijn drie ruime slaapkamers. De slaapkamer aan de voorzijde heeft een mooie dakkapel met prachtig uitzicht en dakramen zorgen in alle kamers voor veel lichtinval. Net als op de begane grond ligt er laminaat op de vloer.
De badkamer is in dezelfde stijl als de toiletruimte uitgevoerd; trendy, luxe en boordevol sfeer. Blikvanger is het grote, ovale bad met vrijstaande badkraan die onder het grote dakraam staat. Verder is de badkamer ingedeeld met een regendouche, tweede toilet en een dubbel wastafelmeubel. De vloerverwarming en industriële douchewand met deur maken deze badkamer meer dan af.
Zolder:
In de nok van de villa is een bergzolder, te bereiken via een vlizotrap.
Bijgebouwen:
Op het perceel staan drie bijgebouwen: de paardenstallen, een inloopstal en een berging met veranda. Het grote bijgebouw is verdeeld in een merriestal, vier ruime paardenboxen en een zadelkamer. In een van de boxen is een luik naar de (hooi)zolder. De paardenstal is vanuit de keuken te bewonderen en grenst aan het weiland en de paddock. De Paddock is altijd goed begaanbaar. Uitstekende buitenrit mogelijkheden in natuur- en recreatiegebied het Twiske met veel ruiterpaden en een verbinding met Purmer bos.
Tuin en weiland:
Het perceel van 3.120m2 is verdeeld in een oprit, siertuin, fruitbomen, paddock en een weiland.. Via de met grind bedekte oprit heb je een directe toegang tot de paddock aan de zuidkant van het perceel. De bomen, het wuivende riet en het terras aan de zuidkant dragen bij aan de fantastische sfeer die je hier ervaart.
Omgeving:
Voor de dagelijkse voorzieningen, waaronder winkels en scholen, kun je terecht in Oostzaan, Landsmeer en Purmerend. Het is iets meer dan 1 kilometer fietsen naar de bushalte, waar bus 125 voor een directe verbinding met Landsmeer en Purmerend zorgt. Landelijk wonen met paardenfaciliteiten op slechts 20 minuten van de Ring Amsterdam; het is een kans die je niet mag missen…
Parkeren:
Op eigen terrein is ruime parkeergelegenheid voor meerdere auto’s, een aanhanger en de paardentrailer.
Bijzonderheden:
- De woning heeft dak-, spouwmuur- en vloerisolatie met een aantoonbare RC-waarde van 3.0;
- Hardhouten kozijnen, voorzien van HR ++-glas;
- Boeidelen van Red Cedar, duurzame materialen
- Bij wijzing van het gebruik ook goede mogelijkheden voor een Bed & Breakfast
- Verwarming en warm water via een HR-ketel (Remeha);
- Unieke locatie op 20 minuten van Amsterdam;
- Wonen op een eigen schiereiland, aan vier zijden omringd door water;
- Uitstekende faciliteiten voor het houden van paarden;
- Groot bouwvlak van bijna 900 m2
- Energielabel A, geldig tot 16-11-2030
- Oplevering in overleg
Vrijstaand wonen op je eigen eiland in Oostzaan, nabij natuur- en recreatiegebied het Twiske. Het perceel van maar liefst 3120 m2 wordt aan vier kanten omringd door water en grenst aan de Ringvaart waardoor je met een boot naar Het Twiske en Amsterdam kunt varen. De paddock, schuilstal en het grote bijgebouw met zadelkamer, paardenboxen en merrie-veulenbox maken De Haal 100 een droomplek voor de paardenliefhebber.
De locatie is uniek. Je wordt omringd door water, natuur en een uitgestrekt open landschap terwijl je toch op slechts 10 minuten van de A7 en 12 minuten van Amsterdam woont. Het Oer-Hollands decor van weilanden, akkers, boerderijen, vrijstaande woningen en slootjes wordt steeds zeldzamer in de Randstad. Dit is de perfecte plek voor mens en dier…
Indeling:
Begane grond:
Rij over het bruggetje naar de oprit, stap uit en bewonder deze fantastische plek. Aan de voorzijde van de villa is de stijlvolle entree. In de zeer ruime hal zie je paneeldeuren en de trap naar de eerste verdieping. Achter een van de deuren is de prachtige toiletruimte met wandcloset en fonteinkast gesitueerd.
De L-vormige woonkamer is een zeer lichte leefruimte met fantastisch uitzicht aan drie zijden. Openslaande deuren aan de zuidkant geven toegang tot de achtertuin en aan de linkerzijde zijn de woonkeuken en bijkeuken gesitueerd. De zeer ruime keuken heeft een wandopstelling met hexagon tegels op de wand en een deel van de apparatuur is ingebouwd: een gaskookplaat, afzuigkap, vaatwasser en een heteluchtoven. Vanuit de bijkeuken, waar ruimte is voor de wasapparatuur, zijn de tuin en garage te bereiken. Met een oppervlakte van 24,5m2 biedt de verwarmde garage genoeg ruimte voor een auto, de fietsen, scooter en/of een motor. Deze ruimte kan ook verbouwd worden tot slaap- en badkamer waardoor gelijkvloers wonen mogelijk is.
Eerste verdieping:
Op de eerste verdieping zijn drie ruime slaapkamers. De slaapkamer aan de voorzijde heeft een mooie dakkapel met prachtig uitzicht en dakramen zorgen in alle kamers voor veel lichtinval. Net als op de begane grond ligt er laminaat op de vloer.
De badkamer is in dezelfde stijl als de toiletruimte uitgevoerd; trendy, luxe en boordevol sfeer. Blikvanger is het grote, ovale bad met vrijstaande badkraan die onder het grote dakraam staat. Verder is de badkamer ingedeeld met een regendouche, tweede toilet en een dubbel wastafelmeubel. De vloerverwarming en industriële douchewand met deur maken deze badkamer meer dan af.
Zolder:
In de nok van de villa is een bergzolder, te bereiken via een vlizotrap.
Bijgebouwen:
Op het perceel staan drie bijgebouwen: de paardenstallen, een inloopstal en een berging met veranda. Het grote bijgebouw is verdeeld in een merriestal, vier ruime paardenboxen en een zadelkamer. In een van de boxen is een luik naar de (hooi)zolder. De paardenstal is vanuit de keuken te bewonderen en grenst aan het weiland en de paddock. De Paddock is altijd goed begaanbaar. Uitstekende buitenrit mogelijkheden in natuur- en recreatiegebied het Twiske met veel ruiterpaden en een verbinding met Purmer bos.
Tuin en weiland:
Het perceel van 3.120m2 is verdeeld in een oprit, siertuin, fruitbomen, paddock en een weiland.. Via de met grind bedekte oprit heb je een directe toegang tot de paddock aan de zuidkant van het perceel. De bomen, het wuivende riet en het terras aan de zuidkant dragen bij aan de fantastische sfeer die je hier ervaart.
Omgeving:
Voor de dagelijkse voorzieningen, waaronder winkels en scholen, kun je terecht in Oostzaan, Landsmeer en Purmerend. Het is iets meer dan 1 kilometer fietsen naar de bushalte, waar bus 125 voor een directe verbinding met Landsmeer en Purmerend zorgt. Landelijk wonen met paardenfaciliteiten op slechts 20 minuten van de Ring Amsterdam; het is een kans die je niet mag missen…
Parkeren:
Op eigen terrein is ruime parkeergelegenheid voor meerdere auto’s, een aanhanger en de paardentrailer.
Bijzonderheden:
- De woning heeft dak-, spouwmuur- en vloerisolatie met een aantoonbare RC-waarde van 3.0;
- Hardhouten kozijnen, voorzien van HR ++-glas;
- Boeidelen van Red Cedar, duurzame materialen
- Bij wijzing van het gebruik ook goede mogelijkheden voor een Bed & Breakfast
- Verwarming en warm water via een HR-ketel (Remeha);
- Unieke locatie op 20 minuten van Amsterdam;
- Wonen op een eigen schiereiland, aan vier zijden omringd door water;
- Uitstekende faciliteiten voor het houden van paarden;
- Groot bouwvlak van bijna 900 m2
- Energielabel A, geldig tot 16-11-2030
- Oplevering in overleg
powered by Friva | Lees ons Privacybeleid


















































