AMSTERDAM - Weesperbuurt/Plantage
€ 1.650.000
Sarphatistraat 107-1
5 Kamers
1 Badkamers
4 Slaapkamers
225 m²
A
Onbekend
Bezichtiging aanvragen
Beschrijving
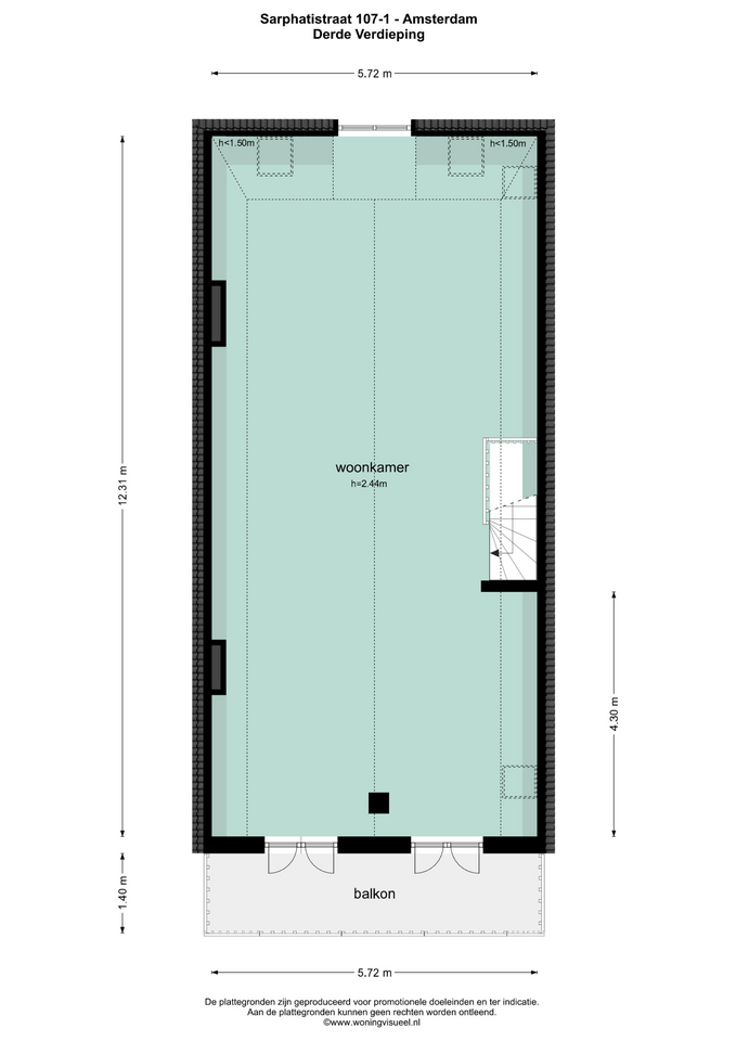
Op een toplocatie aan de Sarphatistraat in hartje Amsterdam Centrum-Oost, in de gewilde Plantagebuurt, bevindt zich dit charmante, ruime en karakteristieke DRIEDUBBEL BOVENHUIS van ca. 225m2. De woning combineert historische charme met modern wooncomfort, is gelegen in een prachtig pand met een fraaie gevel en is o.a. recent voorzien van nieuwe dakbedekking(2025). Mede dankzij het volledig opnieuw geïsoleerde dak, is het energielabel voor deze woning een A! Dankzij de hoge plafonds, met sierlijke ornamenten, en grote raampartijen profiteer je van een aangename lichtinval en een ruimtelijk gevoel. De eerste verdieping heeft twee werkende open haarden die het huis extra karakter geven. Met alle stedelijke voorzieningen binnen handbereik, naast de UvA, Artis én het Oosterpark om de hoek is dit een ideale plek voor wie op zoek is naar comfort, karakter en een centrale ligging. De derde woonlaag is nog helemaal open. Een waanzinnige ruimte en netjes afgewerkt. Naar eigen inzicht zijn hier meerdere kamers te realiseren. Alle aansluitingen zijn aanwezig voor een aanleg van een badkamer en een keuken/ pantry. De wasruimte met wasmachine en droger is hier ook.
Indeling: Begane grond: Via een eigen entree op de begane grond betreed je de woning. De hal geeft toegang tot een interne trapopgang die je naar de woonverdiepingen leidt. Eerste verdieping: Hier bevindt zich de riante leefruimte met aan de achterzijde een lichte woonkamer, voorzien van openslaande deuren naar het ruime balkon. Aan de voorzijde met het Franse balkon op het zuiden, ligt de eetkamer met open keuken, uitgerust met diverse inbouwapparatuur en centraal kookeiland. Op deze verdieping is tevens een separaat toilet met fonteintje en een ruime garderobekast aanwezig.
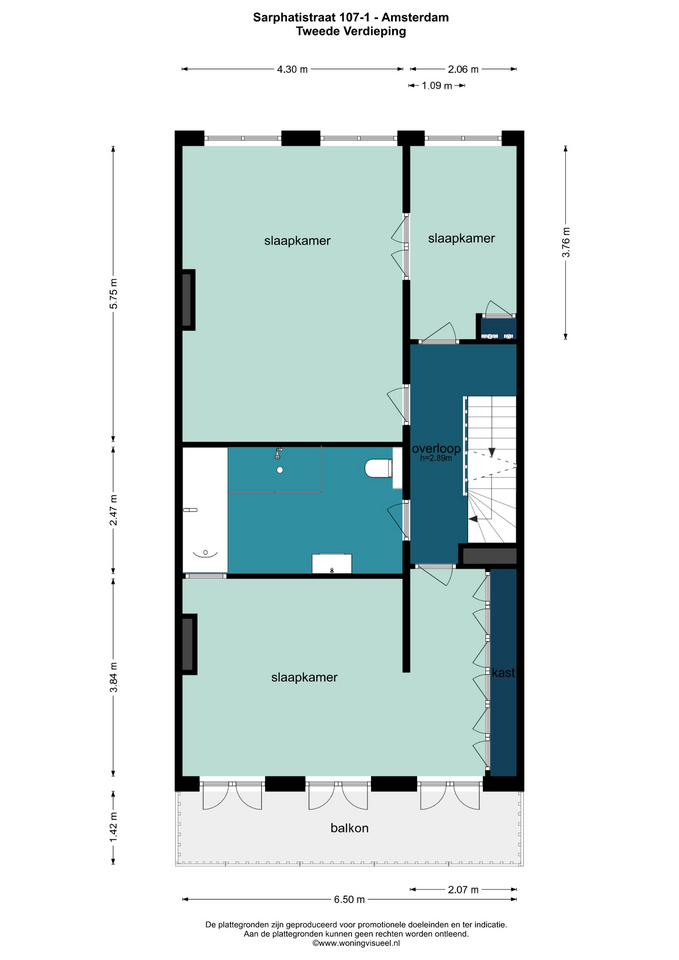
Tweede verdieping: Deze verdieping telt drie slaapkamers, allen goed van formaat. De eerste slaapkamer met over de hele breedte inbouwkasten ligt aan de achterzijde en heeft toegang tot een derde balkon. De badkamer is centraal gesitueerd en beschikt over een toilet, een ligbad, aparte douche, een wastafel en voldoende ruimte. Aan de voorkant is een ruime slaapkamer met twee grote ramen. Daarnaast is een kleinere slaapkamer, die ook geschikt is als werkkamer.
Derde verdieping: Op de bovenste verdieping vind je de loft. Dit is een multifunctionele ruimte (ideaal als thuiswerkplek, yogazolder of om meer slaapkamers te creëren), met toegang tot het vierde balkon. Dankzij de grote openslaande deuren aan de achterzijde en de dakramen, de balken en de hoogte is dit een heerlijk lichte ruimte.
De ligging: De woning is gelegen aan de prachtige Sarphatistraat, tussen de Weesperstraat en de Roeterstraat. Deze locatie in de Weesper/Plantagebuurt combineert rust, ruimte en reuring. Je woont hier vlak bij Artis, Carré, de Amstel, en het Oosterpark. In de directe omgeving zijn tal van leuke cafés, restaurants en winkels te vinden, zoals Café-restaurant de Plantage, bioscoop Kriterion, café Eik en Linde en de winkels in de Utrechtsestraat. Voor ontspanning wandel je zo het Oosterpark of het Wertheimpark in. Uitstekende bereikbaarheid: Zowel met de auto als met het openbaar vervoer is deze woning uitstekend bereikbaar. De tramhalte en het metrostation Weesperplein liggen voor de deur. Hier kun je met tramlijn 1, 7 en 19 naar zowel Oost als West en Centraal station is binnen 3 minuten te bereiken met metrolijn 50, 51 en 53. Via de Wibautstraat ben je snel op de A10 of andere uitvalswegen. Parkeren kan middels een vergunningstelsel.
Uitstekende bereikbaarheid:
Zowel met de auto als met het openbaar vervoer is deze woning uitstekend bereikbaar. Tramhaltes en metrostation Weesperplein liggen om de hoek, en station Amsterdam Amstel is op korte fietsafstand. Via de Wibautstraat ben je snel op de A10 of andere uitvalswegen. Parkeren kan middels een vergunningstelsel.
Bijzonderheden:
- Woonoppervlakte ca. 225m2 (conform NEN 2580)
- Verdeeld over drie woonlagen
- Drie ruime slaapkamers + multifunctionele zolderverdieping
- Badkamer en twee toiletten, waarvan één separaat
- Eigen entree vanaf de begane grond
- Energielabel A
- Kleine VvE bestaande uit 2 leden en goed onderling contact. Afspraken worden in samenspraak gemaakt en de kosten worden gedeeld.
- Dakbedekking vernieuwd in 2025
- Fundering in 2010 (voor het laatst) gecheckt. Geen aanleiding tot nader onderzoek.
- Gelegen op eigen grond
- Oplevering in overleg
De op deze website getoonde vrijblijvende informatie is door ons (met zorg) samengesteld op basis van gegevens van de verkoper (en/of derden). Wij staan niet in voor de juistheid of volledigheid daarvan. Wij adviseren je om contact met ons op te nemen bij interesse in een van onze woningen of je door een eigen deskundige te laten bijstaan.
Wij zijn niet verantwoordelijk voor de inhoud van de websites waarnaar wordt verwezen.
Indeling: Begane grond: Via een eigen entree op de begane grond betreed je de woning. De hal geeft toegang tot een interne trapopgang die je naar de woonverdiepingen leidt. Eerste verdieping: Hier bevindt zich de riante leefruimte met aan de achterzijde een lichte woonkamer, voorzien van openslaande deuren naar het ruime balkon. Aan de voorzijde met het Franse balkon op het zuiden, ligt de eetkamer met open keuken, uitgerust met diverse inbouwapparatuur en centraal kookeiland. Op deze verdieping is tevens een separaat toilet met fonteintje en een ruime garderobekast aanwezig.
Tweede verdieping: Deze verdieping telt drie slaapkamers, allen goed van formaat. De eerste slaapkamer met over de hele breedte inbouwkasten ligt aan de achterzijde en heeft toegang tot een derde balkon. De badkamer is centraal gesitueerd en beschikt over een toilet, een ligbad, aparte douche, een wastafel en voldoende ruimte. Aan de voorkant is een ruime slaapkamer met twee grote ramen. Daarnaast is een kleinere slaapkamer, die ook geschikt is als werkkamer.
Derde verdieping: Op de bovenste verdieping vind je de loft. Dit is een multifunctionele ruimte (ideaal als thuiswerkplek, yogazolder of om meer slaapkamers te creëren), met toegang tot het vierde balkon. Dankzij de grote openslaande deuren aan de achterzijde en de dakramen, de balken en de hoogte is dit een heerlijk lichte ruimte.
De ligging: De woning is gelegen aan de prachtige Sarphatistraat, tussen de Weesperstraat en de Roeterstraat. Deze locatie in de Weesper/Plantagebuurt combineert rust, ruimte en reuring. Je woont hier vlak bij Artis, Carré, de Amstel, en het Oosterpark. In de directe omgeving zijn tal van leuke cafés, restaurants en winkels te vinden, zoals Café-restaurant de Plantage, bioscoop Kriterion, café Eik en Linde en de winkels in de Utrechtsestraat. Voor ontspanning wandel je zo het Oosterpark of het Wertheimpark in. Uitstekende bereikbaarheid: Zowel met de auto als met het openbaar vervoer is deze woning uitstekend bereikbaar. De tramhalte en het metrostation Weesperplein liggen voor de deur. Hier kun je met tramlijn 1, 7 en 19 naar zowel Oost als West en Centraal station is binnen 3 minuten te bereiken met metrolijn 50, 51 en 53. Via de Wibautstraat ben je snel op de A10 of andere uitvalswegen. Parkeren kan middels een vergunningstelsel.
Uitstekende bereikbaarheid:
Zowel met de auto als met het openbaar vervoer is deze woning uitstekend bereikbaar. Tramhaltes en metrostation Weesperplein liggen om de hoek, en station Amsterdam Amstel is op korte fietsafstand. Via de Wibautstraat ben je snel op de A10 of andere uitvalswegen. Parkeren kan middels een vergunningstelsel.
Bijzonderheden:
- Woonoppervlakte ca. 225m2 (conform NEN 2580)
- Verdeeld over drie woonlagen
- Drie ruime slaapkamers + multifunctionele zolderverdieping
- Badkamer en twee toiletten, waarvan één separaat
- Eigen entree vanaf de begane grond
- Energielabel A
- Kleine VvE bestaande uit 2 leden en goed onderling contact. Afspraken worden in samenspraak gemaakt en de kosten worden gedeeld.
- Dakbedekking vernieuwd in 2025
- Fundering in 2010 (voor het laatst) gecheckt. Geen aanleiding tot nader onderzoek.
- Gelegen op eigen grond
- Oplevering in overleg
De op deze website getoonde vrijblijvende informatie is door ons (met zorg) samengesteld op basis van gegevens van de verkoper (en/of derden). Wij staan niet in voor de juistheid of volledigheid daarvan. Wij adviseren je om contact met ons op te nemen bij interesse in een van onze woningen of je door een eigen deskundige te laten bijstaan.
Wij zijn niet verantwoordelijk voor de inhoud van de websites waarnaar wordt verwezen.
Beschrijving
Op een toplocatie aan de Sarphatistraat in hartje Amsterdam Centrum-Oost, in de gewilde Plantagebuurt, bevindt zich dit charmante, ruime en karakteristieke DRIEDUBBEL BOVENHUIS van ca. 225m2. De woning combineert historische charme met modern wooncomfort, is gelegen in een prachtig pand met een fraaie gevel en is o.a. recent voorzien van nieuwe dakbedekking(2025). Mede dankzij het volledig opnieuw geïsoleerde dak, is het energielabel voor deze woning een A! Dankzij de hoge plafonds, met sierlijke ornamenten, en grote raampartijen profiteer je van een aangename lichtinval en een ruimtelijk gevoel. De eerste verdieping heeft twee werkende open haarden die het huis extra karakter geven. Met alle stedelijke voorzieningen binnen handbereik, naast de UvA, Artis én het Oosterpark om de hoek is dit een ideale plek voor wie op zoek is naar comfort, karakter en een centrale ligging. De derde woonlaag is nog helemaal open. Een waanzinnige ruimte en netjes afgewerkt. Naar eigen inzicht zijn hier meerdere kamers te realiseren. Alle aansluitingen zijn aanwezig voor een aanleg van een badkamer en een keuken/ pantry. De wasruimte met wasmachine en droger is hier ook.
Indeling: Begane grond: Via een eigen entree op de begane grond betreed je de woning. De hal geeft toegang tot een interne trapopgang die je naar de woonverdiepingen leidt. Eerste verdieping: Hier bevindt zich de riante leefruimte met aan de achterzijde een lichte woonkamer, voorzien van openslaande deuren naar het ruime balkon. Aan de voorzijde met het Franse balkon op het zuiden, ligt de eetkamer met open keuken, uitgerust met diverse inbouwapparatuur en centraal kookeiland. Op deze verdieping is tevens een separaat toilet met fonteintje en een ruime garderobekast aanwezig.
Tweede verdieping: Deze verdieping telt drie slaapkamers, allen goed van formaat. De eerste slaapkamer met over de hele breedte inbouwkasten ligt aan de achterzijde en heeft toegang tot een derde balkon. De badkamer is centraal gesitueerd en beschikt over een toilet, een ligbad, aparte douche, een wastafel en voldoende ruimte. Aan de voorkant is een ruime slaapkamer met twee grote ramen. Daarnaast is een kleinere slaapkamer, die ook geschikt is als werkkamer.
Derde verdieping: Op de bovenste verdieping vind je de loft. Dit is een multifunctionele ruimte (ideaal als thuiswerkplek, yogazolder of om meer slaapkamers te creëren), met toegang tot het vierde balkon. Dankzij de grote openslaande deuren aan de achterzijde en de dakramen, de balken en de hoogte is dit een heerlijk lichte ruimte.
De ligging: De woning is gelegen aan de prachtige Sarphatistraat, tussen de Weesperstraat en de Roeterstraat. Deze locatie in de Weesper/Plantagebuurt combineert rust, ruimte en reuring. Je woont hier vlak bij Artis, Carré, de Amstel, en het Oosterpark. In de directe omgeving zijn tal van leuke cafés, restaurants en winkels te vinden, zoals Café-restaurant de Plantage, bioscoop Kriterion, café Eik en Linde en de winkels in de Utrechtsestraat. Voor ontspanning wandel je zo het Oosterpark of het Wertheimpark in. Uitstekende bereikbaarheid: Zowel met de auto als met het openbaar vervoer is deze woning uitstekend bereikbaar. De tramhalte en het metrostation Weesperplein liggen voor de deur. Hier kun je met tramlijn 1, 7 en 19 naar zowel Oost als West en Centraal station is binnen 3 minuten te bereiken met metrolijn 50, 51 en 53. Via de Wibautstraat ben je snel op de A10 of andere uitvalswegen. Parkeren kan middels een vergunningstelsel.
Uitstekende bereikbaarheid:
Zowel met de auto als met het openbaar vervoer is deze woning uitstekend bereikbaar. Tramhaltes en metrostation Weesperplein liggen om de hoek, en station Amsterdam Amstel is op korte fietsafstand. Via de Wibautstraat ben je snel op de A10 of andere uitvalswegen. Parkeren kan middels een vergunningstelsel.
Bijzonderheden:
- Woonoppervlakte ca. 225m2 (conform NEN 2580)
- Verdeeld over drie woonlagen
- Drie ruime slaapkamers + multifunctionele zolderverdieping
- Badkamer en twee toiletten, waarvan één separaat
- Eigen entree vanaf de begane grond
- Energielabel A
- Kleine VvE bestaande uit 2 leden en goed onderling contact. Afspraken worden in samenspraak gemaakt en de kosten worden gedeeld.
- Dakbedekking vernieuwd in 2025
- Fundering in 2010 (voor het laatst) gecheckt. Geen aanleiding tot nader onderzoek.
- Gelegen op eigen grond
- Oplevering in overleg
De op deze website getoonde vrijblijvende informatie is door ons (met zorg) samengesteld op basis van gegevens van de verkoper (en/of derden). Wij staan niet in voor de juistheid of volledigheid daarvan. Wij adviseren je om contact met ons op te nemen bij interesse in een van onze woningen of je door een eigen deskundige te laten bijstaan.
Wij zijn niet verantwoordelijk voor de inhoud van de websites waarnaar wordt verwezen.
Indeling: Begane grond: Via een eigen entree op de begane grond betreed je de woning. De hal geeft toegang tot een interne trapopgang die je naar de woonverdiepingen leidt. Eerste verdieping: Hier bevindt zich de riante leefruimte met aan de achterzijde een lichte woonkamer, voorzien van openslaande deuren naar het ruime balkon. Aan de voorzijde met het Franse balkon op het zuiden, ligt de eetkamer met open keuken, uitgerust met diverse inbouwapparatuur en centraal kookeiland. Op deze verdieping is tevens een separaat toilet met fonteintje en een ruime garderobekast aanwezig.
Tweede verdieping: Deze verdieping telt drie slaapkamers, allen goed van formaat. De eerste slaapkamer met over de hele breedte inbouwkasten ligt aan de achterzijde en heeft toegang tot een derde balkon. De badkamer is centraal gesitueerd en beschikt over een toilet, een ligbad, aparte douche, een wastafel en voldoende ruimte. Aan de voorkant is een ruime slaapkamer met twee grote ramen. Daarnaast is een kleinere slaapkamer, die ook geschikt is als werkkamer.
Derde verdieping: Op de bovenste verdieping vind je de loft. Dit is een multifunctionele ruimte (ideaal als thuiswerkplek, yogazolder of om meer slaapkamers te creëren), met toegang tot het vierde balkon. Dankzij de grote openslaande deuren aan de achterzijde en de dakramen, de balken en de hoogte is dit een heerlijk lichte ruimte.
De ligging: De woning is gelegen aan de prachtige Sarphatistraat, tussen de Weesperstraat en de Roeterstraat. Deze locatie in de Weesper/Plantagebuurt combineert rust, ruimte en reuring. Je woont hier vlak bij Artis, Carré, de Amstel, en het Oosterpark. In de directe omgeving zijn tal van leuke cafés, restaurants en winkels te vinden, zoals Café-restaurant de Plantage, bioscoop Kriterion, café Eik en Linde en de winkels in de Utrechtsestraat. Voor ontspanning wandel je zo het Oosterpark of het Wertheimpark in. Uitstekende bereikbaarheid: Zowel met de auto als met het openbaar vervoer is deze woning uitstekend bereikbaar. De tramhalte en het metrostation Weesperplein liggen voor de deur. Hier kun je met tramlijn 1, 7 en 19 naar zowel Oost als West en Centraal station is binnen 3 minuten te bereiken met metrolijn 50, 51 en 53. Via de Wibautstraat ben je snel op de A10 of andere uitvalswegen. Parkeren kan middels een vergunningstelsel.
Uitstekende bereikbaarheid:
Zowel met de auto als met het openbaar vervoer is deze woning uitstekend bereikbaar. Tramhaltes en metrostation Weesperplein liggen om de hoek, en station Amsterdam Amstel is op korte fietsafstand. Via de Wibautstraat ben je snel op de A10 of andere uitvalswegen. Parkeren kan middels een vergunningstelsel.
Bijzonderheden:
- Woonoppervlakte ca. 225m2 (conform NEN 2580)
- Verdeeld over drie woonlagen
- Drie ruime slaapkamers + multifunctionele zolderverdieping
- Badkamer en twee toiletten, waarvan één separaat
- Eigen entree vanaf de begane grond
- Energielabel A
- Kleine VvE bestaande uit 2 leden en goed onderling contact. Afspraken worden in samenspraak gemaakt en de kosten worden gedeeld.
- Dakbedekking vernieuwd in 2025
- Fundering in 2010 (voor het laatst) gecheckt. Geen aanleiding tot nader onderzoek.
- Gelegen op eigen grond
- Oplevering in overleg
De op deze website getoonde vrijblijvende informatie is door ons (met zorg) samengesteld op basis van gegevens van de verkoper (en/of derden). Wij staan niet in voor de juistheid of volledigheid daarvan. Wij adviseren je om contact met ons op te nemen bij interesse in een van onze woningen of je door een eigen deskundige te laten bijstaan.
Wij zijn niet verantwoordelijk voor de inhoud van de websites waarnaar wordt verwezen.
powered by Friva | Lees ons Privacybeleid































































