WORMERVEER
€ 460.000
Krommenieërpad 21
4 Kamers
1 Badkamers
3 Slaapkamers
141 m²
A
ZONNETERRAS
Bezichtiging aanvragen
Beschrijving
Ze zijn zeldzaam, zeker in het centrum van Wormerveer. Aan het Krommenieërpad staat deze ruime maisonnette van ca. 141 m² met drie slaapkamers en een terras van maar liefst 43 m². De situering op de begane grond en eerste verdieping is fraai, want vanuit de centrale hal is het maar een paar stappen naar de voordeur van de maisonnette. Je hebt de beschikking over een vaste parkeerplaats in de parkeergarage en over een ruime (fietsen)berging van ca. 10.3 m². Hier combineer je de ruimte van een woonhuis, met het gemak van het wonen in een appartementengebouw en heb je de beschikking over een grote buitenruimte.
Je woont in het centrum van Wormerveer, op een paar stappen van de Zaan en het Marktplein. Winkels, supermarkten, speciaalzaken en restaurantjes bevinden zich in de directe omgeving. Iedere week is er markt op het Marktplein en het treinstation is met een kleine 10 minuten wandelen en nog geen 5 minuten fietsen te bereiken.
Indeling:
Begane grond:
Via de centrale entree, met het bellentableau en de intercom aan de buitenzijde, loop je naar de voordeur van deze maisonnette. Je hoeft geen gebruik te maken van de lift of de gezamenlijke trap, want de voordeur is op de begane grond.
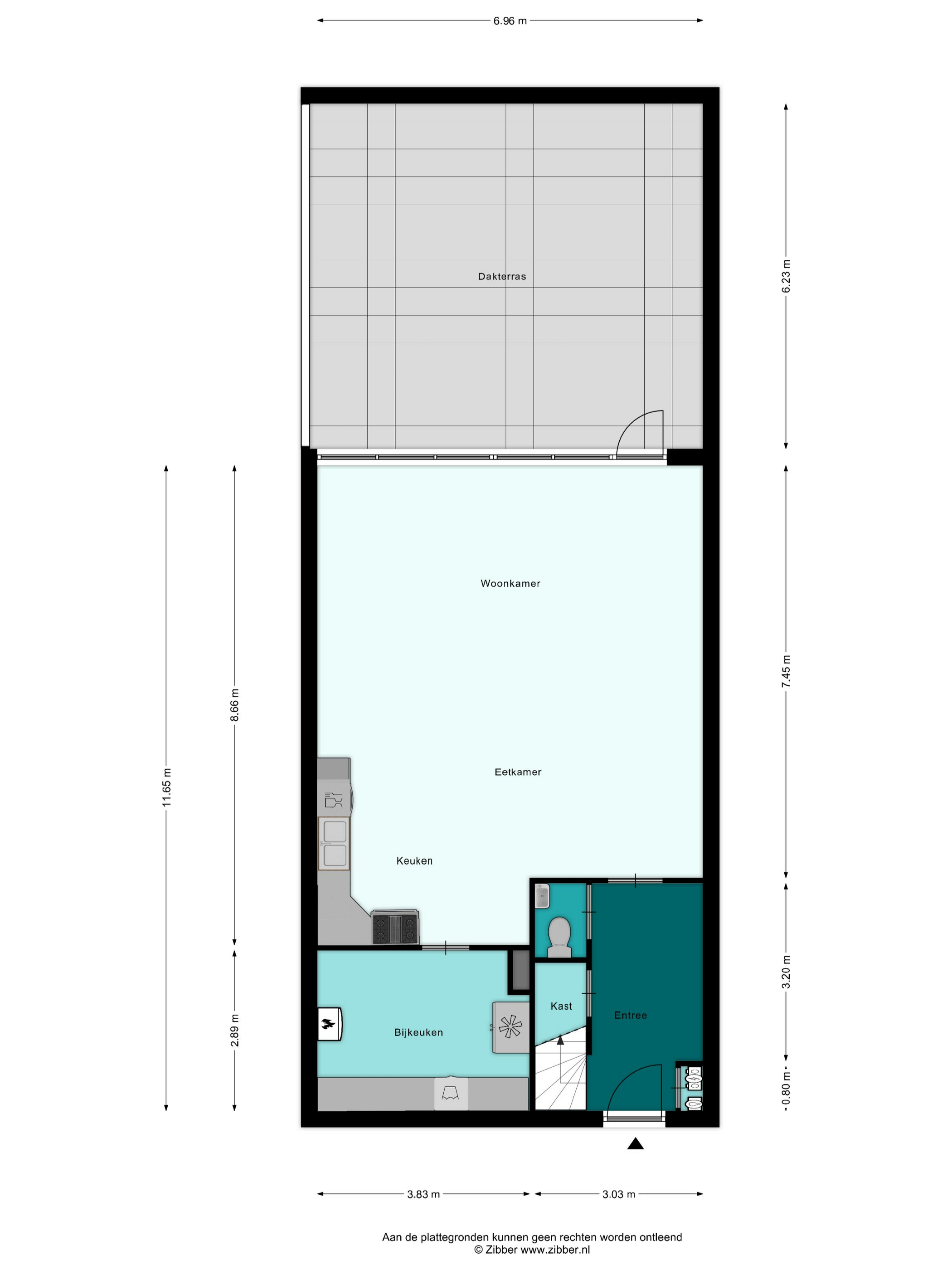
De hal is een zeer grote ruimte met de meterkast, een bergkast en de trap naar de eerste verdieping. De laminaatvloer ligt niet alleen in de hal, maar ook in de woonkamer en keuken. Links in de hal is de nette toiletruimte met fonteintje, uitgevoerd in lichte kleuren.
Aan de achterzijde, op het zuiden, is de zeer ruime woonkamer met open keuken. Met een breedte van bijna 7 meter en een oppervlakte van ca. 55 m² is er meer dan genoeg ruimte voor een grote zithoek, tv-meubel en een lange eettafel. In het keukengedeelte staat een lichte hoekopstelling, voorzien van een groot gasfornuis met oven, een afzuigkap en een vaatwasser. In de naastgelegen bijkeuken is onder andere ruimte voor een koel-/vriescombinatie, de wasmachine en eventueel een droger. In de kasten onder het werkblad kun je veel spullen opbergen.
Eerste verdieping:
Volg de trap vanuit de hal naar de overloop, waaraan twee ruime slaapkamers en één wat kleinere slaapkamer grenzen. De twee grootste slaapkamers, waarvan een met een inbouwkast, bevinden zich aan de achterzijde. Aan de voorzijde, rechts van de trap, is de derde slaapkamer. In alle kamers en op de overloop ligt laminaat.
De moderne badkamer is ingedeeld met een ligbad, inloopdouche, dubbel wastafelmeubel en een grote spiegel met verlichting. Grote, grijze vloertegels zijn gecombineerd met witte wandtegels en halfronde wandtegels in verschillende grijstinten. Erg handig; op deze verdieping is een aparte toiletruimte met fonteintje.
Terras:
Vanuit de woonkamer is het meer dan 40 m² grote terras te bereiken, met genoeg ruimte voor een loungeset en een tafel met stoelen. Zet je deze beiden neer, dan is er nog genoeg plek voor potten met planten om het terras te vergroenen.
Parkeren:
Bij deze zeer ruime maisonnette hoort een vaste parkeerplaats in de parkeergarage.
Omgeving:
Wormerveer heeft een uitstekende ligging in de Zaanstreek, met prachtige natuur in de nabijheid. Zaandam, Amsterdam, Purmerend, de regio IJmond en Alkmaar zijn met de auto en openbaar vervoer goed bereikbaar. Zo is het nog geen 15 kilometer naar de Ring A10 en na 18 kilometer rij je op de Ring Alkmaar.
Bijzonderheden:
- Zeer ruime maisonnette van 141 m², exclusief externe berging en terras
- Drie ruime slaapkamers
- Moderne badkamer en twee toiletruimtes
- Terras van ca. 43 m²
- Een vaste parkeerplaats in de parkeergarage is mogelijk, kosten € 44,57,- per maand
- Eigen (fietsenberging) van groot formaat
- Mooie ligging in het centrum van Wormerveer
- VvE bijdrage € 326,43,- per maand
- Energielabel A
De op deze website getoonde vrijblijvende informatie is door ons (met zorg) samengesteld op basis van gegevens van de verkoper (en/of derden). Wij staan niet in voor de juistheid of volledigheid daarvan. Wij adviseren je om contact met ons op te nemen bij interesse in een van onze woningen of je door een eigen NVM-makelaar te laten bijstaan.
Wij zijn niet verantwoordelijk voor de inhoud van de websites waarnaar verwezen wordt.
Je woont in het centrum van Wormerveer, op een paar stappen van de Zaan en het Marktplein. Winkels, supermarkten, speciaalzaken en restaurantjes bevinden zich in de directe omgeving. Iedere week is er markt op het Marktplein en het treinstation is met een kleine 10 minuten wandelen en nog geen 5 minuten fietsen te bereiken.
Indeling:
Begane grond:
Via de centrale entree, met het bellentableau en de intercom aan de buitenzijde, loop je naar de voordeur van deze maisonnette. Je hoeft geen gebruik te maken van de lift of de gezamenlijke trap, want de voordeur is op de begane grond.
De hal is een zeer grote ruimte met de meterkast, een bergkast en de trap naar de eerste verdieping. De laminaatvloer ligt niet alleen in de hal, maar ook in de woonkamer en keuken. Links in de hal is de nette toiletruimte met fonteintje, uitgevoerd in lichte kleuren.
Aan de achterzijde, op het zuiden, is de zeer ruime woonkamer met open keuken. Met een breedte van bijna 7 meter en een oppervlakte van ca. 55 m² is er meer dan genoeg ruimte voor een grote zithoek, tv-meubel en een lange eettafel. In het keukengedeelte staat een lichte hoekopstelling, voorzien van een groot gasfornuis met oven, een afzuigkap en een vaatwasser. In de naastgelegen bijkeuken is onder andere ruimte voor een koel-/vriescombinatie, de wasmachine en eventueel een droger. In de kasten onder het werkblad kun je veel spullen opbergen.
Eerste verdieping:
Volg de trap vanuit de hal naar de overloop, waaraan twee ruime slaapkamers en één wat kleinere slaapkamer grenzen. De twee grootste slaapkamers, waarvan een met een inbouwkast, bevinden zich aan de achterzijde. Aan de voorzijde, rechts van de trap, is de derde slaapkamer. In alle kamers en op de overloop ligt laminaat.
De moderne badkamer is ingedeeld met een ligbad, inloopdouche, dubbel wastafelmeubel en een grote spiegel met verlichting. Grote, grijze vloertegels zijn gecombineerd met witte wandtegels en halfronde wandtegels in verschillende grijstinten. Erg handig; op deze verdieping is een aparte toiletruimte met fonteintje.
Terras:
Vanuit de woonkamer is het meer dan 40 m² grote terras te bereiken, met genoeg ruimte voor een loungeset en een tafel met stoelen. Zet je deze beiden neer, dan is er nog genoeg plek voor potten met planten om het terras te vergroenen.
Parkeren:
Bij deze zeer ruime maisonnette hoort een vaste parkeerplaats in de parkeergarage.
Omgeving:
Wormerveer heeft een uitstekende ligging in de Zaanstreek, met prachtige natuur in de nabijheid. Zaandam, Amsterdam, Purmerend, de regio IJmond en Alkmaar zijn met de auto en openbaar vervoer goed bereikbaar. Zo is het nog geen 15 kilometer naar de Ring A10 en na 18 kilometer rij je op de Ring Alkmaar.
Bijzonderheden:
- Zeer ruime maisonnette van 141 m², exclusief externe berging en terras
- Drie ruime slaapkamers
- Moderne badkamer en twee toiletruimtes
- Terras van ca. 43 m²
- Een vaste parkeerplaats in de parkeergarage is mogelijk, kosten € 44,57,- per maand
- Eigen (fietsenberging) van groot formaat
- Mooie ligging in het centrum van Wormerveer
- VvE bijdrage € 326,43,- per maand
- Energielabel A
De op deze website getoonde vrijblijvende informatie is door ons (met zorg) samengesteld op basis van gegevens van de verkoper (en/of derden). Wij staan niet in voor de juistheid of volledigheid daarvan. Wij adviseren je om contact met ons op te nemen bij interesse in een van onze woningen of je door een eigen NVM-makelaar te laten bijstaan.
Wij zijn niet verantwoordelijk voor de inhoud van de websites waarnaar verwezen wordt.
Beschrijving
Ze zijn zeldzaam, zeker in het centrum van Wormerveer. Aan het Krommenieërpad staat deze ruime maisonnette van ca. 141 m² met drie slaapkamers en een terras van maar liefst 43 m². De situering op de begane grond en eerste verdieping is fraai, want vanuit de centrale hal is het maar een paar stappen naar de voordeur van de maisonnette. Je hebt de beschikking over een vaste parkeerplaats in de parkeergarage en over een ruime (fietsen)berging van ca. 10.3 m². Hier combineer je de ruimte van een woonhuis, met het gemak van het wonen in een appartementengebouw en heb je de beschikking over een grote buitenruimte.
Je woont in het centrum van Wormerveer, op een paar stappen van de Zaan en het Marktplein. Winkels, supermarkten, speciaalzaken en restaurantjes bevinden zich in de directe omgeving. Iedere week is er markt op het Marktplein en het treinstation is met een kleine 10 minuten wandelen en nog geen 5 minuten fietsen te bereiken.
Indeling:
Begane grond:
Via de centrale entree, met het bellentableau en de intercom aan de buitenzijde, loop je naar de voordeur van deze maisonnette. Je hoeft geen gebruik te maken van de lift of de gezamenlijke trap, want de voordeur is op de begane grond.
De hal is een zeer grote ruimte met de meterkast, een bergkast en de trap naar de eerste verdieping. De laminaatvloer ligt niet alleen in de hal, maar ook in de woonkamer en keuken. Links in de hal is de nette toiletruimte met fonteintje, uitgevoerd in lichte kleuren.
Aan de achterzijde, op het zuiden, is de zeer ruime woonkamer met open keuken. Met een breedte van bijna 7 meter en een oppervlakte van ca. 55 m² is er meer dan genoeg ruimte voor een grote zithoek, tv-meubel en een lange eettafel. In het keukengedeelte staat een lichte hoekopstelling, voorzien van een groot gasfornuis met oven, een afzuigkap en een vaatwasser. In de naastgelegen bijkeuken is onder andere ruimte voor een koel-/vriescombinatie, de wasmachine en eventueel een droger. In de kasten onder het werkblad kun je veel spullen opbergen.
Eerste verdieping:
Volg de trap vanuit de hal naar de overloop, waaraan twee ruime slaapkamers en één wat kleinere slaapkamer grenzen. De twee grootste slaapkamers, waarvan een met een inbouwkast, bevinden zich aan de achterzijde. Aan de voorzijde, rechts van de trap, is de derde slaapkamer. In alle kamers en op de overloop ligt laminaat.
De moderne badkamer is ingedeeld met een ligbad, inloopdouche, dubbel wastafelmeubel en een grote spiegel met verlichting. Grote, grijze vloertegels zijn gecombineerd met witte wandtegels en halfronde wandtegels in verschillende grijstinten. Erg handig; op deze verdieping is een aparte toiletruimte met fonteintje.
Terras:
Vanuit de woonkamer is het meer dan 40 m² grote terras te bereiken, met genoeg ruimte voor een loungeset en een tafel met stoelen. Zet je deze beiden neer, dan is er nog genoeg plek voor potten met planten om het terras te vergroenen.
Parkeren:
Bij deze zeer ruime maisonnette hoort een vaste parkeerplaats in de parkeergarage.
Omgeving:
Wormerveer heeft een uitstekende ligging in de Zaanstreek, met prachtige natuur in de nabijheid. Zaandam, Amsterdam, Purmerend, de regio IJmond en Alkmaar zijn met de auto en openbaar vervoer goed bereikbaar. Zo is het nog geen 15 kilometer naar de Ring A10 en na 18 kilometer rij je op de Ring Alkmaar.
Bijzonderheden:
- Zeer ruime maisonnette van 141 m², exclusief externe berging en terras
- Drie ruime slaapkamers
- Moderne badkamer en twee toiletruimtes
- Terras van ca. 43 m²
- Een vaste parkeerplaats in de parkeergarage is mogelijk, kosten € 44,57,- per maand
- Eigen (fietsenberging) van groot formaat
- Mooie ligging in het centrum van Wormerveer
- VvE bijdrage € 326,43,- per maand
- Energielabel A
De op deze website getoonde vrijblijvende informatie is door ons (met zorg) samengesteld op basis van gegevens van de verkoper (en/of derden). Wij staan niet in voor de juistheid of volledigheid daarvan. Wij adviseren je om contact met ons op te nemen bij interesse in een van onze woningen of je door een eigen NVM-makelaar te laten bijstaan.
Wij zijn niet verantwoordelijk voor de inhoud van de websites waarnaar verwezen wordt.
Je woont in het centrum van Wormerveer, op een paar stappen van de Zaan en het Marktplein. Winkels, supermarkten, speciaalzaken en restaurantjes bevinden zich in de directe omgeving. Iedere week is er markt op het Marktplein en het treinstation is met een kleine 10 minuten wandelen en nog geen 5 minuten fietsen te bereiken.
Indeling:
Begane grond:
Via de centrale entree, met het bellentableau en de intercom aan de buitenzijde, loop je naar de voordeur van deze maisonnette. Je hoeft geen gebruik te maken van de lift of de gezamenlijke trap, want de voordeur is op de begane grond.
De hal is een zeer grote ruimte met de meterkast, een bergkast en de trap naar de eerste verdieping. De laminaatvloer ligt niet alleen in de hal, maar ook in de woonkamer en keuken. Links in de hal is de nette toiletruimte met fonteintje, uitgevoerd in lichte kleuren.
Aan de achterzijde, op het zuiden, is de zeer ruime woonkamer met open keuken. Met een breedte van bijna 7 meter en een oppervlakte van ca. 55 m² is er meer dan genoeg ruimte voor een grote zithoek, tv-meubel en een lange eettafel. In het keukengedeelte staat een lichte hoekopstelling, voorzien van een groot gasfornuis met oven, een afzuigkap en een vaatwasser. In de naastgelegen bijkeuken is onder andere ruimte voor een koel-/vriescombinatie, de wasmachine en eventueel een droger. In de kasten onder het werkblad kun je veel spullen opbergen.
Eerste verdieping:
Volg de trap vanuit de hal naar de overloop, waaraan twee ruime slaapkamers en één wat kleinere slaapkamer grenzen. De twee grootste slaapkamers, waarvan een met een inbouwkast, bevinden zich aan de achterzijde. Aan de voorzijde, rechts van de trap, is de derde slaapkamer. In alle kamers en op de overloop ligt laminaat.
De moderne badkamer is ingedeeld met een ligbad, inloopdouche, dubbel wastafelmeubel en een grote spiegel met verlichting. Grote, grijze vloertegels zijn gecombineerd met witte wandtegels en halfronde wandtegels in verschillende grijstinten. Erg handig; op deze verdieping is een aparte toiletruimte met fonteintje.
Terras:
Vanuit de woonkamer is het meer dan 40 m² grote terras te bereiken, met genoeg ruimte voor een loungeset en een tafel met stoelen. Zet je deze beiden neer, dan is er nog genoeg plek voor potten met planten om het terras te vergroenen.
Parkeren:
Bij deze zeer ruime maisonnette hoort een vaste parkeerplaats in de parkeergarage.
Omgeving:
Wormerveer heeft een uitstekende ligging in de Zaanstreek, met prachtige natuur in de nabijheid. Zaandam, Amsterdam, Purmerend, de regio IJmond en Alkmaar zijn met de auto en openbaar vervoer goed bereikbaar. Zo is het nog geen 15 kilometer naar de Ring A10 en na 18 kilometer rij je op de Ring Alkmaar.
Bijzonderheden:
- Zeer ruime maisonnette van 141 m², exclusief externe berging en terras
- Drie ruime slaapkamers
- Moderne badkamer en twee toiletruimtes
- Terras van ca. 43 m²
- Een vaste parkeerplaats in de parkeergarage is mogelijk, kosten € 44,57,- per maand
- Eigen (fietsenberging) van groot formaat
- Mooie ligging in het centrum van Wormerveer
- VvE bijdrage € 326,43,- per maand
- Energielabel A
De op deze website getoonde vrijblijvende informatie is door ons (met zorg) samengesteld op basis van gegevens van de verkoper (en/of derden). Wij staan niet in voor de juistheid of volledigheid daarvan. Wij adviseren je om contact met ons op te nemen bij interesse in een van onze woningen of je door een eigen NVM-makelaar te laten bijstaan.
Wij zijn niet verantwoordelijk voor de inhoud van de websites waarnaar verwezen wordt.
powered by Friva | Lees ons Privacybeleid









































