AMSTERDAM - Osdorp
€ 485.000
Jan van Zutphenstraat 521
3 Kamers
1 Badkamers
2 Slaapkamers
122 m²
A+
Onbekend
Bezichtiging aanvragen
Beschrijving
Ruimte, licht, water, natuur en een eigen overdekte parkeerplaats!
Dit ruime 3-kamer appartement van 122 m2 is gelegen op de tweede verdieping van het in 2007 opgeleverde en deels in de Slotervaart staande complex ‘’De Weerspiegeling’’, ontworpen door Wiel Arets en bekroond met de Amsterdamse Architectuur Prijs. Dit keurig onderhouden en zeer luxe complex voorzien van een dubbele liftinstallatie wordt beheerd door een actieve en financieel gezonde vereniging van eigenaren. Er is dagelijks een huismeester aanwezig.
Indeling:
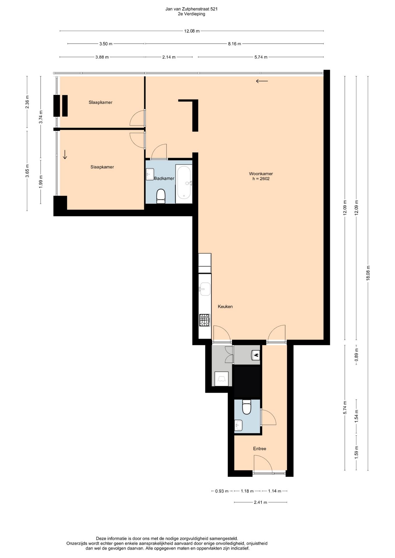
Je betreedt het complex via een afgesloten entree met video-intercomsysteem. In de centrale hal bevinden zich het trappenhuis en twee liften. De woning beschikt over een eigen entree met een royale hal, waar aan de linkerzijde het eerste toilet met fonteintje is gesitueerd.
De lichte en bijzonder ruime woonkamer is direct een indrukwekkende binnenkomer. Met een oppervlakte van circa 70 m² biedt deze kamer enorm veel ruimte. De open keuken vormt samen met de woonkamer een perfecte setting voor gezellige avonden. De nette laminaatvloer met vloerverwarming draagt bij aan het comfort. Vanuit de woonkamer heb je een prettig uitzicht op de omgeving.
De open keuken aan de linkerzijde van de woonkamer is modern vormgegeven en voorzien van diverse inbouwapparatuur, waaronder een 6-pits gaskookplaat, afzuigkap, combi-oven, vaatwasser en een koel-/vriescombinatie. Er is opvallend veel kastruimte aanwezig. Achter de keuken bevindt zich een praktische berging met de aansluiting voor de wasmachine.
Grenzend aan de woonkamer bevinden zich twee ruime slaapkamers, beide met grote raampartijen die voor veel daglicht zorgen. De badkamer is volledig betegeld en voorzien van een royaal ligbad, een tweede toilet en een wastafel.
Je hebt de beschikking over een eigen parkeerplaats in de parkeerkelder. De toegang tot de eigen parkeerplaats kan worden bediend met handzender. Verder heb je onder het complex ook de beschikking over een eigen riante berging en is op de begane grond een gezamenlijke fietsenberging aanwezig, zowel binnen- als buitenom bereikbaar.
Voor een verdere indruk van de indeling kun je de bijgesloten plattegronden bekijken.
Ligging:
De Slotervaart met ‘water’ park voorzien van diverse eilandjes en bruggen wordt ook wel het ‘groene deel’ van Nieuw-West genoemd, midden tussen waterpartijen, prachtige lanen, landerijen en authentieke dorpsgezichten. Met 15 minuten in het Vondelpark, het Amsterdamse bos, het centrum en diverse watersportfaciliteiten op een steenworp afstand. Winkels, zowel luxe als dagelijkse boodschappen, restaurants, theaters, scholen, openbaar vervoer, diverse uitvalswegen. Kortom alles wat je nodig hebt en het leven aangenaam maakt vind je in de directe omgeving.
Bouw:
Het complex is gebouwd in 2007. Het appartement is volledig geïsoleerd, beschikt over een mechanisch ventilatiesysteem en wordt verwarmd door middel van vloerverwarming door een in 2007 geplaatste CV ketel. De vloerverwarming is per vertrek instelbaar. Het appartement is grotendeels voorzien van Franse balkons en aan de buitenzijde zijn elektrische sunscreens (zonweringen) geïnstalleerd welke handmatig zijn te bedienen maar ze beschikken ook over wind- en regensensoren.
Eigendomssituatie:
De woning is gelegen op in erfpacht uitgegeven grond, welke formeel eigendom is van de gemeente Amsterdam. De vergoeding voor het gebruik van deze grond (erfpachtcanon) is € 2.177,12 per jaar. De aanvraag om over te stappen naar eeuwigdurende erfpacht is door de huidige eigenaren gedaan en kan worden over genomen.
Bijzonderheden:
- Bouwjaar 2007
- Energielabel A+
- Appartementsrecht
- Het appartement is goed geïsoleerd
- De VVE is actief en financieel gezond
- Gemeenschappelijke fietsenstalling
- Erfpachtcanon is thans € 1.065,13 per 6 maanden
- Aanvraag voor gunstige voorwaarde is gedaan en kan worden overgenomen
- Servicekosten bedragen ca. € 257,47 per maand (inclusief de opstalverzekering, parkeerplaats en reserveringen voor het onderhoud)
- Alle ramen zijn voorzien van elektrische buitenzonwering
- Eigen parkeerplaats en berging in de onderbouw
- Bekroond met de Amsterdamse Architectuur Prijs
- Oplevering in overleg
De op deze website getoonde vrijblijvende informatie is door ons (met zorg) samengesteld op basis van gegevens van de verkoper (en/of derden). Wij staan niet in voor de juistheid of volledigheid daarvan. Wij adviseren je om contact met ons op te nemen bij interesse in een van onze woningen of je door een eigen NVM makelaar te laten bijstaan.
Wij zijn niet verantwoordelijk voor de inhoud van de websites waarnaar verwezen wordt.
Dit ruime 3-kamer appartement van 122 m2 is gelegen op de tweede verdieping van het in 2007 opgeleverde en deels in de Slotervaart staande complex ‘’De Weerspiegeling’’, ontworpen door Wiel Arets en bekroond met de Amsterdamse Architectuur Prijs. Dit keurig onderhouden en zeer luxe complex voorzien van een dubbele liftinstallatie wordt beheerd door een actieve en financieel gezonde vereniging van eigenaren. Er is dagelijks een huismeester aanwezig.
Indeling:
Je betreedt het complex via een afgesloten entree met video-intercomsysteem. In de centrale hal bevinden zich het trappenhuis en twee liften. De woning beschikt over een eigen entree met een royale hal, waar aan de linkerzijde het eerste toilet met fonteintje is gesitueerd.
De lichte en bijzonder ruime woonkamer is direct een indrukwekkende binnenkomer. Met een oppervlakte van circa 70 m² biedt deze kamer enorm veel ruimte. De open keuken vormt samen met de woonkamer een perfecte setting voor gezellige avonden. De nette laminaatvloer met vloerverwarming draagt bij aan het comfort. Vanuit de woonkamer heb je een prettig uitzicht op de omgeving.
De open keuken aan de linkerzijde van de woonkamer is modern vormgegeven en voorzien van diverse inbouwapparatuur, waaronder een 6-pits gaskookplaat, afzuigkap, combi-oven, vaatwasser en een koel-/vriescombinatie. Er is opvallend veel kastruimte aanwezig. Achter de keuken bevindt zich een praktische berging met de aansluiting voor de wasmachine.
Grenzend aan de woonkamer bevinden zich twee ruime slaapkamers, beide met grote raampartijen die voor veel daglicht zorgen. De badkamer is volledig betegeld en voorzien van een royaal ligbad, een tweede toilet en een wastafel.
Je hebt de beschikking over een eigen parkeerplaats in de parkeerkelder. De toegang tot de eigen parkeerplaats kan worden bediend met handzender. Verder heb je onder het complex ook de beschikking over een eigen riante berging en is op de begane grond een gezamenlijke fietsenberging aanwezig, zowel binnen- als buitenom bereikbaar.
Voor een verdere indruk van de indeling kun je de bijgesloten plattegronden bekijken.
Ligging:
De Slotervaart met ‘water’ park voorzien van diverse eilandjes en bruggen wordt ook wel het ‘groene deel’ van Nieuw-West genoemd, midden tussen waterpartijen, prachtige lanen, landerijen en authentieke dorpsgezichten. Met 15 minuten in het Vondelpark, het Amsterdamse bos, het centrum en diverse watersportfaciliteiten op een steenworp afstand. Winkels, zowel luxe als dagelijkse boodschappen, restaurants, theaters, scholen, openbaar vervoer, diverse uitvalswegen. Kortom alles wat je nodig hebt en het leven aangenaam maakt vind je in de directe omgeving.
Bouw:
Het complex is gebouwd in 2007. Het appartement is volledig geïsoleerd, beschikt over een mechanisch ventilatiesysteem en wordt verwarmd door middel van vloerverwarming door een in 2007 geplaatste CV ketel. De vloerverwarming is per vertrek instelbaar. Het appartement is grotendeels voorzien van Franse balkons en aan de buitenzijde zijn elektrische sunscreens (zonweringen) geïnstalleerd welke handmatig zijn te bedienen maar ze beschikken ook over wind- en regensensoren.
Eigendomssituatie:
De woning is gelegen op in erfpacht uitgegeven grond, welke formeel eigendom is van de gemeente Amsterdam. De vergoeding voor het gebruik van deze grond (erfpachtcanon) is € 2.177,12 per jaar. De aanvraag om over te stappen naar eeuwigdurende erfpacht is door de huidige eigenaren gedaan en kan worden over genomen.
Bijzonderheden:
- Bouwjaar 2007
- Energielabel A+
- Appartementsrecht
- Het appartement is goed geïsoleerd
- De VVE is actief en financieel gezond
- Gemeenschappelijke fietsenstalling
- Erfpachtcanon is thans € 1.065,13 per 6 maanden
- Aanvraag voor gunstige voorwaarde is gedaan en kan worden overgenomen
- Servicekosten bedragen ca. € 257,47 per maand (inclusief de opstalverzekering, parkeerplaats en reserveringen voor het onderhoud)
- Alle ramen zijn voorzien van elektrische buitenzonwering
- Eigen parkeerplaats en berging in de onderbouw
- Bekroond met de Amsterdamse Architectuur Prijs
- Oplevering in overleg
De op deze website getoonde vrijblijvende informatie is door ons (met zorg) samengesteld op basis van gegevens van de verkoper (en/of derden). Wij staan niet in voor de juistheid of volledigheid daarvan. Wij adviseren je om contact met ons op te nemen bij interesse in een van onze woningen of je door een eigen NVM makelaar te laten bijstaan.
Wij zijn niet verantwoordelijk voor de inhoud van de websites waarnaar verwezen wordt.
Beschrijving
Ruimte, licht, water, natuur en een eigen overdekte parkeerplaats!
Dit ruime 3-kamer appartement van 122 m2 is gelegen op de tweede verdieping van het in 2007 opgeleverde en deels in de Slotervaart staande complex ‘’De Weerspiegeling’’, ontworpen door Wiel Arets en bekroond met de Amsterdamse Architectuur Prijs. Dit keurig onderhouden en zeer luxe complex voorzien van een dubbele liftinstallatie wordt beheerd door een actieve en financieel gezonde vereniging van eigenaren. Er is dagelijks een huismeester aanwezig.
Indeling:
Je betreedt het complex via een afgesloten entree met video-intercomsysteem. In de centrale hal bevinden zich het trappenhuis en twee liften. De woning beschikt over een eigen entree met een royale hal, waar aan de linkerzijde het eerste toilet met fonteintje is gesitueerd.
De lichte en bijzonder ruime woonkamer is direct een indrukwekkende binnenkomer. Met een oppervlakte van circa 70 m² biedt deze kamer enorm veel ruimte. De open keuken vormt samen met de woonkamer een perfecte setting voor gezellige avonden. De nette laminaatvloer met vloerverwarming draagt bij aan het comfort. Vanuit de woonkamer heb je een prettig uitzicht op de omgeving.
De open keuken aan de linkerzijde van de woonkamer is modern vormgegeven en voorzien van diverse inbouwapparatuur, waaronder een 6-pits gaskookplaat, afzuigkap, combi-oven, vaatwasser en een koel-/vriescombinatie. Er is opvallend veel kastruimte aanwezig. Achter de keuken bevindt zich een praktische berging met de aansluiting voor de wasmachine.
Grenzend aan de woonkamer bevinden zich twee ruime slaapkamers, beide met grote raampartijen die voor veel daglicht zorgen. De badkamer is volledig betegeld en voorzien van een royaal ligbad, een tweede toilet en een wastafel.
Je hebt de beschikking over een eigen parkeerplaats in de parkeerkelder. De toegang tot de eigen parkeerplaats kan worden bediend met handzender. Verder heb je onder het complex ook de beschikking over een eigen riante berging en is op de begane grond een gezamenlijke fietsenberging aanwezig, zowel binnen- als buitenom bereikbaar.
Voor een verdere indruk van de indeling kun je de bijgesloten plattegronden bekijken.
Ligging:
De Slotervaart met ‘water’ park voorzien van diverse eilandjes en bruggen wordt ook wel het ‘groene deel’ van Nieuw-West genoemd, midden tussen waterpartijen, prachtige lanen, landerijen en authentieke dorpsgezichten. Met 15 minuten in het Vondelpark, het Amsterdamse bos, het centrum en diverse watersportfaciliteiten op een steenworp afstand. Winkels, zowel luxe als dagelijkse boodschappen, restaurants, theaters, scholen, openbaar vervoer, diverse uitvalswegen. Kortom alles wat je nodig hebt en het leven aangenaam maakt vind je in de directe omgeving.
Bouw:
Het complex is gebouwd in 2007. Het appartement is volledig geïsoleerd, beschikt over een mechanisch ventilatiesysteem en wordt verwarmd door middel van vloerverwarming door een in 2007 geplaatste CV ketel. De vloerverwarming is per vertrek instelbaar. Het appartement is grotendeels voorzien van Franse balkons en aan de buitenzijde zijn elektrische sunscreens (zonweringen) geïnstalleerd welke handmatig zijn te bedienen maar ze beschikken ook over wind- en regensensoren.
Eigendomssituatie:
De woning is gelegen op in erfpacht uitgegeven grond, welke formeel eigendom is van de gemeente Amsterdam. De vergoeding voor het gebruik van deze grond (erfpachtcanon) is € 2.177,12 per jaar. De aanvraag om over te stappen naar eeuwigdurende erfpacht is door de huidige eigenaren gedaan en kan worden over genomen.
Bijzonderheden:
- Bouwjaar 2007
- Energielabel A+
- Appartementsrecht
- Het appartement is goed geïsoleerd
- De VVE is actief en financieel gezond
- Gemeenschappelijke fietsenstalling
- Erfpachtcanon is thans € 1.065,13 per 6 maanden
- Aanvraag voor gunstige voorwaarde is gedaan en kan worden overgenomen
- Servicekosten bedragen ca. € 257,47 per maand (inclusief de opstalverzekering, parkeerplaats en reserveringen voor het onderhoud)
- Alle ramen zijn voorzien van elektrische buitenzonwering
- Eigen parkeerplaats en berging in de onderbouw
- Bekroond met de Amsterdamse Architectuur Prijs
- Oplevering in overleg
De op deze website getoonde vrijblijvende informatie is door ons (met zorg) samengesteld op basis van gegevens van de verkoper (en/of derden). Wij staan niet in voor de juistheid of volledigheid daarvan. Wij adviseren je om contact met ons op te nemen bij interesse in een van onze woningen of je door een eigen NVM makelaar te laten bijstaan.
Wij zijn niet verantwoordelijk voor de inhoud van de websites waarnaar verwezen wordt.
Dit ruime 3-kamer appartement van 122 m2 is gelegen op de tweede verdieping van het in 2007 opgeleverde en deels in de Slotervaart staande complex ‘’De Weerspiegeling’’, ontworpen door Wiel Arets en bekroond met de Amsterdamse Architectuur Prijs. Dit keurig onderhouden en zeer luxe complex voorzien van een dubbele liftinstallatie wordt beheerd door een actieve en financieel gezonde vereniging van eigenaren. Er is dagelijks een huismeester aanwezig.
Indeling:
Je betreedt het complex via een afgesloten entree met video-intercomsysteem. In de centrale hal bevinden zich het trappenhuis en twee liften. De woning beschikt over een eigen entree met een royale hal, waar aan de linkerzijde het eerste toilet met fonteintje is gesitueerd.
De lichte en bijzonder ruime woonkamer is direct een indrukwekkende binnenkomer. Met een oppervlakte van circa 70 m² biedt deze kamer enorm veel ruimte. De open keuken vormt samen met de woonkamer een perfecte setting voor gezellige avonden. De nette laminaatvloer met vloerverwarming draagt bij aan het comfort. Vanuit de woonkamer heb je een prettig uitzicht op de omgeving.
De open keuken aan de linkerzijde van de woonkamer is modern vormgegeven en voorzien van diverse inbouwapparatuur, waaronder een 6-pits gaskookplaat, afzuigkap, combi-oven, vaatwasser en een koel-/vriescombinatie. Er is opvallend veel kastruimte aanwezig. Achter de keuken bevindt zich een praktische berging met de aansluiting voor de wasmachine.
Grenzend aan de woonkamer bevinden zich twee ruime slaapkamers, beide met grote raampartijen die voor veel daglicht zorgen. De badkamer is volledig betegeld en voorzien van een royaal ligbad, een tweede toilet en een wastafel.
Je hebt de beschikking over een eigen parkeerplaats in de parkeerkelder. De toegang tot de eigen parkeerplaats kan worden bediend met handzender. Verder heb je onder het complex ook de beschikking over een eigen riante berging en is op de begane grond een gezamenlijke fietsenberging aanwezig, zowel binnen- als buitenom bereikbaar.
Voor een verdere indruk van de indeling kun je de bijgesloten plattegronden bekijken.
Ligging:
De Slotervaart met ‘water’ park voorzien van diverse eilandjes en bruggen wordt ook wel het ‘groene deel’ van Nieuw-West genoemd, midden tussen waterpartijen, prachtige lanen, landerijen en authentieke dorpsgezichten. Met 15 minuten in het Vondelpark, het Amsterdamse bos, het centrum en diverse watersportfaciliteiten op een steenworp afstand. Winkels, zowel luxe als dagelijkse boodschappen, restaurants, theaters, scholen, openbaar vervoer, diverse uitvalswegen. Kortom alles wat je nodig hebt en het leven aangenaam maakt vind je in de directe omgeving.
Bouw:
Het complex is gebouwd in 2007. Het appartement is volledig geïsoleerd, beschikt over een mechanisch ventilatiesysteem en wordt verwarmd door middel van vloerverwarming door een in 2007 geplaatste CV ketel. De vloerverwarming is per vertrek instelbaar. Het appartement is grotendeels voorzien van Franse balkons en aan de buitenzijde zijn elektrische sunscreens (zonweringen) geïnstalleerd welke handmatig zijn te bedienen maar ze beschikken ook over wind- en regensensoren.
Eigendomssituatie:
De woning is gelegen op in erfpacht uitgegeven grond, welke formeel eigendom is van de gemeente Amsterdam. De vergoeding voor het gebruik van deze grond (erfpachtcanon) is € 2.177,12 per jaar. De aanvraag om over te stappen naar eeuwigdurende erfpacht is door de huidige eigenaren gedaan en kan worden over genomen.
Bijzonderheden:
- Bouwjaar 2007
- Energielabel A+
- Appartementsrecht
- Het appartement is goed geïsoleerd
- De VVE is actief en financieel gezond
- Gemeenschappelijke fietsenstalling
- Erfpachtcanon is thans € 1.065,13 per 6 maanden
- Aanvraag voor gunstige voorwaarde is gedaan en kan worden overgenomen
- Servicekosten bedragen ca. € 257,47 per maand (inclusief de opstalverzekering, parkeerplaats en reserveringen voor het onderhoud)
- Alle ramen zijn voorzien van elektrische buitenzonwering
- Eigen parkeerplaats en berging in de onderbouw
- Bekroond met de Amsterdamse Architectuur Prijs
- Oplevering in overleg
De op deze website getoonde vrijblijvende informatie is door ons (met zorg) samengesteld op basis van gegevens van de verkoper (en/of derden). Wij staan niet in voor de juistheid of volledigheid daarvan. Wij adviseren je om contact met ons op te nemen bij interesse in een van onze woningen of je door een eigen NVM makelaar te laten bijstaan.
Wij zijn niet verantwoordelijk voor de inhoud van de websites waarnaar verwezen wordt.
powered by Friva | Lees ons Privacybeleid
































































