LANDSMEER
€ 1.575.000
van Beekstraat 85
8 Kamers
1 Badkamers
2 Slaapkamers
139 m²
E
TUIN_RONDOM
Bezichtiging aanvragen
Beschrijving
Unieke woning met grote stal en enorme loods in het Amsterdamse buurdorp Landsmeer. Wonen en werken (of hobby) combineren op een unieke en sfeervolle plek!
Welkom in de Van Beekstraat 85 + 85A. Deze royale en authentieke woning met twee slaapkamers, ruime tuin en grote loodsen biedt eindeloze mogelijkheden. Het perceel van ca. 2.000m² (aan vaarwater) maakt de mogelijkheden eindeloos. Het woonhuis is ruim en praktisch ingedeeld, heeft een rijke historie en ligt op een unieke plek vlakbij het centrum van Landsmeer. Naast het huis en de loods is er volop plek om vrij te parkeren op eigen terrein.
Indeling
Begane grond
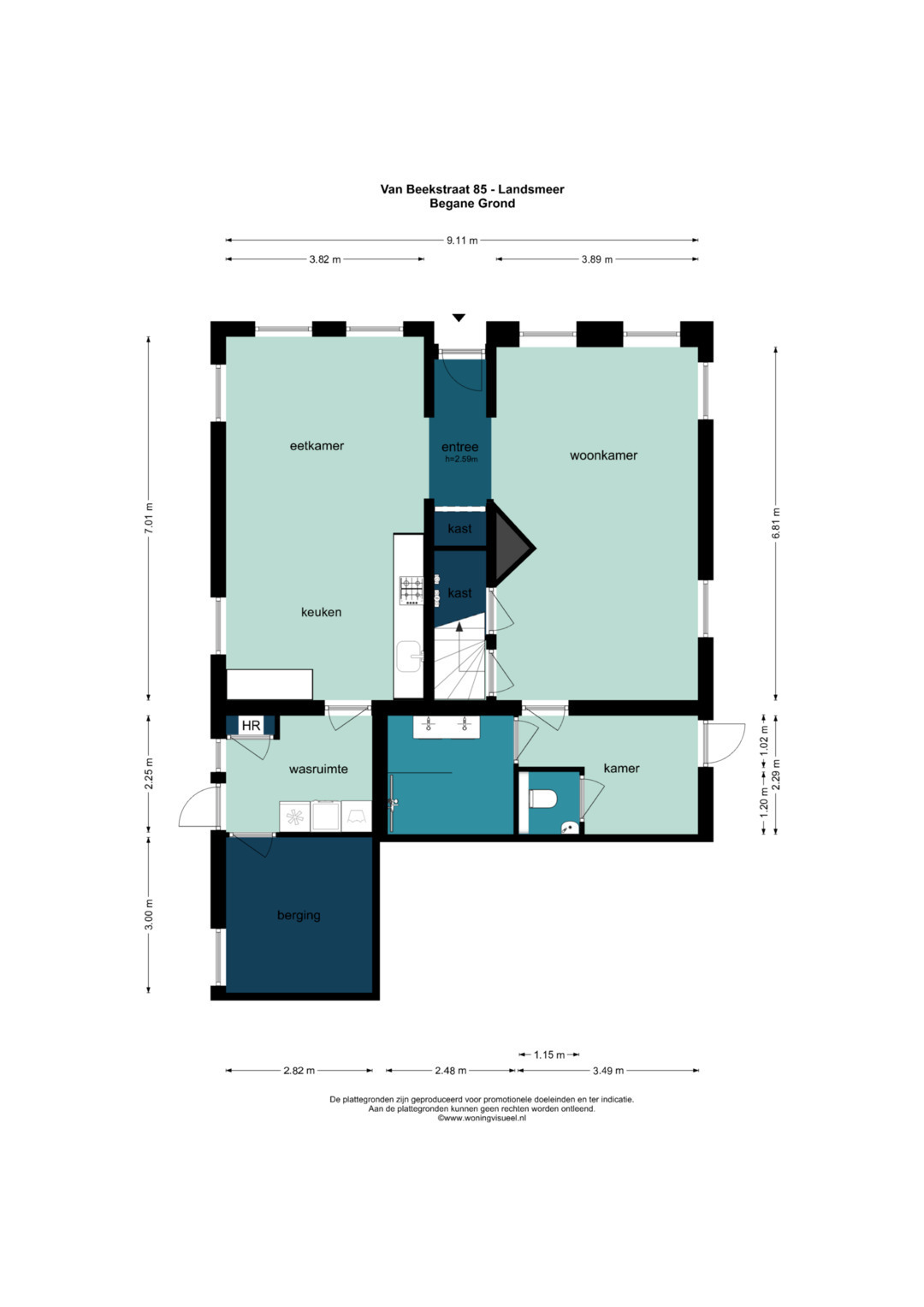
Via de entree kom je in de hal met toegang tot de woonkamer en keuken. De lichte woonkamer is een fijne plek om te ontspannen en heeft veel daglicht dankzij de grote raampartijen. De open keuken is praktisch ingericht en voorzien van diverse moderne apparatuur.
Op de begane grond bevinden zich verder een ruime eetkamer, grenzend aan de keuken, een extra kamer die flexibel te gebruiken is, bijvoorbeeld als kantoor of hobbyruimte, de badkamer met inloopdouche en dubbele wastafel, en de wasruimte. De wasruimte biedt toegang tot de berging. Het woonhuis is direct verbonden met een grote ruimte, waardoor het bouwen van een generatiewoning tot de mogelijkheden behoort. Aangrenzend aan de woning bevindt zich de kleinere loods. Aan de kleinere loods grenst vervolgens de grote loods, die met een oppervlakte van ca. 208 m² genoeg mogelijkheden en ruimte biedt.
Eerste verdieping
Vanaf de ruime overloop, met opbergmogelijkheden, is er toegang tot de twee slaapkamers. De slaapkamers zijn ruim en licht. Ook is er op de eerste verdieping toegang tot een apart toilet. De dakkapel biedt zowel de slaapkamers als het toilet extra licht en ruimte.
Buiten
Het woonhuis beschikt over een royale, verzorgde tuin rondom, omsloten door groene hagen, die veel rust en privacy biedt. Op ieder moment van de dag is er een zonnig plekje te vinden, zowel in de tuin als binnen door de goede lichtinval.
Aan de zijkant van de woning bevindt zich een groot voorterrein waar meerdere auto’s op eigen terrein geparkeerd kunnen worden. Daarnaast is er een vrijstaande houten schuur aanwezig.
Het terrein ligt aan het vaarwater en het Ilperveld bevindt zich in de directe nabijheid – ideaal voor natuurliefhebbers en waterrecreatie.
Loods / bedrijfsruimte
Kleinere loods: ca. 49 m², direct grenzend aan de woning.
Grotere loods: ca. 208 m², aansluitend aan de kleinere loods.
Deze loodsen bieden veel mogelijkheden, zoals opslag, werkplaats of lichte bedrijvigheid. De vroegere hooischuur werd in 1981 vervangen door de huidige bedrijfsloods.
Omgeving
De woning ligt aan de Van Beekstraat in Landsmeer, een landelijke straat die loopt van het dorpscentrum tot het Noord-Hollands kanaal. Langs deze gewilde straat staan mooie vrijstaande woningen en boerderijen. Op loop- en fietsafstand vind je winkels, supermarkten, scholen en sportvoorzieningen. Landsmeer beschikt over basisscholen, sportclubs (o.a. basketbal, voetbal, volleybal, tennis), een sporthal, markt, horeca en diverse winkels.
Daarnaast grenst Landsmeer direct aan natuurgebied ’t Twiske, een prachtig recreatiegebied om te wandelen, fietsen of ontspannen in de natuur. Ook het Ilperveld ligt in de buurt.
De afstand naar Amsterdam is kort: binnen 10 à 15 minuten bereik je station Noord, waar de Noord/Zuidlijn je snel naar het centrum van Amsterdam brengt. Ook met de auto is de verbinding uitstekend.
Bijzonderheden
- Woonoppervlakte ca. 139 m2
- Totale bruto vloeroppervlakte ca. 450 m2
- Perceelgrootte ca. 2.000 m2
- Stal van ca. 94 m2 en een loods van ca. 208 m2
- Bouwjaar woning: 1909, met behoud van originele kenmerken, goed onderhouden en verbouwd
- Ruime eigen oprit met parkeergelegenheid voor meerdere auto’s
- Twee slaapkamers, maar ruimte voor heel veel meer
- Mogelijkheid tot bouwen van een generatiewoning (raadpleeg bestemmingsplan)
- Bestemming: bedrijfsmatig; wonen is toegestaan (raadpleeg bestemmingsplan bij de gemeente Landsmeer voor alle mogelijkheden)
- Oplevering in overleg
De op deze website getoonde vrijblijvende informatie is door ons met zorg samengesteld op basis van gegevens van de verkoper (en/of derden). Wij staan niet in voor de juistheid of volledigheid daarvan. Wij adviseren je om contact met ons op te nemen bij interesse in een van onze woningen of je door een eigen NVM-makelaar te laten bijstaan.
Wij zijn niet verantwoordelijk voor de inhoud van de websites waarnaar verwezen wordt.
Welkom in de Van Beekstraat 85 + 85A. Deze royale en authentieke woning met twee slaapkamers, ruime tuin en grote loodsen biedt eindeloze mogelijkheden. Het perceel van ca. 2.000m² (aan vaarwater) maakt de mogelijkheden eindeloos. Het woonhuis is ruim en praktisch ingedeeld, heeft een rijke historie en ligt op een unieke plek vlakbij het centrum van Landsmeer. Naast het huis en de loods is er volop plek om vrij te parkeren op eigen terrein.
Indeling
Begane grond
Via de entree kom je in de hal met toegang tot de woonkamer en keuken. De lichte woonkamer is een fijne plek om te ontspannen en heeft veel daglicht dankzij de grote raampartijen. De open keuken is praktisch ingericht en voorzien van diverse moderne apparatuur.
Op de begane grond bevinden zich verder een ruime eetkamer, grenzend aan de keuken, een extra kamer die flexibel te gebruiken is, bijvoorbeeld als kantoor of hobbyruimte, de badkamer met inloopdouche en dubbele wastafel, en de wasruimte. De wasruimte biedt toegang tot de berging. Het woonhuis is direct verbonden met een grote ruimte, waardoor het bouwen van een generatiewoning tot de mogelijkheden behoort. Aangrenzend aan de woning bevindt zich de kleinere loods. Aan de kleinere loods grenst vervolgens de grote loods, die met een oppervlakte van ca. 208 m² genoeg mogelijkheden en ruimte biedt.
Eerste verdieping
Vanaf de ruime overloop, met opbergmogelijkheden, is er toegang tot de twee slaapkamers. De slaapkamers zijn ruim en licht. Ook is er op de eerste verdieping toegang tot een apart toilet. De dakkapel biedt zowel de slaapkamers als het toilet extra licht en ruimte.
Buiten
Het woonhuis beschikt over een royale, verzorgde tuin rondom, omsloten door groene hagen, die veel rust en privacy biedt. Op ieder moment van de dag is er een zonnig plekje te vinden, zowel in de tuin als binnen door de goede lichtinval.
Aan de zijkant van de woning bevindt zich een groot voorterrein waar meerdere auto’s op eigen terrein geparkeerd kunnen worden. Daarnaast is er een vrijstaande houten schuur aanwezig.
Het terrein ligt aan het vaarwater en het Ilperveld bevindt zich in de directe nabijheid – ideaal voor natuurliefhebbers en waterrecreatie.
Loods / bedrijfsruimte
Kleinere loods: ca. 49 m², direct grenzend aan de woning.
Grotere loods: ca. 208 m², aansluitend aan de kleinere loods.
Deze loodsen bieden veel mogelijkheden, zoals opslag, werkplaats of lichte bedrijvigheid. De vroegere hooischuur werd in 1981 vervangen door de huidige bedrijfsloods.
Omgeving
De woning ligt aan de Van Beekstraat in Landsmeer, een landelijke straat die loopt van het dorpscentrum tot het Noord-Hollands kanaal. Langs deze gewilde straat staan mooie vrijstaande woningen en boerderijen. Op loop- en fietsafstand vind je winkels, supermarkten, scholen en sportvoorzieningen. Landsmeer beschikt over basisscholen, sportclubs (o.a. basketbal, voetbal, volleybal, tennis), een sporthal, markt, horeca en diverse winkels.
Daarnaast grenst Landsmeer direct aan natuurgebied ’t Twiske, een prachtig recreatiegebied om te wandelen, fietsen of ontspannen in de natuur. Ook het Ilperveld ligt in de buurt.
De afstand naar Amsterdam is kort: binnen 10 à 15 minuten bereik je station Noord, waar de Noord/Zuidlijn je snel naar het centrum van Amsterdam brengt. Ook met de auto is de verbinding uitstekend.
Bijzonderheden
- Woonoppervlakte ca. 139 m2
- Totale bruto vloeroppervlakte ca. 450 m2
- Perceelgrootte ca. 2.000 m2
- Stal van ca. 94 m2 en een loods van ca. 208 m2
- Bouwjaar woning: 1909, met behoud van originele kenmerken, goed onderhouden en verbouwd
- Ruime eigen oprit met parkeergelegenheid voor meerdere auto’s
- Twee slaapkamers, maar ruimte voor heel veel meer
- Mogelijkheid tot bouwen van een generatiewoning (raadpleeg bestemmingsplan)
- Bestemming: bedrijfsmatig; wonen is toegestaan (raadpleeg bestemmingsplan bij de gemeente Landsmeer voor alle mogelijkheden)
- Oplevering in overleg
De op deze website getoonde vrijblijvende informatie is door ons met zorg samengesteld op basis van gegevens van de verkoper (en/of derden). Wij staan niet in voor de juistheid of volledigheid daarvan. Wij adviseren je om contact met ons op te nemen bij interesse in een van onze woningen of je door een eigen NVM-makelaar te laten bijstaan.
Wij zijn niet verantwoordelijk voor de inhoud van de websites waarnaar verwezen wordt.
Beschrijving
Unieke woning met grote stal en enorme loods in het Amsterdamse buurdorp Landsmeer. Wonen en werken (of hobby) combineren op een unieke en sfeervolle plek!
Welkom in de Van Beekstraat 85 + 85A. Deze royale en authentieke woning met twee slaapkamers, ruime tuin en grote loodsen biedt eindeloze mogelijkheden. Het perceel van ca. 2.000m² (aan vaarwater) maakt de mogelijkheden eindeloos. Het woonhuis is ruim en praktisch ingedeeld, heeft een rijke historie en ligt op een unieke plek vlakbij het centrum van Landsmeer. Naast het huis en de loods is er volop plek om vrij te parkeren op eigen terrein.
Indeling
Begane grond
Via de entree kom je in de hal met toegang tot de woonkamer en keuken. De lichte woonkamer is een fijne plek om te ontspannen en heeft veel daglicht dankzij de grote raampartijen. De open keuken is praktisch ingericht en voorzien van diverse moderne apparatuur.
Op de begane grond bevinden zich verder een ruime eetkamer, grenzend aan de keuken, een extra kamer die flexibel te gebruiken is, bijvoorbeeld als kantoor of hobbyruimte, de badkamer met inloopdouche en dubbele wastafel, en de wasruimte. De wasruimte biedt toegang tot de berging. Het woonhuis is direct verbonden met een grote ruimte, waardoor het bouwen van een generatiewoning tot de mogelijkheden behoort. Aangrenzend aan de woning bevindt zich de kleinere loods. Aan de kleinere loods grenst vervolgens de grote loods, die met een oppervlakte van ca. 208 m² genoeg mogelijkheden en ruimte biedt.
Eerste verdieping
Vanaf de ruime overloop, met opbergmogelijkheden, is er toegang tot de twee slaapkamers. De slaapkamers zijn ruim en licht. Ook is er op de eerste verdieping toegang tot een apart toilet. De dakkapel biedt zowel de slaapkamers als het toilet extra licht en ruimte.
Buiten
Het woonhuis beschikt over een royale, verzorgde tuin rondom, omsloten door groene hagen, die veel rust en privacy biedt. Op ieder moment van de dag is er een zonnig plekje te vinden, zowel in de tuin als binnen door de goede lichtinval.
Aan de zijkant van de woning bevindt zich een groot voorterrein waar meerdere auto’s op eigen terrein geparkeerd kunnen worden. Daarnaast is er een vrijstaande houten schuur aanwezig.
Het terrein ligt aan het vaarwater en het Ilperveld bevindt zich in de directe nabijheid – ideaal voor natuurliefhebbers en waterrecreatie.
Loods / bedrijfsruimte
Kleinere loods: ca. 49 m², direct grenzend aan de woning.
Grotere loods: ca. 208 m², aansluitend aan de kleinere loods.
Deze loodsen bieden veel mogelijkheden, zoals opslag, werkplaats of lichte bedrijvigheid. De vroegere hooischuur werd in 1981 vervangen door de huidige bedrijfsloods.
Omgeving
De woning ligt aan de Van Beekstraat in Landsmeer, een landelijke straat die loopt van het dorpscentrum tot het Noord-Hollands kanaal. Langs deze gewilde straat staan mooie vrijstaande woningen en boerderijen. Op loop- en fietsafstand vind je winkels, supermarkten, scholen en sportvoorzieningen. Landsmeer beschikt over basisscholen, sportclubs (o.a. basketbal, voetbal, volleybal, tennis), een sporthal, markt, horeca en diverse winkels.
Daarnaast grenst Landsmeer direct aan natuurgebied ’t Twiske, een prachtig recreatiegebied om te wandelen, fietsen of ontspannen in de natuur. Ook het Ilperveld ligt in de buurt.
De afstand naar Amsterdam is kort: binnen 10 à 15 minuten bereik je station Noord, waar de Noord/Zuidlijn je snel naar het centrum van Amsterdam brengt. Ook met de auto is de verbinding uitstekend.
Bijzonderheden
- Woonoppervlakte ca. 139 m2
- Totale bruto vloeroppervlakte ca. 450 m2
- Perceelgrootte ca. 2.000 m2
- Stal van ca. 94 m2 en een loods van ca. 208 m2
- Bouwjaar woning: 1909, met behoud van originele kenmerken, goed onderhouden en verbouwd
- Ruime eigen oprit met parkeergelegenheid voor meerdere auto’s
- Twee slaapkamers, maar ruimte voor heel veel meer
- Mogelijkheid tot bouwen van een generatiewoning (raadpleeg bestemmingsplan)
- Bestemming: bedrijfsmatig; wonen is toegestaan (raadpleeg bestemmingsplan bij de gemeente Landsmeer voor alle mogelijkheden)
- Oplevering in overleg
De op deze website getoonde vrijblijvende informatie is door ons met zorg samengesteld op basis van gegevens van de verkoper (en/of derden). Wij staan niet in voor de juistheid of volledigheid daarvan. Wij adviseren je om contact met ons op te nemen bij interesse in een van onze woningen of je door een eigen NVM-makelaar te laten bijstaan.
Wij zijn niet verantwoordelijk voor de inhoud van de websites waarnaar verwezen wordt.
Welkom in de Van Beekstraat 85 + 85A. Deze royale en authentieke woning met twee slaapkamers, ruime tuin en grote loodsen biedt eindeloze mogelijkheden. Het perceel van ca. 2.000m² (aan vaarwater) maakt de mogelijkheden eindeloos. Het woonhuis is ruim en praktisch ingedeeld, heeft een rijke historie en ligt op een unieke plek vlakbij het centrum van Landsmeer. Naast het huis en de loods is er volop plek om vrij te parkeren op eigen terrein.
Indeling
Begane grond
Via de entree kom je in de hal met toegang tot de woonkamer en keuken. De lichte woonkamer is een fijne plek om te ontspannen en heeft veel daglicht dankzij de grote raampartijen. De open keuken is praktisch ingericht en voorzien van diverse moderne apparatuur.
Op de begane grond bevinden zich verder een ruime eetkamer, grenzend aan de keuken, een extra kamer die flexibel te gebruiken is, bijvoorbeeld als kantoor of hobbyruimte, de badkamer met inloopdouche en dubbele wastafel, en de wasruimte. De wasruimte biedt toegang tot de berging. Het woonhuis is direct verbonden met een grote ruimte, waardoor het bouwen van een generatiewoning tot de mogelijkheden behoort. Aangrenzend aan de woning bevindt zich de kleinere loods. Aan de kleinere loods grenst vervolgens de grote loods, die met een oppervlakte van ca. 208 m² genoeg mogelijkheden en ruimte biedt.
Eerste verdieping
Vanaf de ruime overloop, met opbergmogelijkheden, is er toegang tot de twee slaapkamers. De slaapkamers zijn ruim en licht. Ook is er op de eerste verdieping toegang tot een apart toilet. De dakkapel biedt zowel de slaapkamers als het toilet extra licht en ruimte.
Buiten
Het woonhuis beschikt over een royale, verzorgde tuin rondom, omsloten door groene hagen, die veel rust en privacy biedt. Op ieder moment van de dag is er een zonnig plekje te vinden, zowel in de tuin als binnen door de goede lichtinval.
Aan de zijkant van de woning bevindt zich een groot voorterrein waar meerdere auto’s op eigen terrein geparkeerd kunnen worden. Daarnaast is er een vrijstaande houten schuur aanwezig.
Het terrein ligt aan het vaarwater en het Ilperveld bevindt zich in de directe nabijheid – ideaal voor natuurliefhebbers en waterrecreatie.
Loods / bedrijfsruimte
Kleinere loods: ca. 49 m², direct grenzend aan de woning.
Grotere loods: ca. 208 m², aansluitend aan de kleinere loods.
Deze loodsen bieden veel mogelijkheden, zoals opslag, werkplaats of lichte bedrijvigheid. De vroegere hooischuur werd in 1981 vervangen door de huidige bedrijfsloods.
Omgeving
De woning ligt aan de Van Beekstraat in Landsmeer, een landelijke straat die loopt van het dorpscentrum tot het Noord-Hollands kanaal. Langs deze gewilde straat staan mooie vrijstaande woningen en boerderijen. Op loop- en fietsafstand vind je winkels, supermarkten, scholen en sportvoorzieningen. Landsmeer beschikt over basisscholen, sportclubs (o.a. basketbal, voetbal, volleybal, tennis), een sporthal, markt, horeca en diverse winkels.
Daarnaast grenst Landsmeer direct aan natuurgebied ’t Twiske, een prachtig recreatiegebied om te wandelen, fietsen of ontspannen in de natuur. Ook het Ilperveld ligt in de buurt.
De afstand naar Amsterdam is kort: binnen 10 à 15 minuten bereik je station Noord, waar de Noord/Zuidlijn je snel naar het centrum van Amsterdam brengt. Ook met de auto is de verbinding uitstekend.
Bijzonderheden
- Woonoppervlakte ca. 139 m2
- Totale bruto vloeroppervlakte ca. 450 m2
- Perceelgrootte ca. 2.000 m2
- Stal van ca. 94 m2 en een loods van ca. 208 m2
- Bouwjaar woning: 1909, met behoud van originele kenmerken, goed onderhouden en verbouwd
- Ruime eigen oprit met parkeergelegenheid voor meerdere auto’s
- Twee slaapkamers, maar ruimte voor heel veel meer
- Mogelijkheid tot bouwen van een generatiewoning (raadpleeg bestemmingsplan)
- Bestemming: bedrijfsmatig; wonen is toegestaan (raadpleeg bestemmingsplan bij de gemeente Landsmeer voor alle mogelijkheden)
- Oplevering in overleg
De op deze website getoonde vrijblijvende informatie is door ons met zorg samengesteld op basis van gegevens van de verkoper (en/of derden). Wij staan niet in voor de juistheid of volledigheid daarvan. Wij adviseren je om contact met ons op te nemen bij interesse in een van onze woningen of je door een eigen NVM-makelaar te laten bijstaan.
Wij zijn niet verantwoordelijk voor de inhoud van de websites waarnaar verwezen wordt.
powered by Friva | Lees ons Privacybeleid














































































