ZAANDAM - Rosmolenwijk
€ 450.000
Koopvaardijstraat 52
6 Kamers
1 Badkamers
4 Slaapkamers
116 m²
C
Achtertuin
Bezichtiging aanvragen
Beschrijving
In Peldersveld, een kindvriendelijke wijk aan de oostkant van Zaandam, staat deze ruime woning met vier slaapkamers, kunststof kozijnen en een garage. Wat opvalt aan de woning is de lichtinval, niet alleen op de begane grond, maar ook op de eerste en tweede verdieping. De badkamer is vernieuwd en in de eiken keuken is een deel van de apparatuur vernieuwd. Dit huis heeft een woonoppervlakte van circa 116 m2, perfect voor een gezin en om vanuit huis te werken.
De plek is fraai, aan de Koopvaardijstraat in Peldersveld-West. Het park met skatepark is maar een paar minuten lopen en er is een basisschool in de buurt. Met bso en een peuterspeelzaal, waardoor kinderen in hun eigen buurt kunnen opgroeien. Voor dagelijkse boodschappen is de ligging nabij winkelcentrum Gibraltar ideaal. Hier zijn twee supermarkten en diverse winkels.
Indeling:
Begane grond:
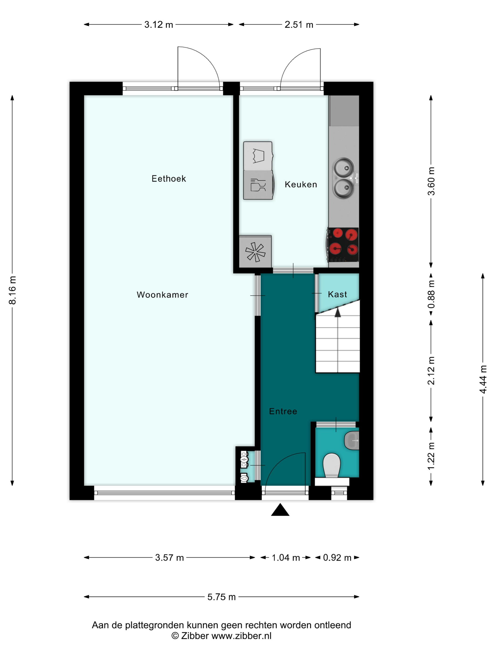
Dit huis herken je niet alleen aan de groene voordeur, maar ook aan de markies zonwering aan de voorzijde. Via het paadje in de voortuin loop je naar de overdekte entree en vervolgens de hal in. Hier zijn de meterkast, de trapopgang met bergkast en de toiletruimte met fonteintje.
Aan het einde van de hal kun je rechtdoor de keuken in en links naar de woonkamer. De meer dan 8 meter lange woonkamer heeft grote ramen aan de voor- en achterzijde, een deur naar de achtertuin en mooi uitzicht naar de rustige straat. De tegelvloer, wanden en het balkenplafond zijn in een lichte kleur waardoor de woonkamer heel ruimtelijk oogt.
Naast de woonkamer is de dichte keuken, waar een eiken wandopstelling staat. De inductie kookplaat, afzuigkap, oven en koelkast zijn ingebouwd. Voor de wasmachine en vaatwasser zijn de benodigde aansluitingen aanwezig.
Eerste verdieping:
Aan de achterzijde zijn twee slaapkamers en de derde slaapkamer is, net als de badkamer, aan de voorzijde. Wat opvalt is de grootte van de slaapkamers, variërend van 9.3 tot circa 15 m2.
De vernieuwde badkamer heeft een groot draai-/kiepraam en een ventilatierooster, lichte wandtegels en donkere tegels op de vloer. Naast de douche hangt het toilet en aan de andere zie je een wastafelmeubel met een spiegel en planchet.
Tweede verdieping:
Een vaste trap geeft toegang tot de tweede verdieping. Hier zijn een ruime overloop, de vierde slaapkamer en in de schuinten van het dak kun je veel spullen opbergen. De overloop heeft een dakraam en de slaapkamer heeft zowel een dakraam als een dakkapel.
Tuin:
Bij aankomst heb je de voortuin op het zuiden al gezien. De achtertuin, te bereiken vanuit de keuken, ligt op het noorden. Hierdoor is er schaduw op het warmste moment van de dag, is er zon in de ochtend én aan het einde van de dag. In de zomer biedt het achterste deel van de tuin de hele dag een fijne plek in de Zaanse zon!
In de stenen berging is ruimte voor de fietsen en onder de overkapping is een poort naar de steeg. Zo heeft dit huis alles wat je zoekt, zowel binnen als buiten!
Parkeren:
Aan de Koopvaardijstraat is openbare, gratis parkeergelegenheid. Op het achtergelegen pleintje is de garagebox van circa 5.71 x 2,79 meter. Perfect voor de auto, motor, fietsen en andere spullen!
Omgeving:
De wijk biedt veel, van onderwijs tot een prima plek voor de boodschappen. Wil je naar het gezellige stadshart, dan kun je met de fiets of bus. Wordt het een dagje winkelen, een hapje eten, naar de bioscoop of naar het theater? En werk je in Amsterdam, Purmerend, op Schiphol of een andere plek in de regio? Je kunt niet alleen met de auto, maar ook met de bus of trein.
Bijzonderheden:
- Woonoppervlakte circa 116 m2
- De woning kan met of zonder garage gekocht worden, vraagprijs € 30.000,- k.k.
- Garagebox op het achtergelegen pleintje
- Vier slaapkamers, waarvan een op de tweede verdieping
- Kindvriendelijke en groene woonwijk
- Kunststof kozijnen (m.u.v. deuren, toilet en dakramen)
- Verwarming en warm water via een HR-ketel (Remeha)
- Energielabel C
- Eigen grond
- VVE aanwezig voor gezamenlijke plein, bestrating en tuinman € 95,- p/j
De op deze website getoonde vrijblijvende informatie is door ons (met zorg) samengesteld op basis van gegevens van de verkoper (en/of derden). Wij staan niet in voor de juistheid of volledigheid daarvan. Wij adviseren je om contact met ons op te nemen bij interesse in een van onze woningen of je door een eigen NVM-makelaar te laten bijstaan.
Wij zijn niet verantwoordelijk voor de inhoud van de websites waarnaar verwezen wordt.
De plek is fraai, aan de Koopvaardijstraat in Peldersveld-West. Het park met skatepark is maar een paar minuten lopen en er is een basisschool in de buurt. Met bso en een peuterspeelzaal, waardoor kinderen in hun eigen buurt kunnen opgroeien. Voor dagelijkse boodschappen is de ligging nabij winkelcentrum Gibraltar ideaal. Hier zijn twee supermarkten en diverse winkels.
Indeling:
Begane grond:
Dit huis herken je niet alleen aan de groene voordeur, maar ook aan de markies zonwering aan de voorzijde. Via het paadje in de voortuin loop je naar de overdekte entree en vervolgens de hal in. Hier zijn de meterkast, de trapopgang met bergkast en de toiletruimte met fonteintje.
Aan het einde van de hal kun je rechtdoor de keuken in en links naar de woonkamer. De meer dan 8 meter lange woonkamer heeft grote ramen aan de voor- en achterzijde, een deur naar de achtertuin en mooi uitzicht naar de rustige straat. De tegelvloer, wanden en het balkenplafond zijn in een lichte kleur waardoor de woonkamer heel ruimtelijk oogt.
Naast de woonkamer is de dichte keuken, waar een eiken wandopstelling staat. De inductie kookplaat, afzuigkap, oven en koelkast zijn ingebouwd. Voor de wasmachine en vaatwasser zijn de benodigde aansluitingen aanwezig.
Eerste verdieping:
Aan de achterzijde zijn twee slaapkamers en de derde slaapkamer is, net als de badkamer, aan de voorzijde. Wat opvalt is de grootte van de slaapkamers, variërend van 9.3 tot circa 15 m2.
De vernieuwde badkamer heeft een groot draai-/kiepraam en een ventilatierooster, lichte wandtegels en donkere tegels op de vloer. Naast de douche hangt het toilet en aan de andere zie je een wastafelmeubel met een spiegel en planchet.
Tweede verdieping:
Een vaste trap geeft toegang tot de tweede verdieping. Hier zijn een ruime overloop, de vierde slaapkamer en in de schuinten van het dak kun je veel spullen opbergen. De overloop heeft een dakraam en de slaapkamer heeft zowel een dakraam als een dakkapel.
Tuin:
Bij aankomst heb je de voortuin op het zuiden al gezien. De achtertuin, te bereiken vanuit de keuken, ligt op het noorden. Hierdoor is er schaduw op het warmste moment van de dag, is er zon in de ochtend én aan het einde van de dag. In de zomer biedt het achterste deel van de tuin de hele dag een fijne plek in de Zaanse zon!
In de stenen berging is ruimte voor de fietsen en onder de overkapping is een poort naar de steeg. Zo heeft dit huis alles wat je zoekt, zowel binnen als buiten!
Parkeren:
Aan de Koopvaardijstraat is openbare, gratis parkeergelegenheid. Op het achtergelegen pleintje is de garagebox van circa 5.71 x 2,79 meter. Perfect voor de auto, motor, fietsen en andere spullen!
Omgeving:
De wijk biedt veel, van onderwijs tot een prima plek voor de boodschappen. Wil je naar het gezellige stadshart, dan kun je met de fiets of bus. Wordt het een dagje winkelen, een hapje eten, naar de bioscoop of naar het theater? En werk je in Amsterdam, Purmerend, op Schiphol of een andere plek in de regio? Je kunt niet alleen met de auto, maar ook met de bus of trein.
Bijzonderheden:
- Woonoppervlakte circa 116 m2
- De woning kan met of zonder garage gekocht worden, vraagprijs € 30.000,- k.k.
- Garagebox op het achtergelegen pleintje
- Vier slaapkamers, waarvan een op de tweede verdieping
- Kindvriendelijke en groene woonwijk
- Kunststof kozijnen (m.u.v. deuren, toilet en dakramen)
- Verwarming en warm water via een HR-ketel (Remeha)
- Energielabel C
- Eigen grond
- VVE aanwezig voor gezamenlijke plein, bestrating en tuinman € 95,- p/j
De op deze website getoonde vrijblijvende informatie is door ons (met zorg) samengesteld op basis van gegevens van de verkoper (en/of derden). Wij staan niet in voor de juistheid of volledigheid daarvan. Wij adviseren je om contact met ons op te nemen bij interesse in een van onze woningen of je door een eigen NVM-makelaar te laten bijstaan.
Wij zijn niet verantwoordelijk voor de inhoud van de websites waarnaar verwezen wordt.
Beschrijving
In Peldersveld, een kindvriendelijke wijk aan de oostkant van Zaandam, staat deze ruime woning met vier slaapkamers, kunststof kozijnen en een garage. Wat opvalt aan de woning is de lichtinval, niet alleen op de begane grond, maar ook op de eerste en tweede verdieping. De badkamer is vernieuwd en in de eiken keuken is een deel van de apparatuur vernieuwd. Dit huis heeft een woonoppervlakte van circa 116 m2, perfect voor een gezin en om vanuit huis te werken.
De plek is fraai, aan de Koopvaardijstraat in Peldersveld-West. Het park met skatepark is maar een paar minuten lopen en er is een basisschool in de buurt. Met bso en een peuterspeelzaal, waardoor kinderen in hun eigen buurt kunnen opgroeien. Voor dagelijkse boodschappen is de ligging nabij winkelcentrum Gibraltar ideaal. Hier zijn twee supermarkten en diverse winkels.
Indeling:
Begane grond:
Dit huis herken je niet alleen aan de groene voordeur, maar ook aan de markies zonwering aan de voorzijde. Via het paadje in de voortuin loop je naar de overdekte entree en vervolgens de hal in. Hier zijn de meterkast, de trapopgang met bergkast en de toiletruimte met fonteintje.
Aan het einde van de hal kun je rechtdoor de keuken in en links naar de woonkamer. De meer dan 8 meter lange woonkamer heeft grote ramen aan de voor- en achterzijde, een deur naar de achtertuin en mooi uitzicht naar de rustige straat. De tegelvloer, wanden en het balkenplafond zijn in een lichte kleur waardoor de woonkamer heel ruimtelijk oogt.
Naast de woonkamer is de dichte keuken, waar een eiken wandopstelling staat. De inductie kookplaat, afzuigkap, oven en koelkast zijn ingebouwd. Voor de wasmachine en vaatwasser zijn de benodigde aansluitingen aanwezig.
Eerste verdieping:
Aan de achterzijde zijn twee slaapkamers en de derde slaapkamer is, net als de badkamer, aan de voorzijde. Wat opvalt is de grootte van de slaapkamers, variërend van 9.3 tot circa 15 m2.
De vernieuwde badkamer heeft een groot draai-/kiepraam en een ventilatierooster, lichte wandtegels en donkere tegels op de vloer. Naast de douche hangt het toilet en aan de andere zie je een wastafelmeubel met een spiegel en planchet.
Tweede verdieping:
Een vaste trap geeft toegang tot de tweede verdieping. Hier zijn een ruime overloop, de vierde slaapkamer en in de schuinten van het dak kun je veel spullen opbergen. De overloop heeft een dakraam en de slaapkamer heeft zowel een dakraam als een dakkapel.
Tuin:
Bij aankomst heb je de voortuin op het zuiden al gezien. De achtertuin, te bereiken vanuit de keuken, ligt op het noorden. Hierdoor is er schaduw op het warmste moment van de dag, is er zon in de ochtend én aan het einde van de dag. In de zomer biedt het achterste deel van de tuin de hele dag een fijne plek in de Zaanse zon!
In de stenen berging is ruimte voor de fietsen en onder de overkapping is een poort naar de steeg. Zo heeft dit huis alles wat je zoekt, zowel binnen als buiten!
Parkeren:
Aan de Koopvaardijstraat is openbare, gratis parkeergelegenheid. Op het achtergelegen pleintje is de garagebox van circa 5.71 x 2,79 meter. Perfect voor de auto, motor, fietsen en andere spullen!
Omgeving:
De wijk biedt veel, van onderwijs tot een prima plek voor de boodschappen. Wil je naar het gezellige stadshart, dan kun je met de fiets of bus. Wordt het een dagje winkelen, een hapje eten, naar de bioscoop of naar het theater? En werk je in Amsterdam, Purmerend, op Schiphol of een andere plek in de regio? Je kunt niet alleen met de auto, maar ook met de bus of trein.
Bijzonderheden:
- Woonoppervlakte circa 116 m2
- De woning kan met of zonder garage gekocht worden, vraagprijs € 30.000,- k.k.
- Garagebox op het achtergelegen pleintje
- Vier slaapkamers, waarvan een op de tweede verdieping
- Kindvriendelijke en groene woonwijk
- Kunststof kozijnen (m.u.v. deuren, toilet en dakramen)
- Verwarming en warm water via een HR-ketel (Remeha)
- Energielabel C
- Eigen grond
- VVE aanwezig voor gezamenlijke plein, bestrating en tuinman € 95,- p/j
De op deze website getoonde vrijblijvende informatie is door ons (met zorg) samengesteld op basis van gegevens van de verkoper (en/of derden). Wij staan niet in voor de juistheid of volledigheid daarvan. Wij adviseren je om contact met ons op te nemen bij interesse in een van onze woningen of je door een eigen NVM-makelaar te laten bijstaan.
Wij zijn niet verantwoordelijk voor de inhoud van de websites waarnaar verwezen wordt.
De plek is fraai, aan de Koopvaardijstraat in Peldersveld-West. Het park met skatepark is maar een paar minuten lopen en er is een basisschool in de buurt. Met bso en een peuterspeelzaal, waardoor kinderen in hun eigen buurt kunnen opgroeien. Voor dagelijkse boodschappen is de ligging nabij winkelcentrum Gibraltar ideaal. Hier zijn twee supermarkten en diverse winkels.
Indeling:
Begane grond:
Dit huis herken je niet alleen aan de groene voordeur, maar ook aan de markies zonwering aan de voorzijde. Via het paadje in de voortuin loop je naar de overdekte entree en vervolgens de hal in. Hier zijn de meterkast, de trapopgang met bergkast en de toiletruimte met fonteintje.
Aan het einde van de hal kun je rechtdoor de keuken in en links naar de woonkamer. De meer dan 8 meter lange woonkamer heeft grote ramen aan de voor- en achterzijde, een deur naar de achtertuin en mooi uitzicht naar de rustige straat. De tegelvloer, wanden en het balkenplafond zijn in een lichte kleur waardoor de woonkamer heel ruimtelijk oogt.
Naast de woonkamer is de dichte keuken, waar een eiken wandopstelling staat. De inductie kookplaat, afzuigkap, oven en koelkast zijn ingebouwd. Voor de wasmachine en vaatwasser zijn de benodigde aansluitingen aanwezig.
Eerste verdieping:
Aan de achterzijde zijn twee slaapkamers en de derde slaapkamer is, net als de badkamer, aan de voorzijde. Wat opvalt is de grootte van de slaapkamers, variërend van 9.3 tot circa 15 m2.
De vernieuwde badkamer heeft een groot draai-/kiepraam en een ventilatierooster, lichte wandtegels en donkere tegels op de vloer. Naast de douche hangt het toilet en aan de andere zie je een wastafelmeubel met een spiegel en planchet.
Tweede verdieping:
Een vaste trap geeft toegang tot de tweede verdieping. Hier zijn een ruime overloop, de vierde slaapkamer en in de schuinten van het dak kun je veel spullen opbergen. De overloop heeft een dakraam en de slaapkamer heeft zowel een dakraam als een dakkapel.
Tuin:
Bij aankomst heb je de voortuin op het zuiden al gezien. De achtertuin, te bereiken vanuit de keuken, ligt op het noorden. Hierdoor is er schaduw op het warmste moment van de dag, is er zon in de ochtend én aan het einde van de dag. In de zomer biedt het achterste deel van de tuin de hele dag een fijne plek in de Zaanse zon!
In de stenen berging is ruimte voor de fietsen en onder de overkapping is een poort naar de steeg. Zo heeft dit huis alles wat je zoekt, zowel binnen als buiten!
Parkeren:
Aan de Koopvaardijstraat is openbare, gratis parkeergelegenheid. Op het achtergelegen pleintje is de garagebox van circa 5.71 x 2,79 meter. Perfect voor de auto, motor, fietsen en andere spullen!
Omgeving:
De wijk biedt veel, van onderwijs tot een prima plek voor de boodschappen. Wil je naar het gezellige stadshart, dan kun je met de fiets of bus. Wordt het een dagje winkelen, een hapje eten, naar de bioscoop of naar het theater? En werk je in Amsterdam, Purmerend, op Schiphol of een andere plek in de regio? Je kunt niet alleen met de auto, maar ook met de bus of trein.
Bijzonderheden:
- Woonoppervlakte circa 116 m2
- De woning kan met of zonder garage gekocht worden, vraagprijs € 30.000,- k.k.
- Garagebox op het achtergelegen pleintje
- Vier slaapkamers, waarvan een op de tweede verdieping
- Kindvriendelijke en groene woonwijk
- Kunststof kozijnen (m.u.v. deuren, toilet en dakramen)
- Verwarming en warm water via een HR-ketel (Remeha)
- Energielabel C
- Eigen grond
- VVE aanwezig voor gezamenlijke plein, bestrating en tuinman € 95,- p/j
De op deze website getoonde vrijblijvende informatie is door ons (met zorg) samengesteld op basis van gegevens van de verkoper (en/of derden). Wij staan niet in voor de juistheid of volledigheid daarvan. Wij adviseren je om contact met ons op te nemen bij interesse in een van onze woningen of je door een eigen NVM-makelaar te laten bijstaan.
Wij zijn niet verantwoordelijk voor de inhoud van de websites waarnaar verwezen wordt.
powered by Friva | Lees ons Privacybeleid




































